
Off Reigate Road, (Kennel Lane), Hookwood, RH6

- PROPERTY TYPE
Bungalow
- BEDROOMS
3
- BATHROOMS
2
- SIZE
1,335 sq ft
124 sq m
- TENUREDescribes how you own a property. There are different types of tenure - freehold, leasehold, and commonhold.Read more about tenure in our glossary page.
Freehold
Key features
- 3 Double Bedrooms
- 3 Reception rooms
- Large Kitchen
- 2 shower/bathrooms
- Ample parking
- Detached timber summerhouse/home office.
- Adaptable accommodation
- Wheelchair friendly
Description
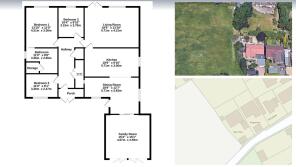
This spacious home offers three reception areas and highly adaptable accommodation, ideal for families, multi-generational living, or those requiring accessible features. The property has been carefully modified to be wheelchair friendly, with flat access at the front entrance, from the living room into the rear garden, and throughout the garden, which enjoys beautiful sunset views in the evenings.
The internal layout includes an entrance porch, wide entrance hall, and a large living room leading to multiple reception areas. The master bedroom benefits from a large ensuite bathroom with roll-in shower, plus there is a separate shower room off the hallway, also accessible for an agile wheelchair user.
Accessibility features include three H-frame ceiling track hoisting systems (in the utility/playroom, living room, and master bedroom), and a single track hoist connecting the master bedroom’s toilet and bath area. A large storage cupboard provides space for medical equipment and linens.
The kitchen is fully height-adjustable, with rise-and-fall countertops operated by a simple handle and cupboards that lower at the press of a button—allowing it to be equally functional for wheelchair users and able-bodied occupants.
Externally, the property offers ample driveway parking, a timber summer house/home office, and level garden areas perfect for easy access and outdoor enjoyment.
This is a rare opportunity to acquire a large, accessible bungalow offering flexibility, comfort, and practicality in a convenient Horley location.
Following an appeal decision in July 2024, outline planning permission has been granted for a residential-led development on land between Reigate Road and Charlwood Road, Hookwood details can be found on Mole Valley Planning portal. Using the following reference.
MO/2023/1125
Brochures
Particulars- COUNCIL TAXA payment made to your local authority in order to pay for local services like schools, libraries, and refuse collection. The amount you pay depends on the value of the property.Read more about council Tax in our glossary page.
- Band: E
- PARKINGDetails of how and where vehicles can be parked, and any associated costs.Read more about parking in our glossary page.
- Yes
- GARDENA property has access to an outdoor space, which could be private or shared.
- Yes
- ACCESSIBILITYHow a property has been adapted to meet the needs of vulnerable or disabled individuals.Read more about accessibility in our glossary page.
- Ask agent
Off Reigate Road, (Kennel Lane), Hookwood, RH6
Add an important place to see how long it'd take to get there from our property listings.
__mins driving to your place
Get an instant, personalised result:
- Show sellers you’re serious
- Secure viewings faster with agents
- No impact on your credit score
Your mortgage
Notes
Staying secure when looking for property
Ensure you're up to date with our latest advice on how to avoid fraud or scams when looking for property online.
Visit our security centre to find out moreDisclaimer - Property reference HOR240122. The information displayed about this property comprises a property advertisement. Rightmove.co.uk makes no warranty as to the accuracy or completeness of the advertisement or any linked or associated information, and Rightmove has no control over the content. This property advertisement does not constitute property particulars. The information is provided and maintained by Mayhew Estates, Horley. Please contact the selling agent or developer directly to obtain any information which may be available under the terms of The Energy Performance of Buildings (Certificates and Inspections) (England and Wales) Regulations 2007 or the Home Report if in relation to a residential property in Scotland.
*This is the average speed from the provider with the fastest broadband package available at this postcode. The average speed displayed is based on the download speeds of at least 50% of customers at peak time (8pm to 10pm). Fibre/cable services at the postcode are subject to availability and may differ between properties within a postcode. Speeds can be affected by a range of technical and environmental factors. The speed at the property may be lower than that listed above. You can check the estimated speed and confirm availability to a property prior to purchasing on the broadband provider's website. Providers may increase charges. The information is provided and maintained by Decision Technologies Limited. **This is indicative only and based on a 2-person household with multiple devices and simultaneous usage. Broadband performance is affected by multiple factors including number of occupants and devices, simultaneous usage, router range etc. For more information speak to your broadband provider.
Map data ©OpenStreetMap contributors.








