Limassol, Limassol, Cyprus
- PROPERTY TYPE
Apartment
- BEDROOMS
3
- BATHROOMS
2
- SIZE
1,378 sq ft
128 sq m
Key features
- Elevator
- Open Kitchen
- Provision for Air-Condition
- Parking - 1 Covered
- Swimming Pool - Communal
- Beach: 5 min Drive
- Town: 5 min drive
- Plus VAT
- En suite bathrooms
- Storage room
Description
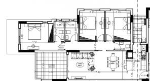
3-bedroom 2nd floor apartment. 108m2 and with a 20m2 covered veranda plus a separate covered veranda off the kitchen - perfect as a utility area.
The layout provides an open plan living space leading onto the main covered outside area. Three bedrooms plus two shower rooms (one en-suite) with built-in floor to ceiling wardrobes and a guest WC completes the apartment layout.
Currently under construction in the highly desirable area of Agios Athanasios, this is another landmark project from a highly reputable developer of two luxury specification apartment buildings with landscaped surroundings, secured covered parking and a residence only swimming pool.
The location is ideal for anyone looking for a discreet yet accessible neighbourhood, positioned just off the main road leading into Limassol, this cul-de-sac/dead end road ensures only residents frequent the area, restricting the unnecessary use of the area as a cut-through.
With great proximity to international schools, education can be accessed without compromise.
Additionally, the local area is on the verge of a striking new mall being created within walking distance, delivering unparalleled shopping and entertainment options just a leisurely stroll away.
The attention to detail in the finish of this project ensures a luxury feel throughout, complimented by an A rated energy efficiency to minimise ongoing day to day running costs.
Completion is due in Sept 2025
For more details and to arrange a viewing, please contact ChapterONE Properties.
Limassol, Limassol, Cyprus
NEAREST AIRPORTS
Distances are straight line measurements- Pafos(International)31.3 miles
- Larnaka(International)36.3 miles
- Ercan(Local)41.1 miles
Advice on buying Cypriot property
Learn everything you need to know to successfully find and buy a property in Cyprus.
Notes
This is a property advertisement provided and maintained by Chapter One Properties, Paphos (reference C4306) and does not constitute property particulars. Whilst we require advertisers to act with best practice and provide accurate information, we can only publish advertisements in good faith and have not verified any claims or statements or inspected any of the properties, locations or opportunities promoted. Rightmove does not own or control and is not responsible for the properties, opportunities, website content, products or services provided or promoted by third parties and makes no warranties or representations as to the accuracy, completeness, legality, performance or suitability of any of the foregoing. We therefore accept no liability arising from any reliance made by any reader or person to whom this information is made available to. You must perform your own research and seek independent professional advice before making any decision to purchase or invest in overseas property.




