
Orchid Court, Ashford, Kent, TN23

Letting details
- Let available date:
- 31/10/2025
- Deposit:
- £1,500A deposit provides security for a landlord against damage, or unpaid rent by a tenant.Read more about deposit in our glossary page.
- Min. Tenancy:
- 12 months How long the landlord offers to let the property for.Read more about tenancy length in our glossary page.
- Let type:
- Long term
- Furnish type:
- Ask agent
- Council Tax:
- Ask agent
- PROPERTY TYPE
End of Terrace
- BEDROOMS
3
- BATHROOMS
2
- SIZE
1,044 sq ft
97 sq m
Key features
- Cul-De-Sac location
- Three Bedrooms
- Garden To Rear
- Gas-Fired Central Heating
- Three Floors
- End Of Terraced
- Double Glazing
- Un-Furnished
- Available To View Now
- Garage And Parking
Description
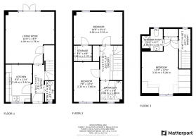
On the first floor there are two further double bedrooms, one with a walk -in wardrobe, and the family bathroom has a white suite with panelled bath, w.c and wash hand basin.
On the ground floor the large living room opens to the rear garden. The kitchen has a range of wall and base units, work surfaces, inset sink, four ring gas hob with oven below and extractor over and space for other appliances. From the hallway there are stairs leading to the first floor and adjacent cloakroom with basin and toilet.
Outside the property has a rear garden with grass and patio area and is enclosed by fencing. There is a rear pedestrian gate which leads to a parking space and garage which is immediately to the rear with personal door from the garden.
Anything else to tempt you? Take a look at the key facts for tenants, just click on the property brochure link, we look forward to hearing from you.
Agents Note - You must provide original documents of your ID, Proof of Address and Right To Rent Share Code, where applicable, prior to making an offer and we would suggest bringing them with you on your viewing.
Deposit £1500 . Minimum 12 month tenancy. Pets Considered.
Council Tax Band D as of October 2025
+ LANDLORD STIPULATES NO SMOKERS, NO SHARERS.
+ APPLICANTS WILL BE REQUIRED TO SHOW A MINIMUM TOTAL INCOME OF £42,000 PER ANNUM
+ APPLICANTS WILL BE REQUIRED TO PROVIDE THEIR EXPERIAN CREDIT SCORE PRIOR TO VIEWING
Every day we strive to help your dreams become reality, we are a family run firm, who passionately dedicate our service to you. Buying, selling, renting or letting, At Evolution dreams come true! check out our 5 Star reviews on Google and make your dream move with us.
Disclaimer
The Agent, for themselves and for the vendors of this property whose agents they are, give notice that:
(a) The particulars are produced in good faith, are set out as a general guide only, and do not constitute any part of a contract
(b) No person within the employment of The Agent or any associate of that company has any authority to make or give any representation or warranty whatsoever, in relation to the property.
(c) Any appliances, equipment, installations, fixtures, fittings or services at the property have not been tested by us and we therefore cannot verify they are in working order or fit for purpose.
Living Room - 4.76 x 4.49 m (15′7″ x 14′9″ ft)
Kitchen - 3.44 x 2.44 m (11′3″ x 8′0″ ft)
Bedroom 1 - 5.28 x 3.34 m (17′4″ x 10′11″ ft)
Bedroom 2 - 4.46 x 3.01 m (14′8″ x 9′11″ ft)
Bedroom 3 - 3.66 x 2.33 m (12′0″ x 7′8″ ft)
Brochures
Property Brochure- COUNCIL TAXA payment made to your local authority in order to pay for local services like schools, libraries, and refuse collection. The amount you pay depends on the value of the property.Read more about council Tax in our glossary page.
- Band: D
- PARKINGDetails of how and where vehicles can be parked, and any associated costs.Read more about parking in our glossary page.
- Yes
- GARDENA property has access to an outdoor space, which could be private or shared.
- Yes
- ACCESSIBILITYHow a property has been adapted to meet the needs of vulnerable or disabled individuals.Read more about accessibility in our glossary page.
- Ask agent
Energy performance certificate - ask agent
Orchid Court, Ashford, Kent, TN23
Add an important place to see how long it'd take to get there from our property listings.
__mins driving to your place
Notes
Staying secure when looking for property
Ensure you're up to date with our latest advice on how to avoid fraud or scams when looking for property online.
Visit our security centre to find out moreDisclaimer - Property reference 2580. The information displayed about this property comprises a property advertisement. Rightmove.co.uk makes no warranty as to the accuracy or completeness of the advertisement or any linked or associated information, and Rightmove has no control over the content. This property advertisement does not constitute property particulars. The information is provided and maintained by Evolution Properties, Ashford. Please contact the selling agent or developer directly to obtain any information which may be available under the terms of The Energy Performance of Buildings (Certificates and Inspections) (England and Wales) Regulations 2007 or the Home Report if in relation to a residential property in Scotland.
*This is the average speed from the provider with the fastest broadband package available at this postcode. The average speed displayed is based on the download speeds of at least 50% of customers at peak time (8pm to 10pm). Fibre/cable services at the postcode are subject to availability and may differ between properties within a postcode. Speeds can be affected by a range of technical and environmental factors. The speed at the property may be lower than that listed above. You can check the estimated speed and confirm availability to a property prior to purchasing on the broadband provider's website. Providers may increase charges. The information is provided and maintained by Decision Technologies Limited. **This is indicative only and based on a 2-person household with multiple devices and simultaneous usage. Broadband performance is affected by multiple factors including number of occupants and devices, simultaneous usage, router range etc. For more information speak to your broadband provider.
Map data ©OpenStreetMap contributors.





