Ingle Road, Chatham, Kent, ME4

- PROPERTY TYPE
End of Terrace
- BEDROOMS
3
- BATHROOMS
1
- SIZE
Ask agent
- TENUREDescribes how you own a property. There are different types of tenure - freehold, leasehold, and commonhold.Read more about tenure in our glossary page.
Freehold
Key features
- Move In Ready
- Great for First Time Buyers
- Good Investment Opportunity
- Close to Local Amenities
- Open Plan Living & Diner
- Three Seperate Bedrooms
- Large Main Bedroom
Description
Located on the conveniently located Ingle Road in Chatham, this 3-bedroom terraced property offers a fantastic opportunity for buyers or investors looking for a home with great potential.
The property benefits from three bedrooms, a bathroom, a private rear garden, and on-street parking. This space and layout offers flexibility to suit a variety of needs.
Situated nearby to local amenities, schools, and excellent transport links, including Chatham town centre and train station, this is a well-located home with plenty of scope to add value.
Exterior
Set in a well-connected residential area with easy access to local schools, shops, and transport links, the property also benefits from convenient on-road parking directly outside.
Key Terms
Chatham is famous for its Naval connection’s, hosting one of the Royal Navy’s main facilities for hundreds of years until it’s closure in 1984. Since the closure the former site, now known as St Mary’s Island, has been transformed and boasts a new retail outlet centre, bars, cafe’s, restaurants, gym and cinema to compliment the harbour and vast array of riverside housing. Part of the original naval history has also been preserved through the Historic Dockyard Trust, which provides an insight into past traditions. The Pentagon shopping centre and high street offer everything that you will need with a wide range of stores. Chatham is a commuter’s dream. High Speed rail links to Stratford International in just over 30 minutes or St Pancras International in just over 38 minutes. London Victoria is also accessible in just over 52 minutes. Trips to the continent are also within easy reach via the Eurostar, which departs from nearby Ebbsfleet. In any part of the town you are never too far from road links, the A2 and M2 are easily accessible in under 5 miles. With the M20 and M25 approximately 10 miles away. Chatham and near-by Rochester offer a fantastic range of primary and secondary schools, as well as the University.
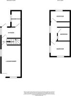
Reception Room
10' 5" x 23' 8" (3.18m x 7.21m)
Kitchen
9' 2" x 6' 5" (2.8m x 1.96m)
Bathroom
7' 11" x 4' 5" (2.41m x 1.35m)
Bedroom
13' 3" x 10' 3" (4.04m x 3.12m)
Bedroom
10 x 1.88m
Bedroom
10' 5" x 9' 1" (3.18m x 2.77m)
Brochures
Particulars- COUNCIL TAXA payment made to your local authority in order to pay for local services like schools, libraries, and refuse collection. The amount you pay depends on the value of the property.Read more about council Tax in our glossary page.
- Band: B
- PARKINGDetails of how and where vehicles can be parked, and any associated costs.Read more about parking in our glossary page.
- Ask agent
- GARDENA property has access to an outdoor space, which could be private or shared.
- Yes
- ACCESSIBILITYHow a property has been adapted to meet the needs of vulnerable or disabled individuals.Read more about accessibility in our glossary page.
- Ask agent
Ingle Road, Chatham, Kent, ME4
Add an important place to see how long it'd take to get there from our property listings.
__mins driving to your place
Get an instant, personalised result:
- Show sellers you’re serious
- Secure viewings faster with agents
- No impact on your credit score
Your mortgage
Notes
Staying secure when looking for property
Ensure you're up to date with our latest advice on how to avoid fraud or scams when looking for property online.
Visit our security centre to find out moreDisclaimer - Property reference CHA250152. The information displayed about this property comprises a property advertisement. Rightmove.co.uk makes no warranty as to the accuracy or completeness of the advertisement or any linked or associated information, and Rightmove has no control over the content. This property advertisement does not constitute property particulars. The information is provided and maintained by Robinson Michael & Jackson, Chatham. Please contact the selling agent or developer directly to obtain any information which may be available under the terms of The Energy Performance of Buildings (Certificates and Inspections) (England and Wales) Regulations 2007 or the Home Report if in relation to a residential property in Scotland.
*This is the average speed from the provider with the fastest broadband package available at this postcode. The average speed displayed is based on the download speeds of at least 50% of customers at peak time (8pm to 10pm). Fibre/cable services at the postcode are subject to availability and may differ between properties within a postcode. Speeds can be affected by a range of technical and environmental factors. The speed at the property may be lower than that listed above. You can check the estimated speed and confirm availability to a property prior to purchasing on the broadband provider's website. Providers may increase charges. The information is provided and maintained by Decision Technologies Limited. **This is indicative only and based on a 2-person household with multiple devices and simultaneous usage. Broadband performance is affected by multiple factors including number of occupants and devices, simultaneous usage, router range etc. For more information speak to your broadband provider.
Map data ©OpenStreetMap contributors.




