10 bedroom semi-detached house for rent
Birchfields Road, Fallowfield, Manchester, M13 0XX

Letting details
- Let available date:
- 15/07/2026
- Deposit:
- £3,000A deposit provides security for a landlord against damage, or unpaid rent by a tenant.Read more about deposit in our glossary page.
- Min. Tenancy:
- Ask agent How long the landlord offers to let the property for.Read more about tenancy length in our glossary page.
- Furnish type:
- Furnished
- Council Tax:
- Ask agent
- PROPERTY TYPE
Semi-Detached
- BEDROOMS
10
- BATHROOMS
3
- SIZE
Ask agent
Key features
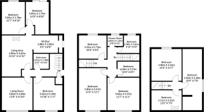
- 10 Double Bedrooms
- 3 Bathrooms
- Double Glazing
- Bike Storage
- Great Loaction
- Off Street Parking
- Flat Screen TV
- BILLS INCLUDED!!!
- Secure Cycle Storage
- Available 15th July 2026
Description
Property Details
All 10 double sized bedrooms have double beds with semi orthopaedic mattresses
Includes High Speed Fibre Broadband always connected – no set up needed
2 lounges with leather sofas & includes TV"s with Freeview & dining table with bench seating for ten
Kitchen which has Dishwasher, Washer Dryer, 2 Fridge Freezers, 2 ovens with 8 Gas Hobs so plenty of cooking space, lots of cupboard space.
3 Bathrooms with showers, one with a bath
Practical features include double glazing, efficient gas fired condenser boiler, interlinked smoke alarms in every room & security alarm
Exterior: Of road parking for three cars to the front & grassed back garden with gardener service included
Closest bus stop to uni/city is 20m on Birchfields Road (no. 50 every 5mins at peak times & until midnight) or 400m to Wilmslow rd(night bus 143)
Newsagent/ off licence / local supermarket / post office, 40m,
Lidl supermarket 900m , retail park with Home Bargains supermarket, Burger King/ Pizza Hut, Iceland and Poundstretcher 500m
- COUNCIL TAXA payment made to your local authority in order to pay for local services like schools, libraries, and refuse collection. The amount you pay depends on the value of the property.Read more about council Tax in our glossary page.
- Band: TBC
- PARKINGDetails of how and where vehicles can be parked, and any associated costs.Read more about parking in our glossary page.
- Yes
- GARDENA property has access to an outdoor space, which could be private or shared.
- Yes
- ACCESSIBILITYHow a property has been adapted to meet the needs of vulnerable or disabled individuals.Read more about accessibility in our glossary page.
- Ask agent
Birchfields Road, Fallowfield, Manchester, M13 0XX
Add an important place to see how long it'd take to get there from our property listings.
__mins driving to your place
Notes
Staying secure when looking for property
Ensure you're up to date with our latest advice on how to avoid fraud or scams when looking for property online.
Visit our security centre to find out moreDisclaimer - Property reference 113139. The information displayed about this property comprises a property advertisement. Rightmove.co.uk makes no warranty as to the accuracy or completeness of the advertisement or any linked or associated information, and Rightmove has no control over the content. This property advertisement does not constitute property particulars. The information is provided and maintained by Townhouse, Manchester. Please contact the selling agent or developer directly to obtain any information which may be available under the terms of The Energy Performance of Buildings (Certificates and Inspections) (England and Wales) Regulations 2007 or the Home Report if in relation to a residential property in Scotland.
*This is the average speed from the provider with the fastest broadband package available at this postcode. The average speed displayed is based on the download speeds of at least 50% of customers at peak time (8pm to 10pm). Fibre/cable services at the postcode are subject to availability and may differ between properties within a postcode. Speeds can be affected by a range of technical and environmental factors. The speed at the property may be lower than that listed above. You can check the estimated speed and confirm availability to a property prior to purchasing on the broadband provider's website. Providers may increase charges. The information is provided and maintained by Decision Technologies Limited. **This is indicative only and based on a 2-person household with multiple devices and simultaneous usage. Broadband performance is affected by multiple factors including number of occupants and devices, simultaneous usage, router range etc. For more information speak to your broadband provider.
Map data ©OpenStreetMap contributors.




