
Longcauseway, Farnworth, BL4

Letting details
- Let available date:
- Now
- Deposit:
- £778A deposit provides security for a landlord against damage, or unpaid rent by a tenant.Read more about deposit in our glossary page.
- Min. Tenancy:
- 12 months How long the landlord offers to let the property for.Read more about tenancy length in our glossary page.
- Let type:
- Long term
- Furnish type:
- Unfurnished
- Council Tax:
- Ask agent
- PROPERTY TYPE
Flat
- BEDROOMS
1
- BATHROOMS
1
- SIZE
Ask agent
Key features
- Fully Renovated
- First Floor Apartment
- New Kitchen
- New Bathroom
- New Flooring Throughout
- Maintained Communal Area
- Spacious Lounge
- Spacious Bedroom
Description
ONE BEDROOM FULLY RENOVATED APARTMENT – AVAILABLE TO LET | WATER BILLS INCLUDED
The award-winning Lettings Team at PRICE & CO are thrilled to present this beautifully renovated, first-floor one-bedroom apartment, ideally situated in the heart of Farnworth Town Centre, above a retail unit.
This stunning apartment has been fully refurbished to a high standard and offers modern open-plan living with neutral décor and quality laminate flooring. The stylish kitchen is fitted with a range of contemporary wall and base units, an integrated ceramic hob, overhead extractor, and space for a full-height fridge/freezer. The spacious double bedroom benefits from a private en-suite shower room, and the entrance vestibule provides access via stairs to the upper floor.
Located just a short walk from Farnworth Train Station and with easy access to the M61 motorway, the property is perfectly positioned for commuters and is surrounded by a wide range of local amenities and transport links.
Water bills are included within the tenancy (fair usage policy applies), and with the property finished to such a high standard, we expect strong interest.
Call now to arrange your viewing on !
EPC Rating: B
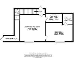
Kitchen (1.49m x 2.84m)
Bedroom 1 (3.19m x 4.54m)
Bathroom (1.7m x 1.91m)
- COUNCIL TAXA payment made to your local authority in order to pay for local services like schools, libraries, and refuse collection. The amount you pay depends on the value of the property.Read more about council Tax in our glossary page.
- Band: A
- PARKINGDetails of how and where vehicles can be parked, and any associated costs.Read more about parking in our glossary page.
- Ask agent
- GARDENA property has access to an outdoor space, which could be private or shared.
- Ask agent
- ACCESSIBILITYHow a property has been adapted to meet the needs of vulnerable or disabled individuals.Read more about accessibility in our glossary page.
- Ask agent
Energy performance certificate - ask agent
Longcauseway, Farnworth, BL4
Add an important place to see how long it'd take to get there from our property listings.
__mins driving to your place
Notes
Staying secure when looking for property
Ensure you're up to date with our latest advice on how to avoid fraud or scams when looking for property online.
Visit our security centre to find out moreDisclaimer - Property reference b8d16daf-b252-4609-aaef-94ebc4029e90. The information displayed about this property comprises a property advertisement. Rightmove.co.uk makes no warranty as to the accuracy or completeness of the advertisement or any linked or associated information, and Rightmove has no control over the content. This property advertisement does not constitute property particulars. The information is provided and maintained by Price and Co, Westhoughton. Please contact the selling agent or developer directly to obtain any information which may be available under the terms of The Energy Performance of Buildings (Certificates and Inspections) (England and Wales) Regulations 2007 or the Home Report if in relation to a residential property in Scotland.
*This is the average speed from the provider with the fastest broadband package available at this postcode. The average speed displayed is based on the download speeds of at least 50% of customers at peak time (8pm to 10pm). Fibre/cable services at the postcode are subject to availability and may differ between properties within a postcode. Speeds can be affected by a range of technical and environmental factors. The speed at the property may be lower than that listed above. You can check the estimated speed and confirm availability to a property prior to purchasing on the broadband provider's website. Providers may increase charges. The information is provided and maintained by Decision Technologies Limited. **This is indicative only and based on a 2-person household with multiple devices and simultaneous usage. Broadband performance is affected by multiple factors including number of occupants and devices, simultaneous usage, router range etc. For more information speak to your broadband provider.
Map data ©OpenStreetMap contributors.





