
High Street, Nettlebed, Henley-On-Thames, RG9

- PROPERTY TYPE
House
- BEDROOMS
6
- BATHROOMS
4
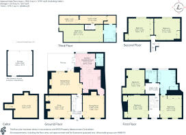
- SIZE
4,048 sq ft
376 sq m
- TENUREDescribes how you own a property. There are different types of tenure - freehold, leasehold, and commonhold.Read more about tenure in our glossary page.
Freehold
Key features
- Kitchen/breakfast room
- Sitting room
- Dining room
- Snug
- Cellar
- Six double bedrooms
- Four bath/shower rooms
- Garden
- Garage
- Driveway parking
Description
The spacious layout offers a wealth of options for entertaining, including two generous reception rooms at the front of the house, a sizeable sitting room with double doors opening to the outside terrace, and a relaxing kitchen and breakfast room which enjoys excellent natural light – the latter is perfect for informal family occasions. The accommodation is arranged over five floors and there is a generous cellar at basement level which is currently used for storage.
The bedrooms are arranged over the first, second and third floors, including three spacious double bedrooms, a principal bedroom with en suite bath/shower room on the first floor, together with a family bathroom; two further double bedrooms on the second floor and a sizeable en suite bedroom on the top floor which would make a lovely guest suite.
Outside
The house enjoys a central position in Nettlebed on the village high street, though benefits from private parking and a double garage accessed to the rear via a shared gravel driveway. To the rear of the house there is an idyllic courtyard-style garden which is mostly paved for convenience and features a number of flowerbeds stocked with specimen trees, shrubs, colourful flowering plants and herbaceous borders. A path leads through a charming arch to a gate at the rear to access the parking area. Adjoining the house there is a covered terrace providing outdoor dining in all weathers.
Situation
The sought-after village of Nettlebed is just four miles from the historic riverside town of Henley-on-Thames and is well-regarded for its charming village green, excellent local amenities, primary school, and access to beautiful countryside walks. Henley provides a vibrant mix of boutique shopping, fine dining, and the famous Henley Royal Regatta. The surrounding Chiltern Hills provide superb walking and cycling; a popular local route combines Nettlebed and the Warburg Nature Reserve in a circular route with the local creamery and cafe, The Cheese Shed. The property is conveniently located for commuters, with easy access to the M4 (J8/9) and M40 motorways, both approximately 12 miles away. Reading and Oxford are also within a short drive, and there is a bus stop in Nettlebed that provides transport to several prestigious schools, including Abingdon Boys', St Helen’s & St Katharine’s, Moulsford Prep, Cranford House, and Queen Anne’s. Other renowned schools nearby include The Oratory and Reading Bluecoat.
Property Ref Number:
HAM-61348Brochures
Brochure- COUNCIL TAXA payment made to your local authority in order to pay for local services like schools, libraries, and refuse collection. The amount you pay depends on the value of the property.Read more about council Tax in our glossary page.
- Band: G
- PARKINGDetails of how and where vehicles can be parked, and any associated costs.Read more about parking in our glossary page.
- Garage,Off street
- GARDENA property has access to an outdoor space, which could be private or shared.
- Private garden,Patio
- ACCESSIBILITYHow a property has been adapted to meet the needs of vulnerable or disabled individuals.Read more about accessibility in our glossary page.
- Ask agent
Energy performance certificate - ask agent
High Street, Nettlebed, Henley-On-Thames, RG9
Add an important place to see how long it'd take to get there from our property listings.
__mins driving to your place
Affordability
Get an instant, personalised result:
- Show sellers you’re serious
- Secure viewings faster with agents
- No impact on your credit score
Notes
Staying secure when looking for property
Ensure you're up to date with our latest advice on how to avoid fraud or scams when looking for property online.
Visit our security centre to find out moreDisclaimer - Property reference a1nQ500000ScB7BIAV. The information displayed about this property comprises a property advertisement. Rightmove.co.uk makes no warranty as to the accuracy or completeness of the advertisement or any linked or associated information, and Rightmove has no control over the content. This property advertisement does not constitute property particulars. The information is provided and maintained by Hamptons, Henley-on-Thames. Please contact the selling agent or developer directly to obtain any information which may be available under the terms of The Energy Performance of Buildings (Certificates and Inspections) (England and Wales) Regulations 2007 or the Home Report if in relation to a residential property in Scotland.
*This is the average speed from the provider with the fastest broadband package available at this postcode. The average speed displayed is based on the download speeds of at least 50% of customers at peak time (8pm to 10pm). Fibre/cable services at the postcode are subject to availability and may differ between properties within a postcode. Speeds can be affected by a range of technical and environmental factors. The speed at the property may be lower than that listed above. You can check the estimated speed and confirm availability to a property prior to purchasing on the broadband provider's website. Providers may increase charges. The information is provided and maintained by Decision Technologies Limited. **This is indicative only and based on a 2-person household with multiple devices and simultaneous usage. Broadband performance is affected by multiple factors including number of occupants and devices, simultaneous usage, router range etc. For more information speak to your broadband provider.
Map data ©OpenStreetMap contributors.








