
Dalton Street, Lytham St. Annes, FY8

- PROPERTY TYPE
Semi-Detached
- BEDROOMS
3
- BATHROOMS
1
- SIZE
Ask agent
Key features
- 2 RECEPTION ROOMS
- IDEAL FIRST HOME
- DETACHED GARAGE TO REAR
- Landscaped Rear Garden With Detached Garage
- MODERN KITCHEN
Description
Welcome to Dalton Street, this extended 3 bedroom house is positioned in a very popular area close to the sea front, amenities and local schools.
Front door opens on to the hallway, ground floor toilet under stairs. There is a well proportioned lounge, bay window to front elevation, the focal point is a modern electric fire. There is a 2nd reception room/formal dining room, the focal point is a superb fire surround. The kitchen is very well presented and has a wide range of shaker style wall and base units, along with complementary wooden worktops. Door from the kitchen opens on to the extension, currently used as a utility area, be could have a variety of uses. Door opens on to a superb landscaped outside decking area.
Stairs from the aforementioned hallway lead to the first floor, loft access on the landing. There are 3 bedrooms, 2 of which are excellent size double bedrooms. The family bathroom has a 4 piece suite, which comprises bath, separate shower, wash hand basin, toilet, fully tiled walls.
Externally there is a detached garage. The rear garden is fully enclosed and offers a good size low maintenance space. Raised decking with hot tub area, artificial lawn space.
*** An extended 3 bedroom semi detached home, located in a popular area, this home is ideal for first time buyers ***
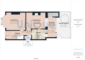
LOUNGE - 4.55 x 3.51 m (14′11″ x 11′6″ ft)
DINING ROOM - 3.78 x 3.17 m (12′5″ x 10′5″ ft)
KITCHEN - 2.69 x 2.00 m (8′10″ x 6′7″ ft)
SUNROOM/UTILITY - 3.92 x 1.53 m (12′10″ x 5′0″ ft)
GROUND FLOOR TOILET - 1.41 x 0.75 m (4′8″ x 2′6″ ft)
BEDROOM - 3.80 x 3.13 m (12′6″ x 10′3″ ft)
BEDROOM - 3.79 x 3.09 m (12′5″ x 10′2″ ft)
BEDROOM - 2.73 x 2.16 m (8′11″ x 7′1″ ft)
BATHROOM - 2.71 x 1.71 m (8′11″ x 5′7″ ft)
- COUNCIL TAXA payment made to your local authority in order to pay for local services like schools, libraries, and refuse collection. The amount you pay depends on the value of the property.Read more about council Tax in our glossary page.
- Ask agent
- PARKINGDetails of how and where vehicles can be parked, and any associated costs.Read more about parking in our glossary page.
- Yes
- GARDENA property has access to an outdoor space, which could be private or shared.
- Yes
- ACCESSIBILITYHow a property has been adapted to meet the needs of vulnerable or disabled individuals.Read more about accessibility in our glossary page.
- Ask agent
Dalton Street, Lytham St. Annes, FY8
Add an important place to see how long it'd take to get there from our property listings.
__mins driving to your place
Get an instant, personalised result:
- Show sellers you’re serious
- Secure viewings faster with agents
- No impact on your credit score

Your mortgage
Notes
Staying secure when looking for property
Ensure you're up to date with our latest advice on how to avoid fraud or scams when looking for property online.
Visit our security centre to find out moreDisclaimer - Property reference 9665. The information displayed about this property comprises a property advertisement. Rightmove.co.uk makes no warranty as to the accuracy or completeness of the advertisement or any linked or associated information, and Rightmove has no control over the content. This property advertisement does not constitute property particulars. The information is provided and maintained by Unique Estate Agency Ltd, Lytham St Annes. Please contact the selling agent or developer directly to obtain any information which may be available under the terms of The Energy Performance of Buildings (Certificates and Inspections) (England and Wales) Regulations 2007 or the Home Report if in relation to a residential property in Scotland.
*This is the average speed from the provider with the fastest broadband package available at this postcode. The average speed displayed is based on the download speeds of at least 50% of customers at peak time (8pm to 10pm). Fibre/cable services at the postcode are subject to availability and may differ between properties within a postcode. Speeds can be affected by a range of technical and environmental factors. The speed at the property may be lower than that listed above. You can check the estimated speed and confirm availability to a property prior to purchasing on the broadband provider's website. Providers may increase charges. The information is provided and maintained by Decision Technologies Limited. **This is indicative only and based on a 2-person household with multiple devices and simultaneous usage. Broadband performance is affected by multiple factors including number of occupants and devices, simultaneous usage, router range etc. For more information speak to your broadband provider.
Map data ©OpenStreetMap contributors.






