Office to lease
Greenbox, Stoke Prior, Bromsgrove B60 4AL
- SIZE AVAILABLE
749 sq ft
70 sq m
- SECTOR
Office to lease
Lease details
- Lease available date:
- Ask agent
Key features
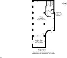
- 749 sq ft (69.70m2) Office
- 100% Small Business Rates Relief (Subject to Qualifying)
- Three Allocated Parking Spaces
- On Street Parking Available
- £10,500 pa + VAT
Description
The office is located on the first floor of an impressive 1920'period building at Stoke Prior. There is a main door at ground floor level with an intercom system, this leads you to a main hallway where each offices own post tray and there is a communal disabled WC. There is a staircase to the first floor level and the office is situated to the right hand side of the corridor. The office has its own lockable door and you enter into the main open plan office area with lots of natural light through the 7 full height windows. The main open plan office is carpeted with power sockets and data cables to the perimeter walls. There is a separate office/meeting room with glazed screen to separate it. There is a kitchen area beyond this with base units, space for a fridge, worktop, sink tiled splashback and wall unit. There are two toilet beyond the kitchen area with a lobby between them. The office has the use of 3 allocated parking spaces and there is also unrestricted parking on the road outside the office development.
Location: - Located on Westonhall Road, 2.5 miles from the M5 motorway at junction 5. The site also has good road access to Bromsgrove and the M42 motorway.
Description: - The office is located on the first floor of an impressive 1920'period building at Stoke Prior. There is a main door at ground floor level with an intercom system, this leads you to a main hallway where each offices own post tray and there is a communal disabled WC. There is a staircase to the first floor level and the office is situated to the right hand side of the corridor. The office has its own lockable door and you enter into the main open plan office area with lots of natural light through the 7 full height windows. The main open plan office is carpeted with power sockets and data cables to the perimeter walls. There is a separate office/meeting room with glazed screen to separate it. There is a kitchen area beyond this with base units, space for a fridge, worktop, sink tiled splashback and wall unit. There are two toilet beyond the kitchen area with a lobby between them. The office has the use of 3 allocated parking spaces and there is also unrestricted parking on the road outside the office development.
Floor Area: - Net Internal Area (NIA) is 749 sq ft (69.70m2)
Price: - £10,500 Per Annum
Tenure: - New Lease Available
Service Charge: - The annual service charge figure for 2025/26 to be confirmed, payable to the block management company.
Rateable Value - Not currently rated, source: .
Rates Payable: - The rates payable are calculated as a multiplier of the rateable value. If the rateable value is £12,000 or less, small businesses may be entitled to 100% rates relief providing the property is their only business premises. Any interested applicants should contact the local authority and verify the multiplier and check if any rates relief is available for their business.
Insurance: - Standard commercial terms are that the landlord insures the building and the tenant pays the landlord the cost of the buildings insurance annually. The tenant will be responsible for insuring their own stock, content and liabilities.
Legal Costs & Holding Deposit: - Each party pays their own legal costs. The landlord may request a holding deposit of £?????? once terms are agreed this will be deducted off the first payment of rent.
Deposit: - The landlord may ask the tenant to provide a deposit, this is typically the equivalent of three months worth of rent but could change and is subject of the tenant’s financial status.
Vat: - Value Added Tax at the prevailing rate is applicable on all costs shown in these particulars apart from business rates.
Epc: - The Energy Performance Rating of the property is = C.
A full copy of this report is available from the agent’s office upon request.
Viewing: - Viewing strictly by prior appointment with sole agent:
Richard Johnson: - Westbridge Commercial Ltd
1st Floor Offices
3 Trinity Street
Stratford Upon Avon
CV37 6BL
Tel:
Gdpr: - You have requested a viewing of a property and therefore we will require certain pieces of personal information from you in order to provide a professional service to you and our client. Should you wish to take up a tenancy the process will involve collecting personal information about you or your company which will need to be shared with our client and Credit Safe or other credit referencing agencies. We will not share this information with any other third party without your consent. More information on how we hold and process your data is available on our website
- 749 sq ft (69.70m2) Office
- 100% Small Business Rates Relief (Subject to Qualifying)
- Three Allocated Parking Spaces
- On Street Parking Available
- £10,500 pa + VAT
- Separate Meeting Room
- Two Toilets
- Own Kitchen
- Open Plan Office
- 7 Windows Giving Natural Light
Brochures
Greenbox, Stoke Prior, Bromsgrove B60 4AL
NEAREST STATIONS
Distances are straight line measurements from the centre of the postcode- Bromsgrove Station2.4 miles
- Droitwich Spa Station3.7 miles
- Barnt Green Station5.9 miles
Notes
Disclaimer - Property reference 34259459. The information displayed about this property comprises a property advertisement. Rightmove.co.uk makes no warranty as to the accuracy or completeness of the advertisement or any linked or associated information, and Rightmove has no control over the content. This property advertisement does not constitute property particulars. The information is provided and maintained by Westbridge Commercial Limited, Stratford Upon Avon. Please contact the selling agent or developer directly to obtain any information which may be available under the terms of The Energy Performance of Buildings (Certificates and Inspections) (England and Wales) Regulations 2007 or the Home Report if in relation to a residential property in Scotland.
Map data ©OpenStreetMap contributors.






