
Lorne Road, Prenton, Merseyside, CH43

- PROPERTY TYPE
Maisonette
- BEDROOMS
2
- BATHROOMS
1
- SIZE
Ask agent
Key features
- 50% Shared Ownership (option to purchase remaining 50% anytime)
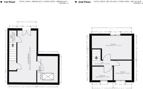
- Attractive L-shaped lounge/diner with Juliet balcony
- Modern fitted kitchen with Velux window
- Two bedrooms and a contemporary family bathroom
- Allocated parking space and no onward chain
- Leasehold property – Council Tax Band B
Description
This beautifully presented first floor two-bedroom duplex maisonette offers modern living in a sought-after location close to Oxton Village.
The property features an inviting L-shaped lounge and dining area filled with natural light, complete with a Juliet balcony to the front. A contemporary fitted kitchen with a Velux window provides a bright and airy cooking space, while two well-proportioned bedrooms and a modern family bathroom complete the accommodation. The property will be sold furnished (bed, wardrobe, sofa, washing machine, dining table included).
Externally, to the front there are communal gardens and an allocated parking space for added convenience. Offered for sale with no onward chain, this property represents a fantastic opportunity for first-time buyers or downsizers alike.
Available as a 50% shared ownership with the option to purchase the remaining share at any time, it provides an affordable route to homeownership. A modest rent of £100 per month is payable on the remaining 50% share. 150 Year lease.
Located just a short distance from the vibrant amenities of Oxton Village, this home combines convenience, comfort, and excellent value.
Brochures
Particulars- COUNCIL TAXA payment made to your local authority in order to pay for local services like schools, libraries, and refuse collection. The amount you pay depends on the value of the property.Read more about council Tax in our glossary page.
- Band: A
- PARKINGDetails of how and where vehicles can be parked, and any associated costs.Read more about parking in our glossary page.
- Yes
- GARDENA property has access to an outdoor space, which could be private or shared.
- Ask agent
- ACCESSIBILITYHow a property has been adapted to meet the needs of vulnerable or disabled individuals.Read more about accessibility in our glossary page.
- Ask agent
Energy performance certificate - ask agent
Lorne Road, Prenton, Merseyside, CH43
Add an important place to see how long it'd take to get there from our property listings.
__mins driving to your place
Get an instant, personalised result:
- Show sellers you’re serious
- Secure viewings faster with agents
- No impact on your credit score
Your mortgage
Notes
Staying secure when looking for property
Ensure you're up to date with our latest advice on how to avoid fraud or scams when looking for property online.
Visit our security centre to find out moreDisclaimer - Property reference PRE250511. The information displayed about this property comprises a property advertisement. Rightmove.co.uk makes no warranty as to the accuracy or completeness of the advertisement or any linked or associated information, and Rightmove has no control over the content. This property advertisement does not constitute property particulars. The information is provided and maintained by Bradshaw Farnham & Lea, Prenton. Please contact the selling agent or developer directly to obtain any information which may be available under the terms of The Energy Performance of Buildings (Certificates and Inspections) (England and Wales) Regulations 2007 or the Home Report if in relation to a residential property in Scotland.
*This is the average speed from the provider with the fastest broadband package available at this postcode. The average speed displayed is based on the download speeds of at least 50% of customers at peak time (8pm to 10pm). Fibre/cable services at the postcode are subject to availability and may differ between properties within a postcode. Speeds can be affected by a range of technical and environmental factors. The speed at the property may be lower than that listed above. You can check the estimated speed and confirm availability to a property prior to purchasing on the broadband provider's website. Providers may increase charges. The information is provided and maintained by Decision Technologies Limited. **This is indicative only and based on a 2-person household with multiple devices and simultaneous usage. Broadband performance is affected by multiple factors including number of occupants and devices, simultaneous usage, router range etc. For more information speak to your broadband provider.
Map data ©OpenStreetMap contributors.








