Skip to content

Tuscany, Florence, Empoli, Italy

£1,453,980
€1,650,000
John D Wood International, RoW
PROPERTY TYPE

Detached

BEDROOMS

5

BATHROOMS

3

SIZE

Ask agent

Key features

  • Walk-in closet

Description

Located in the northern part of Tuscany, this villa enjoys a strategic position on the outskirts of Empoli, in an area known for its tranquility and lush greenery — offering the privacy of the countryside together with the convenience of being close to the city and its services.

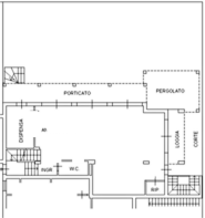
The property, with a total internal surface area of approximately 351 sqm, is arranged over two above-ground floors and a semi-basement level, complemented by several terraces and balconies.

The villa has been renovated in a modern style, featuring clean, modular lines, high-quality finishes and materials, and soft, neutral tones that enhance the sense of space.

The ground floor hosts a large living area with a double living room divided into a dining zone, two sitting areas, and an open-plan American-style kitchen with pantry. The entire space is particularly bright thanks to the large glass walls covering two sides of the room, which open onto the patio and the garden. On the same level, there is also a guest bathroom and a storage room.

Upstairs, the sleeping area includes a master bedroom with en-suite bathroom, walk-in closet, and private terrace; adjacent are four single bedrooms, each with its own balcony, and a shared bathroom. These rooms, too, are airy and sunlit, with French doors overlooking the garden.

The semi-basement level, which can also be accessed from outside, features a spacious hobby area with lounge, billiard room, and gym, as well as a large space used as an office and laundry area, plus a bathroom.

Outdoors, the property boasts several areas such as porches and patios designed as relaxation and dining spaces, ideal for hosting guests. It is surrounded by a beautifully maintained lawn garden, well defined and easily customizable according to personal needs.

Access to the villa is marked by a large parking area suitable for several cars.

The location is highly sought after for its proximity to the main attractions of northern Tuscany. Indeed, Florence — the quintessential cultural capital of the region and all of Italy — is just a short distance away.

Tuscany, Florence, Empoli, Italy

NEAREST AIRPORTS

Distances are straight line measurements
  • Florence(International)
    14.8 miles
  • Galileo(International)
    27.1 miles
  • Borgo Panigale(International)
    60.3 miles
  • Marina di Campo(International)
    73.9 miles

Advice on buying Italian property

Learn everything you need to know to successfully find and buy a property in Italy.

About John D Wood International, RoW

Established in Mayfair in 1872, John D Wood & Co. has 150 years experience specialising in selling and letting properties in London, the South of England, country and internationally, as well as staff relocation services and interior consultancy, and are committed to offering a bespoke service, a strategic approach to marketing, and local expertise that has been trusted for generations.

When we promise the world, we mean it.

We cover 30+ countries through a network of strategically handpicked international partner agents who are leading agents in their markets.

Together we offer an international reach, with local expertise, and a commitment to excellence. Whether you're seeking a rural holiday home, a beachfront villa, or a city centre apartment, we can help make your dream a reality.

Notes

These notes are private, only you can see them.

This is a property advertisement provided and maintained by John D Wood International, RoW (reference 21099872_14883990) and does not constitute property particulars. Whilst we require advertisers to act with best practice and provide accurate information, we can only publish advertisements in good faith and have not verified any claims or statements or inspected any of the properties, locations or opportunities promoted. Rightmove does not own or control and is not responsible for the properties, opportunities, website content, products or services provided or promoted by third parties and makes no warranties or representations as to the accuracy, completeness, legality, performance or suitability of any of the foregoing. We therefore accept no liability arising from any reliance made by any reader or person to whom this information is made available to. You must perform your own research and seek independent professional advice before making any decision to purchase or invest in overseas property.

Email agent

Email agent