
Horebeech Lane, Horam, Heathfield, East Sussex, TN21
- PROPERTY TYPE
Land
- SIZE
Ask agent
Description
Proposal
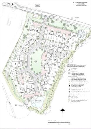
The Proposal Outline planning permission has been granted to establish the principles of this proposed development on Horebeech Lane, Outline planning permission and reserve matters has been granted for this proposed development on Horebeech Lane, Horam, East Sussex TN21 9DZ. (WD/2021/2356/MAO; Planning Inspectorate APP/C1435/W/22/329737). The developer will be responsible for delivering any communal highways and landscaping works and installing utilities before custom or self-builders get underway.
Location
Horam is a vibrant village in the Wealden District of East Sussex, situated three miles south of Heathfield and is in the parish of settlements including Vines Cross and Burlow. It lies in the Low Weald and is close to the southern boundary of the High Weald Area of Outstanding Natural Beauty (AONB). The village has good road links with the A267 linking Tunbridge Wells and Eastbourne. It is also served by various routes of the Eastbourne Bus company.
The site lies to the east of the village of Horam on Horebeech Lane, adjacent to the famous Cuckoo Trail and is well served by existing vehicular pedestrian and cycle links. Located approximately 12 minutes’ walk from Horam High Street which provides local amenities including café, pub, post office, pharmacy, convenience store, garage, hairdressers, dentist, vet, and a range of independent shops.
Detailed Information Pack Available Upon Request.
Horebeech Lane, Horam, Heathfield, East Sussex, TN21
NEAREST STATIONS
Distances are straight line measurements from the centre of the postcode- Buxted Station6.7 miles



Notes
Disclaimer - Property reference ASH250163. The information displayed about this property comprises a property advertisement. Rightmove.co.uk makes no warranty as to the accuracy or completeness of the advertisement or any linked or associated information, and Rightmove has no control over the content. This property advertisement does not constitute property particulars. The information is provided and maintained by Freeman Forman, Heathfield. Please contact the selling agent or developer directly to obtain any information which may be available under the terms of The Energy Performance of Buildings (Certificates and Inspections) (England and Wales) Regulations 2007 or the Home Report if in relation to a residential property in Scotland.
Map data ©OpenStreetMap contributors.





