9 Hazel Avenue, Kilmarnock, KA1 2HH

- PROPERTY TYPE
Semi-Detached
- BEDROOMS
4
- BATHROOMS
2
- SIZE
1,604 sq ft
149 sq m
- TENUREDescribes how you own a property. There are different types of tenure - freehold, leasehold, and commonhold.Read more about tenure in our glossary page.
Freehold
Key features
- Extended four bedroom semi-detached villa
- Spacious family and dining room to the rear extension
- Separate kitchen with adjoining utility room
- Two bathrooms across ground and first floor levels
- Ground floor bedroom options ideal for flexible living
- Recently rewired with new boiler and radiators installed
- Some areas require plastering and general cosmetic upgrading
- Large multi-car driveway with detached garage
- Low maintenance south facing rear garden
- Catchment area for Grange Academy and Annanhill Primary
Description
***CLOSING DATE - WEDNESDAY 5TH NOVEMBER AT 11AM***
Donald Ross Residential are proud to welcome to the market 9 Hazel Avenue. This extended semi-detached villa offers an exciting opportunity to create a superb family home within one of Kilmarnock’s most sought after residential pockets. Ideally positioned just moments away from Annanhill Primary and Grange Academy, the property provides an excellent layout with a large rear dining/family room, kitchen with utility, two bathrooms and a ground floor bedroom, with the option of an additional lounge or fourth bedroom. Although some cosmetic improvement and plastering work is required, the home benefits from a full rewire, a new boiler and new radiators, offering a strong foundation for further enhancement. Externally, there is a generous multi-car driveway, substantial detached garage and a private, low-maintenance south facing rear garden.
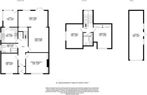
Lounge / Bedroom 4
3.78m x 4.11m
Family Room
2.99m x 5.2m
Dining Room
4.52m x 3.65m
Kitchen
3.1m x 3m
Bedroom 1
3.65m x 3.03m
Shower Room
1.77m x 2.99m
Utility Room
3.04m x 2.66m
Hall
7.6m x 1.79m
Landing
3.97m x 1.77m
Bedroom 2
4.3m x 3.02m
Bedroom 3
4.79m x 3.29m
Shower Room
2.38m x 1.77m
Parking - Driveway
Parking - Garage
Brochures
WebsiteHome ReportProperty Brochure- COUNCIL TAXA payment made to your local authority in order to pay for local services like schools, libraries, and refuse collection. The amount you pay depends on the value of the property.Read more about council Tax in our glossary page.
- Band: E
- PARKINGDetails of how and where vehicles can be parked, and any associated costs.Read more about parking in our glossary page.
- Garage,Driveway
- GARDENA property has access to an outdoor space, which could be private or shared.
- Front garden,Rear garden
- ACCESSIBILITYHow a property has been adapted to meet the needs of vulnerable or disabled individuals.Read more about accessibility in our glossary page.
- Ask agent
Energy performance certificate - ask agent
9 Hazel Avenue, Kilmarnock, KA1 2HH
Add an important place to see how long it'd take to get there from our property listings.
__mins driving to your place
Get an instant, personalised result:
- Show sellers you’re serious
- Secure viewings faster with agents
- No impact on your credit score

Your mortgage
Notes
Staying secure when looking for property
Ensure you're up to date with our latest advice on how to avoid fraud or scams when looking for property online.
Visit our security centre to find out moreDisclaimer - Property reference 6afcdf76-ae97-4a4d-a33c-db7b9c26ca75. The information displayed about this property comprises a property advertisement. Rightmove.co.uk makes no warranty as to the accuracy or completeness of the advertisement or any linked or associated information, and Rightmove has no control over the content. This property advertisement does not constitute property particulars. The information is provided and maintained by Donald Ross Residential, Kilmarnock. Please contact the selling agent or developer directly to obtain any information which may be available under the terms of The Energy Performance of Buildings (Certificates and Inspections) (England and Wales) Regulations 2007 or the Home Report if in relation to a residential property in Scotland.
*This is the average speed from the provider with the fastest broadband package available at this postcode. The average speed displayed is based on the download speeds of at least 50% of customers at peak time (8pm to 10pm). Fibre/cable services at the postcode are subject to availability and may differ between properties within a postcode. Speeds can be affected by a range of technical and environmental factors. The speed at the property may be lower than that listed above. You can check the estimated speed and confirm availability to a property prior to purchasing on the broadband provider's website. Providers may increase charges. The information is provided and maintained by Decision Technologies Limited. **This is indicative only and based on a 2-person household with multiple devices and simultaneous usage. Broadband performance is affected by multiple factors including number of occupants and devices, simultaneous usage, router range etc. For more information speak to your broadband provider.
Map data ©OpenStreetMap contributors.




