
3 bedroom detached bungalow for sale
Aldershot Road, Church Crookham, Fleet

- PROPERTY TYPE
Detached Bungalow
- BEDROOMS
3
- BATHROOMS
1
- SIZE
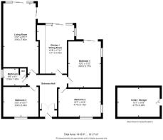
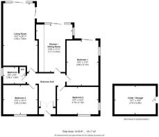
1,418 sq ft
132 sq m
- TENUREDescribes how you own a property. There are different types of tenure - freehold, leasehold, and commonhold.Read more about tenure in our glossary page.
Freehold
Key features
- Fully renovated three-bedroom detached bungalow
- Bright and spacious living room with dual-aspect windows and sliding doors
- Approximately 1/3 of an acre plot
- Contemporary kitchen/dining room
- Ample off-road parking for multiple vehicles
- Peaceful and sought-after Church Crookham location
- Expansive private rear gardens with mature trees, patio area, and excellent privacy
- Cellar/storage area and large loft offering potential for conversion (STPP)
- Surrounded by beautiful green spaces – Velmead Common, Basingbourne Park, and Tweseldown Racecourse
- Well-regarded primary options such as Tweseldown Infant and Crookham C of E Junior School
Description
Set within approximately one-third of an acre of mature, landscaped grounds, this impressive three-bedroom detached bungalow has been fully renovated by the current owners, creating a stylish and contemporary home that perfectly balances modern living with comfort and space. Recent upgrades include a new kitchen and bathroom, replacement windows, new flooring throughout, and numerous high-quality finishes that make this home truly move-in ready.
The accommodation is bright and well-planned. A welcoming entrance hall leads into a spacious living room, featuring dual-aspect windows and sliding doors opening onto the rear patio — flooding the room with natural light and providing an ideal setting for relaxing or entertaining. The contemporary kitchen/dining room is beautifully appointed, offering ample storage and workspace, with plenty of room for family dining while enjoying views over the gardens. There are three generous bedrooms, including a large principal bedroom, all served by a refitted family bathroom finished to a high standard. Every detail has been thoughtfully considered to create a harmonious and comfortable home.
Outside, the property enjoys extensive and private gardens extending to approximately 0.31 acres, offering space for children to play, for keen gardeners to create their ideal outdoor retreat, or for those seeking further potential to extend or personalise (subject to planning permission). The grounds include a rear patio area, perfect for outdoor dining and entertaining, and are bordered by mature trees providing excellent privacy.
Further benefits include a useful cellar/storage area located beneath the main bedroom, a large loft space offering additional potential for conversion, and ample off-road parking for multiple vehicles.
Situated in the highly sought-after village of Church Crookham, this home enjoys a peaceful and family-friendly setting while remaining close to a range of everyday amenities. The area is particularly renowned for its excellent local schools, including Court Moor Secondary School and Calthorpe Park School, both highly regarded for their academic standards and community values. For younger children, Tweseldown Infant School and Crookham Church of England Junior School are also within easy reach, making this an ideal location for families seeking quality education at every stage.
Church Crookham is well known for its welcoming community and abundance of green spaces, such as Velmead Common, Basingbourne Park, and Tweseldown Racecourse — perfect for walking, cycling, and outdoor recreation. Commuters benefit from easy access to Fleet railway station, offering fast and frequent services to London Waterloo (approximately 40–50 minutes), as well as excellent road links via the M3, connecting to London, Southampton, and beyond.
Offering a rare opportunity to enjoy single-storey living in one of Fleet’s most sought-after locations, this property combines modern style, generous outdoor space, and outstanding potential — making it an ideal choice for families, downsizers, or anyone seeking a home with room to grow.
Brochures
Aldershot Road, Church Crookham, FleetBrochure- COUNCIL TAXA payment made to your local authority in order to pay for local services like schools, libraries, and refuse collection. The amount you pay depends on the value of the property.Read more about council Tax in our glossary page.
- Band: E
- PARKINGDetails of how and where vehicles can be parked, and any associated costs.Read more about parking in our glossary page.
- Off street
- GARDENA property has access to an outdoor space, which could be private or shared.
- Yes
- ACCESSIBILITYHow a property has been adapted to meet the needs of vulnerable or disabled individuals.Read more about accessibility in our glossary page.
- Ask agent
Aldershot Road, Church Crookham, Fleet
Add an important place to see how long it'd take to get there from our property listings.
__mins driving to your place
Get an instant, personalised result:
- Show sellers you’re serious
- Secure viewings faster with agents
- No impact on your credit score
Your mortgage
Notes
Staying secure when looking for property
Ensure you're up to date with our latest advice on how to avoid fraud or scams when looking for property online.
Visit our security centre to find out moreDisclaimer - Property reference 34261176. The information displayed about this property comprises a property advertisement. Rightmove.co.uk makes no warranty as to the accuracy or completeness of the advertisement or any linked or associated information, and Rightmove has no control over the content. This property advertisement does not constitute property particulars. The information is provided and maintained by Waterfords, Fleet. Please contact the selling agent or developer directly to obtain any information which may be available under the terms of The Energy Performance of Buildings (Certificates and Inspections) (England and Wales) Regulations 2007 or the Home Report if in relation to a residential property in Scotland.
*This is the average speed from the provider with the fastest broadband package available at this postcode. The average speed displayed is based on the download speeds of at least 50% of customers at peak time (8pm to 10pm). Fibre/cable services at the postcode are subject to availability and may differ between properties within a postcode. Speeds can be affected by a range of technical and environmental factors. The speed at the property may be lower than that listed above. You can check the estimated speed and confirm availability to a property prior to purchasing on the broadband provider's website. Providers may increase charges. The information is provided and maintained by Decision Technologies Limited. **This is indicative only and based on a 2-person household with multiple devices and simultaneous usage. Broadband performance is affected by multiple factors including number of occupants and devices, simultaneous usage, router range etc. For more information speak to your broadband provider.
Map data ©OpenStreetMap contributors.








