
Plot for sale
Plot rear of Alfreda Court, Soham
- PROPERTY TYPE
Plot
- SIZE
Ask agent
Key features
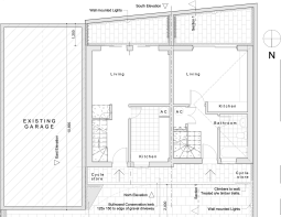
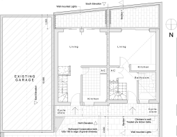
- Building plot for 2 dwellings
- Full planning for a 2 bed house and a one bed maisonette.
- Town centre location.
- Planning (Ref 13/00060/FUL) is already implemented
- CIL Requirements already met.
- Good development opportunity.
- Brochure available to download below.
- Close to Shops, School and Rail Station.
Description
Soham
Soham is the second largest town in East Cambridgeshire and is located between Ely (6 miles) and Newmarket (7 miles), both of which have a wide range of shopping and leisure facilities. The A142 has good connections with Cambridge via the A14/A11.
Soham has its own range of local shops including the Co-Op & Asda and small eateries, pubs, hairdressers, leisure centre and doctor's surgery. The town is a popular place to live for families due to the area’s proximity to Cambridge, Ely and Bury St Edmunds. There are three primary schools feeding into the highly-rated Soham Village College. Soham train station links to Ely and the mainline to Cambridge and London. London Stansted airport is a 40-minute drive via the A11.
Description
Bovingdons are delighted to bring to the market this centrally located development land just off Red Lion Square. Full planning permission was granted by East Cambridgeshire District Council in April 2013 (Ref 13/00060/FUL) for a two bedroom house of circa 560 Sq ft and a one bedroom maisonette of circa 380Sq ft.
Planning has been implemented with concrete footings being constructed and inspected by the local authority. CIL requirements have also been met by the seller.
Title & Tenure
The land is Freehold, currently registered under Title Number CB321669 which will be split and will provide vacant possession upon completion.
Method of Sale
The property is for sale by Private Treaty.
Offers
Offers are invited for the freehold purchase of the site. All offers will need to be confirmed in writing to the sellers sole agent and include the following:
1 - Proof of funding.
2 - Timescales for proposed exchange and completion.
3 - Proof of ID.
4 - Details of Solicitors to be instructed on the purchase
5 - Confirmation that a 10% deposit will be paid on exchange of contracts.
Restrictive Covenants
We are not aware of any restrictive covenants that affect the site but prospective buyers are advised to seek clarification before legal commitment. However conditions are attached to the planning permission. (See below)
Wayleaves, Easements & Rights of Way
The land is to be sold subject to all existing rights of way, public or private, light support, drainage, water and electricity supplies and allotted rights and obligations, easements, quasi easements and all wayleaves whether referred to or not in the sales particulars.
Purchasers will be deemed to have full knowledge and satisfied themselves as to the provisions of any such matters which may affect the property.
Services
Prospective purchasers are to make their own enquiries as to the location/provision of services.
VAT
Should any sale of the land or any right attached to it become chargeable for VAT, then such tax will be the liability of the purchaser to settle in addition to the purchase price.
Local Authorities
East Cambridgeshire District Council -
Cambridgeshire County Council -
Soham Town Council - Tel: .
Viewings
Viewings are via the selling agents although the site is easily accessed and viewed.
Expected GDV
The latest market research as of October 2025 is that the resale figures of the completed dwellings would be £200,000 for the 2 bed house and £120,000 for the 1 bed Maisonette giving a total Gross Development Value of £320,000.
ORIGINAL PLANNING CONDITIONS
1) The development hereby permitted shall be commenced within 3 years of the date of this permission.
2) No development shall take place until samples of the materials to be used in the construction of the external surfaces of the development hereby permitted have been submitted to and approved in writing by the Local Planning Authority. All development shall be carried out in accordance with the approved details.
3) No development shall begin until the applicant has secured the implementation of a programme of archaeological work in accordance with a written scheme of investigation which has been submitted by the applicant and approved in writing by the Local Planning Authority. The archaeological work shall be carried out in accordance with the approved details.
4) No development shall take place until an investigation and risk assessment of the nature and extent of any contamination on the site, whether or not it originates on the site, has been undertaken. The investigation and risk assessment must be undertaken by competent persons, and a written report of the findings must be submitted to and approved in writing by the Local Planning Authority. The report of the findings must include:
(i) A survey of the extent, scale and nature of contamination;
(ii) An assessment of the potential risks to: human health, property (existing or proposed) including buildings, crops, livestock, pets, woodland and service lines and pipes; adjoining land; groundwaters and surface waters; ecological systems; archaeological sites and ancient monuments;
(iii) An appraisal of remedial options, and proposal of the preferred option(s).
This must be conducted in accordance with DEFRA and the Environment Agency's 'Model Procedures for the Management of Land Contamination, CLR 11'. Any remediation works proposed shall be carried out in accordance with the approved details before any development takes place.
5) In the event that contamination is found at any time when carrying out the approved development that was not previously identified it must be reported in writing to the Local Planning Authority within 24 hours. An investigation and risk assessment must be undertaken and approved in writing by the Local Planning Authority. Where remediation is necessary, a remediation scheme must be submitted to and approved in writing by the Local Planning Authority. The necessary remediation works shall be undertaken, and following completion of measures identified in the approved remediation scheme a verification report must be prepared, and approved in writing by the Local Planning Authority.
6) Prior to the first occupation of the development space shall be laid out within the site for 3 cars to park, as shown on drawing No.90 Revision A. One of the three car parking spaces shall be specifically allocated to the two-bed flat hereby approved. The car parking area shall be levelled, surfaced and drained and thereafter retained for that specific use.
Plot rear of Alfreda Court, Soham
NEAREST STATIONS
Distances are straight line measurements from the centre of the postcode- Soham Station0.5 miles
- Ely Station5.1 miles
Notes
Disclaimer - Property reference S1481665. The information displayed about this property comprises a property advertisement. Rightmove.co.uk makes no warranty as to the accuracy or completeness of the advertisement or any linked or associated information, and Rightmove has no control over the content. This property advertisement does not constitute property particulars. The information is provided and maintained by Bovingdons, Soham. Please contact the selling agent or developer directly to obtain any information which may be available under the terms of The Energy Performance of Buildings (Certificates and Inspections) (England and Wales) Regulations 2007 or the Home Report if in relation to a residential property in Scotland.
Map data ©OpenStreetMap contributors.








