
12 Ravelston House Road, Edinburgh, EH4 3LW

- PROPERTY TYPE
- Detached 
- BEDROOMS
- 4 
- BATHROOMS
- 2 
- SIZE
- Ask agent 
- TENUREDescribes how you own a property. There are different types of tenure - freehold, leasehold, and commonhold.Read more about tenure in our glossary page.
- Freehold 
Description
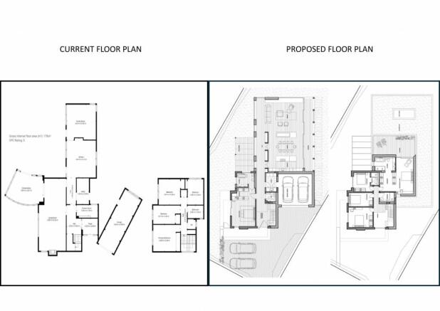
In its existing form which requires significant modernisation, the property features a spacious lounge with a dedicated dining area, highlighted by a large window overlooking the garden. A conservatory with double doors opens onto a charming courtyard, creating an inviting flow between indoor and outdoor spaces. The ground floor also includes a breakfast kitchen, family room, utility room, and shower room.
The upper level currently offers four double bedrooms and a family bathroom, with attic access providing additional storage or development potential.
Proposed Transformation:
Ground Floor
Expansive open-plan kitchen, dining, and lounge area designed for modern living and entertaining.
Bedroom 1: Guest suite with en-suite and dressing area ideal for family or visitors.
Utility room and WC for added practicality.
Double garage offering secure parking and ample storage.
Seamless indoor-outdoor flow with a central courtyard maximizing natural light and connection to nature.
First Floor
Bedroom 2: Luxurious master suite with en-suite, dressing area and a large private terrace overlooking the grounds.
Bedroom 3: Further en-suite accommodation.
Bedrooms 4: Generously sized double room.
Bedrooms 5: Generously sized double room.
Main bathroom serving the additional bedrooms.
Set in one of Edinburgh's most desirable residential locations with a design that truly unlocks its full potential. This architectural vision transforms this property into a sophisticated, high-end contemporary home, blending elegance with functionality.
A rare opportunity in Ravelston with architectural plans to transform into a stunning modern home. Perfect for those seeking a blend of seclusion and proximity to central Edinburgh in a desirable location. Viewing is a must!
Electricity Supply: SP Energy Networks
Water Supply: Scottish Water
Sewerage: Scottish Water
Broadband / Mobile Coverage: Full 4G coverage, limited 3G and 5G.
Brochures
Brochure 1- COUNCIL TAXA payment made to your local authority in order to pay for local services like schools, libraries, and refuse collection. The amount you pay depends on the value of the property.Read more about council Tax in our glossary page.
- Ask agent
- PARKINGDetails of how and where vehicles can be parked, and any associated costs.Read more about parking in our glossary page.
- Yes
- GARDENA property has access to an outdoor space, which could be private or shared.
- Yes
- ACCESSIBILITYHow a property has been adapted to meet the needs of vulnerable or disabled individuals.Read more about accessibility in our glossary page.
- Ask agent
Energy performance certificate - ask agent
12 Ravelston House Road, Edinburgh, EH4 3LW
Add an important place to see how long it'd take to get there from our property listings.
__mins driving to your place
Get an instant, personalised result:
- Show sellers you’re serious
- Secure viewings faster with agents
- No impact on your credit score



Your mortgage
Notes
Staying secure when looking for property
Ensure you're up to date with our latest advice on how to avoid fraud or scams when looking for property online.
Visit our security centre to find out moreDisclaimer - Property reference MFL2247778. The information displayed about this property comprises a property advertisement. Rightmove.co.uk makes no warranty as to the accuracy or completeness of the advertisement or any linked or associated information, and Rightmove has no control over the content. This property advertisement does not constitute property particulars. The information is provided and maintained by McEwan Fraser Legal, Edinburgh. Please contact the selling agent or developer directly to obtain any information which may be available under the terms of The Energy Performance of Buildings (Certificates and Inspections) (England and Wales) Regulations 2007 or the Home Report if in relation to a residential property in Scotland.
*This is the average speed from the provider with the fastest broadband package available at this postcode. The average speed displayed is based on the download speeds of at least 50% of customers at peak time (8pm to 10pm). Fibre/cable services at the postcode are subject to availability and may differ between properties within a postcode. Speeds can be affected by a range of technical and environmental factors. The speed at the property may be lower than that listed above. You can check the estimated speed and confirm availability to a property prior to purchasing on the broadband provider's website. Providers may increase charges. The information is provided and maintained by Decision Technologies Limited. **This is indicative only and based on a 2-person household with multiple devices and simultaneous usage. Broadband performance is affected by multiple factors including number of occupants and devices, simultaneous usage, router range etc. For more information speak to your broadband provider.
Map data ©OpenStreetMap contributors.





