
Powder Mill Road, Warrington

- PROPERTY TYPE
Terraced
- BEDROOMS
3
- BATHROOMS
3
- SIZE
1,011 sq ft
94 sq m
Key features
- Three Bedrooms
- No Onward Chain
- Desirable Location
- Spacious Living
- Driveway Parking
- Garage
- First Time Buyers
- Family Home
- Light And Airy
- Close To Local Amenities
Description
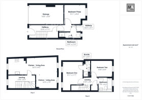
Interior - As you step into the home, you're welcomed by a spacious hallway that seamlessly connects to every room within the property. On the ground floor, you'll find a well-appointed bathroom conveniently located opposite the third bedroom—an adaptable space perfect for guests, a home office, or a cosy retreat. This level also includes a garage, ideal for secure storage or additional utility space.
Heading upstairs to the first floor, you're greeted by a generously sized living area, filled with natural light and designed for comfort and relaxation. The adjoining kitchen offers a warm and inviting setting to prepare meals, complemented by an open-plan layout that flows effortlessly into the dining and lounge areas—perfect for entertaining or unwinding after a long day.
The second and final floor hosts two further spacious bedrooms. The primary bedroom features its own private ensuite, while a separate family bathroom adds convenience for household members and guests alike.
Garden - At the rear of the property lies a generously sized garden, perfect for soaking up the sunshine on warm summer days or entertaining guests with memorable family gatherings.
The home also benefits from driveway parking, offering both convenience and added peace of mind for residents and visitors alike.
Services - • Gas Central Heating
• Mains connected: Gas, Electric, Water
• Drainage: Mains
• Broadband Availability: Up to 900Mb (Via Sky)
Edgewater Park is located in the leafy outskirts of Warrington. Located just a short walk away from the great amenities Latchford village has to offer, including a supermarket, post office and plenty of independent boutiques. The Trans Pennine Trail is also close by; perfect for walks and cycling. Stockton Heath and Warrington Town Centre are both just a short drive away, meaning residents are spoilt for choice when it comes to shopping and dining out. There is a range of great schools close by and residents benefit from being in close proximity to the M6 and M56 motorways.
Brochures
Powder Mill Road, Warrington- COUNCIL TAXA payment made to your local authority in order to pay for local services like schools, libraries, and refuse collection. The amount you pay depends on the value of the property.Read more about council Tax in our glossary page.
- Band: C
- PARKINGDetails of how and where vehicles can be parked, and any associated costs.Read more about parking in our glossary page.
- Off street
- GARDENA property has access to an outdoor space, which could be private or shared.
- Yes
- ACCESSIBILITYHow a property has been adapted to meet the needs of vulnerable or disabled individuals.Read more about accessibility in our glossary page.
- Ask agent
Powder Mill Road, Warrington
Add an important place to see how long it'd take to get there from our property listings.
__mins driving to your place
Get an instant, personalised result:
- Show sellers you’re serious
- Secure viewings faster with agents
- No impact on your credit score
Your mortgage
Notes
Staying secure when looking for property
Ensure you're up to date with our latest advice on how to avoid fraud or scams when looking for property online.
Visit our security centre to find out moreDisclaimer - Property reference 34258852. The information displayed about this property comprises a property advertisement. Rightmove.co.uk makes no warranty as to the accuracy or completeness of the advertisement or any linked or associated information, and Rightmove has no control over the content. This property advertisement does not constitute property particulars. The information is provided and maintained by Mark Antony Estates, Warrington. Please contact the selling agent or developer directly to obtain any information which may be available under the terms of The Energy Performance of Buildings (Certificates and Inspections) (England and Wales) Regulations 2007 or the Home Report if in relation to a residential property in Scotland.
*This is the average speed from the provider with the fastest broadband package available at this postcode. The average speed displayed is based on the download speeds of at least 50% of customers at peak time (8pm to 10pm). Fibre/cable services at the postcode are subject to availability and may differ between properties within a postcode. Speeds can be affected by a range of technical and environmental factors. The speed at the property may be lower than that listed above. You can check the estimated speed and confirm availability to a property prior to purchasing on the broadband provider's website. Providers may increase charges. The information is provided and maintained by Decision Technologies Limited. **This is indicative only and based on a 2-person household with multiple devices and simultaneous usage. Broadband performance is affected by multiple factors including number of occupants and devices, simultaneous usage, router range etc. For more information speak to your broadband provider.
Map data ©OpenStreetMap contributors.





