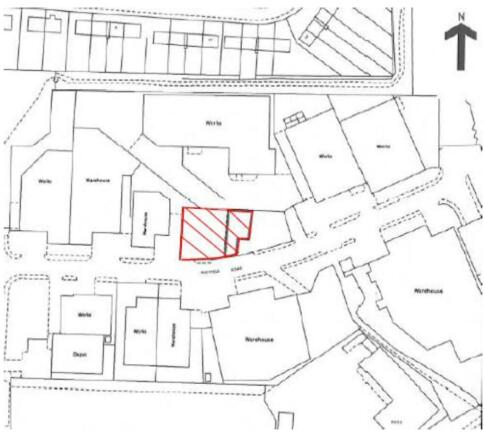
Highfield Road, Little Hulton, Manchester, M38 9ST
- SIZE AVAILABLE
7,841 sq ft
728 sq m
- SECTOR
Storage facility to lease
Lease details
- Lease available date:
- Now
- Lease type:
- Long term
Key features
- Secure plot
- Suitable for a variety of uses
- Approx. 1 mile to Junction 4 M61
Description
The property comprises a secure open storage / yard plot which is fully fenced and gated. The plot is ideal for:
• Open storage
• Trailer parking
• Vehicle parking
• Container storage
• Caravan storage
• Yard area
Location
The site is situated on Highfield Road Industrial Estate and is accessed via Manchester Road West (A6) which provides direct access to Junction 4 of the M61 which is approximately 1 mile to the north west of the property.
Terms
The site is available by way of a new full repairing and insuring lease on terms to be agreed.
Anti-Money Laundering
In accordance with AML Regulations, we are obliged to verify the identity and the source of funds for the potential tenant / purchaser, once a let / sale has been agreed and prior to instructing solicitors.
Accommodation
The site is approximately 0.18 acres (0.07 hectares).
Rental
Available upon application.
VAT
All rents and prices quoted are exclusive of VAT but may be liable for VAT at the prevailing rate.
Brochures
Highfield Road, Little Hulton, Manchester, M38 9ST
NEAREST STATIONS
Distances are straight line measurements from the centre of the postcode- Walkden Station1.7 miles
- Moses Gate Station1.8 miles
- Farnworth Station1.9 miles
Notes
Disclaimer - Property reference 180493-2. The information displayed about this property comprises a property advertisement. Rightmove.co.uk makes no warranty as to the accuracy or completeness of the advertisement or any linked or associated information, and Rightmove has no control over the content. This property advertisement does not constitute property particulars. The information is provided and maintained by Sixteen Real Estate, Manchester. Please contact the selling agent or developer directly to obtain any information which may be available under the terms of The Energy Performance of Buildings (Certificates and Inspections) (England and Wales) Regulations 2007 or the Home Report if in relation to a residential property in Scotland.
Map data ©OpenStreetMap contributors.




