Orchid Grove, Shirebrook, Mansfield, NG20 8FX

- PROPERTY TYPE
Detached
- BEDROOMS
3
- BATHROOMS
2
- SIZE
Ask agent
- TENUREDescribes how you own a property. There are different types of tenure - freehold, leasehold, and commonhold.Read more about tenure in our glossary page.
Freehold
Key features
- QUOTE REF LR0775 // Guide Price - £200,000 - £210,000 // Modern Three Bedroom Detached Family Home
- Easy Access To The M1 Motorway Via The A617
- Situated On A Quiet Cul-De-Sac In Popular Shirebrook Location
- Spacious Lounge With Bay Window And Countryside Views
- Contemporary Kitchen Diner With French Doors To The Garden
- Master Bedroom With En-Suite Shower Room
- Modern Family Bathroom And Ground Floor W.C.
- Private Driveway Providing Off-Road Parking
- Beautifully Presented Throughout And Ready To Move Into
- Peaceful Semi-Rural Setting With Walking Routes Nearby
Description
QUOTE REF LR0775 - Guide Price - £200,000 - £210,000
Nestled within a peaceful cul-de-sac on Orchid Grove in the popular town of Shirebrook, this beautifully presented three-bedroom detached home offers a perfect blend of modern comfort, stylish interiors, and a semi-rural setting with open countryside views. The property is ideal for families, professionals, or first-time buyers seeking a move-in ready home in a well-connected yet tranquil location.
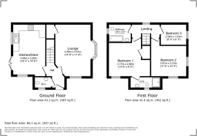
The ground floor features a welcoming entrance hall leading to a bright and spacious lounge, where a large bay window fills the room with natural light and frames views of the greenery beyond. To the rear of the home, the contemporary kitchen and dining area create a sociable space for everyday living. Fitted with sleek modern cabinetry and integrated appliances, it also benefits from French doors opening onto the private rear garden, perfect for entertaining or relaxing outdoors. A convenient ground-floor W.C. completes the downstairs accommodation.
Upstairs, the home offers three well-proportioned bedrooms, including a generous master bedroom with its own en-suite shower room. The remaining two bedrooms are served by a modern family bathroom finished in a fresh, neutral style. Each room has been thoughtfully designed to make the most of space and light, providing a calm and inviting atmosphere throughout.
Outside, the property enjoys a private driveway, a neatly enclosed rear garden with a lawn and patio area, and a scenic outlook towards open fields. The position on a corner plot enhances the sense of privacy and space, making it ideal for young families or those who enjoy outdoor living.
Orchid Grove sits on the edge of Shirebrook, a friendly and well-established community offering a range of local amenities including shops, schools, and leisure facilities. Shirebrook Academy is close by, along with lovely walking routes and green spaces. The location provides excellent transport links, with the M1 motorway (J29) easily accessible via the A617, connecting to Chesterfield, Mansfield, and Nottingham. Shirebrook train station also offers direct services to Worksop and Nottingham, making commuting straightforward.
This modern detached home combines contemporary design with countryside charm, offering a wonderful opportunity to enjoy relaxed living in a sought-after area.
- COUNCIL TAXA payment made to your local authority in order to pay for local services like schools, libraries, and refuse collection. The amount you pay depends on the value of the property.Read more about council Tax in our glossary page.
- Band: C
- PARKINGDetails of how and where vehicles can be parked, and any associated costs.Read more about parking in our glossary page.
- Driveway
- GARDENA property has access to an outdoor space, which could be private or shared.
- Yes
- ACCESSIBILITYHow a property has been adapted to meet the needs of vulnerable or disabled individuals.Read more about accessibility in our glossary page.
- Ask agent
Orchid Grove, Shirebrook, Mansfield, NG20 8FX
Add an important place to see how long it'd take to get there from our property listings.
__mins driving to your place
Get an instant, personalised result:
- Show sellers you’re serious
- Secure viewings faster with agents
- No impact on your credit score
Your mortgage
Notes
Staying secure when looking for property
Ensure you're up to date with our latest advice on how to avoid fraud or scams when looking for property online.
Visit our security centre to find out moreDisclaimer - Property reference S1481933. The information displayed about this property comprises a property advertisement. Rightmove.co.uk makes no warranty as to the accuracy or completeness of the advertisement or any linked or associated information, and Rightmove has no control over the content. This property advertisement does not constitute property particulars. The information is provided and maintained by eXp UK, East Midlands. Please contact the selling agent or developer directly to obtain any information which may be available under the terms of The Energy Performance of Buildings (Certificates and Inspections) (England and Wales) Regulations 2007 or the Home Report if in relation to a residential property in Scotland.
*This is the average speed from the provider with the fastest broadband package available at this postcode. The average speed displayed is based on the download speeds of at least 50% of customers at peak time (8pm to 10pm). Fibre/cable services at the postcode are subject to availability and may differ between properties within a postcode. Speeds can be affected by a range of technical and environmental factors. The speed at the property may be lower than that listed above. You can check the estimated speed and confirm availability to a property prior to purchasing on the broadband provider's website. Providers may increase charges. The information is provided and maintained by Decision Technologies Limited. **This is indicative only and based on a 2-person household with multiple devices and simultaneous usage. Broadband performance is affected by multiple factors including number of occupants and devices, simultaneous usage, router range etc. For more information speak to your broadband provider.
Map data ©OpenStreetMap contributors.




