3 bedroom terraced house for sale
Nettle Grove, Lindfield, RH16 2DZ

- PROPERTY TYPE
Terraced
- BEDROOMS
3
- BATHROOMS
1
- SIZE
Ask agent
- TENUREDescribes how you own a property. There are different types of tenure - freehold, leasehold, and commonhold.Read more about tenure in our glossary page.
Freehold
Key features
- Quiet Residential Position
- No Through Road
- Three Bedrooms
- Decked Entertaining Space And Lawn
- Garage
- Workshop
- Sought After Heathwood Park Development
- REF MG1259
Description
REF MG1259.
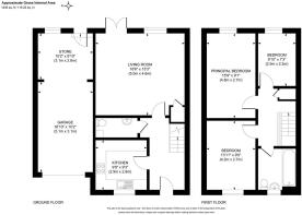
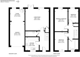
Offers Over £450,000. There are many reasons why we have fallen in love with this home in Nettle Grove and we're certain that buyers will too; whether it be the fact that it is modern and ready to move into or the quiet no through road that it sits upon. To the front is the kitchen where you'll find plenty of work surface prep space and integrated appliances which include a hob and oven, fridge freezer and space for a dishwasher and washing machine. We love the fact that the sitting room is to the rear and overlooks the garden and spanning across the whole width of the house, not only does it have enough space for your furniture it has patio doors that flow out onto the rear garden. The ground floor accommodation is completed by a large cloakroom.
On the first floor, the accommodation and layout is just as impressive. Bedrooms one and three are located to the rear and overlook the garden. Bedroom two is a double bedroom and along with the family bathroom are located to the front. Outside, the garden is made up of a decked section which is perfect for a table and chairs, as well as a lawned area. The garage has lighting and power, with the additional benefit of a store area immediately behind, making it the perfect spot for outdoor equipment, as well as garden tools.
The property tenure is freehold and the council tax band is D.
Yearly Service Charge: Approx £239 ½ year.
Service Charge Review Date: Yearly.
The Local Area? Nettle Grove is a quiet no through road forming part of the impressive Heathwood Park Development by Barratt Homes and David Wilson. Access into the village is provided by Gravelye Lane. Turn left on Gravelyle Lane and then left again into Lyoth Lane and you can find one of our favourite pubs, The Snowdrop which is a firm favourite with many in Mid-Sussex. Elsewhere in the village there are some great places to eat; we also really like The Bent Arms, Tamasha Curry House or the newly opened Le Flamant. There’s a great choice of pubs – the recently renovated Witch Inn, The Stand Up or The Red Lion. Lindfield Coffee Works, tucked away on Alma Road off the High Street is a big hit and our go to place for coffee. Lindfield Common is a great spot to watch the world go by; cricket at the weekends in the summer or football in the winter. It is also the home of the bowls club. And on a Thursday evening at the top of the common, you can't beat the pizza van!
For schools, both highly regarded Blackthorns Primary and Lindfield Primary are within the village, whilst towards Beech Hill in Haywards Heath is Northlands Wood Primary Academy. Both Blackthorns and Lindfield are rated as Outstanding by Ofsted and Northlands Wood is rated as Good. There are great places to get out and explore from Lindfield, National Trust facilities are located locally at Wakehurst Place and Nymans Gardens, with Sheffield Park less than 15 minutes by road. A short drive takes you to Haywards Heath mainline station where trains to London Bridge and London Victoria are from 47 minutes. Brighton to the south, can be reached in 20 minutes. Brighton can be found 15 miles to the south, whilst a short drive north takes you to Crawley, London Gatwick and the A/M23.
- COUNCIL TAXA payment made to your local authority in order to pay for local services like schools, libraries, and refuse collection. The amount you pay depends on the value of the property.Read more about council Tax in our glossary page.
- Band: D
- PARKINGDetails of how and where vehicles can be parked, and any associated costs.Read more about parking in our glossary page.
- Garage
- GARDENA property has access to an outdoor space, which could be private or shared.
- Private garden
- ACCESSIBILITYHow a property has been adapted to meet the needs of vulnerable or disabled individuals.Read more about accessibility in our glossary page.
- Ask agent
Nettle Grove, Lindfield, RH16 2DZ
Add an important place to see how long it'd take to get there from our property listings.
__mins driving to your place
Get an instant, personalised result:
- Show sellers you’re serious
- Secure viewings faster with agents
- No impact on your credit score
Your mortgage
Notes
Staying secure when looking for property
Ensure you're up to date with our latest advice on how to avoid fraud or scams when looking for property online.
Visit our security centre to find out moreDisclaimer - Property reference S1341728. The information displayed about this property comprises a property advertisement. Rightmove.co.uk makes no warranty as to the accuracy or completeness of the advertisement or any linked or associated information, and Rightmove has no control over the content. This property advertisement does not constitute property particulars. The information is provided and maintained by eXp UK, South East. Please contact the selling agent or developer directly to obtain any information which may be available under the terms of The Energy Performance of Buildings (Certificates and Inspections) (England and Wales) Regulations 2007 or the Home Report if in relation to a residential property in Scotland.
*This is the average speed from the provider with the fastest broadband package available at this postcode. The average speed displayed is based on the download speeds of at least 50% of customers at peak time (8pm to 10pm). Fibre/cable services at the postcode are subject to availability and may differ between properties within a postcode. Speeds can be affected by a range of technical and environmental factors. The speed at the property may be lower than that listed above. You can check the estimated speed and confirm availability to a property prior to purchasing on the broadband provider's website. Providers may increase charges. The information is provided and maintained by Decision Technologies Limited. **This is indicative only and based on a 2-person household with multiple devices and simultaneous usage. Broadband performance is affected by multiple factors including number of occupants and devices, simultaneous usage, router range etc. For more information speak to your broadband provider.
Map data ©OpenStreetMap contributors.




