3 bedroom semi-detached house for sale
Shanklin Avenue, South Knighton, Leicester

- PROPERTY TYPE
Semi-Detached
- BEDROOMS
3
- BATHROOMS
1
- SIZE
1,141 sq ft
106 sq m
- TENUREDescribes how you own a property. There are different types of tenure - freehold, leasehold, and commonhold.Read more about tenure in our glossary page.
Freehold
Key features
- Gas Central Heating, Part Secondary Double Glazing
- Entrance Porch, Entrance Hall
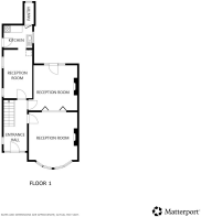
- Three Reception Rooms
- Kitchen
- First Floor with Three Double Bedrooms
- Bathroom
- Front Garden, Established Good Size Rear Garden
Description
A traditional bay-fronted semi-detached property, ideally positioned within a cul-de-sac and offering easy access to Knighton Park.
The home occupies a generous plot with an established, larger-than-average rear garden, providing excellent potential for extension to the rear (subject to the necessary planning permissions).
Available with no upward chain, the accommodation includes an entrance porch leading to a welcoming entrance hall, three reception rooms, and a kitchen. To the first floor are three double bedrooms and a family bathroom.
This delightful property presents an ideal opportunity for families seeking a home with scope to enhance and personalise, set within a highly regarded residential location.
The property is well located for everyday amenities and services, including local public and private schooling including Overdale Infant and Junior Schools and nursery day-care, Leicester City Centre and the University of Leicester, Leicester Royal Infirmary and Leicester General Hospital. The property is located close to Knighton Park and Queens Road shopping parade in neighbouring Clarendon Park with its specialist shops, bars, boutiques and restaurants.
EPC Rating: D
Entrance Porch
With internal door to entrance hall.
Entrance Hall
With secondary double glazed part leaded window to the side elevation, original part leaded stain glazed door to the front elevation, stairs to first floor with under stairs storage cupboard, laminate floor, radiator.
Reception Room One
4.4m x 4.13m
With double glazed bay window to the front elevation, electric fire, radiator, fold open doors leading to reception room two.
Reception Room Two
4.12m x 3.83m
Measurement narrowing to 3.67 m. With door and windows to the rear elevation, gas fire, laminate floor, TV point, radiator.
Reception Room Three
4m x 2.41m
With two secondary double glazed windows to the side elevation, original storage cupboard, plumbing for washing machine, plumbing for dishwasher, storage cupboards, radiator.
Kitchen
2.42m x 1.81m
With door to the side elevation, secondary double glazed window to the side elevation, stainless steel sink and drainer unit with base units and work surface over, built-in shelving, electric cooker point, tiled floor, radiator, pantry with built-in shelving and window to the rear elevation.
First Floor Landing
With secondary double glazed window to the side elevation.
Bedroom One
4.68m x 3.64m
With bay window to the front elevation, original style fireplace, built-in wardrobe, radiator.
Bedroom Two
4.15m x 3.85m
With secondary double glazed window to the rear elevation, radiator.
Bedroom Three
2.8m x 2.5m
With secondary double glazed window to the front elevation, radiator.
Bathroom
2.46m x 1.92m
With double glazed window to the rear elevation, bath with electric shower over, pedestal wash hand basin, low-level WC, loft access, cupboard housing boiler, radiator.
Front Garden
An established front garden with mature flowerbeds, shrubs and trees, lawn, driveway providing off road parking, gate to side access.
Rear Garden
With paved patio areas to the rear and side, lawn, flowerbeds, shrubs and trees, wooden storage shed, further lawn to the rear with mature Silver Birch tree and fruit trees, outside store, outside WC.
Parking - Driveway
Please note that parking is subject to vehicle size. Prospective purchasers should ensure the dimensions are suitable for their vehicle before relying on it for parking purposes.
Disclaimer
Measurements are taken electronically and are for guidance only — not to be relied upon as exact. Services, appliances, and fittings have not been tested. Buyers must satisfy themselves through inspection. Floor plans are not to scale and are for layout guidance only. Knightsbridge Estate Agents make no warranties regarding the property. By law, we must carry out anti-money laundering checks for buyers and sellers. These are handled on our behalf by Lifetime Legal, who will contact you once you instruct us to sell or have an offer accepted. A £60 fee (incl. VAT) covers required data and any manual checks. This must be paid before we can publish your property (for vendors) or issue a memorandum of sale (for buyers). The fee is non-refundable and paid directly to Lifetime Legal. We receive a portion of this fee for facilitating the checks.
Brochures
Key Facts for Buyers- COUNCIL TAXA payment made to your local authority in order to pay for local services like schools, libraries, and refuse collection. The amount you pay depends on the value of the property.Read more about council Tax in our glossary page.
- Band: D
- PARKINGDetails of how and where vehicles can be parked, and any associated costs.Read more about parking in our glossary page.
- Driveway
- GARDENA property has access to an outdoor space, which could be private or shared.
- Front garden,Rear garden
- ACCESSIBILITYHow a property has been adapted to meet the needs of vulnerable or disabled individuals.Read more about accessibility in our glossary page.
- Ask agent
Shanklin Avenue, South Knighton, Leicester
Add an important place to see how long it'd take to get there from our property listings.
__mins driving to your place
Get an instant, personalised result:
- Show sellers you’re serious
- Secure viewings faster with agents
- No impact on your credit score



Your mortgage
Notes
Staying secure when looking for property
Ensure you're up to date with our latest advice on how to avoid fraud or scams when looking for property online.
Visit our security centre to find out moreDisclaimer - Property reference 2ad1fbfa-fb0d-41de-a58c-dc608b899d90. The information displayed about this property comprises a property advertisement. Rightmove.co.uk makes no warranty as to the accuracy or completeness of the advertisement or any linked or associated information, and Rightmove has no control over the content. This property advertisement does not constitute property particulars. The information is provided and maintained by Knightsbridge Estate Agents & Valuers, Leicester. Please contact the selling agent or developer directly to obtain any information which may be available under the terms of The Energy Performance of Buildings (Certificates and Inspections) (England and Wales) Regulations 2007 or the Home Report if in relation to a residential property in Scotland.
*This is the average speed from the provider with the fastest broadband package available at this postcode. The average speed displayed is based on the download speeds of at least 50% of customers at peak time (8pm to 10pm). Fibre/cable services at the postcode are subject to availability and may differ between properties within a postcode. Speeds can be affected by a range of technical and environmental factors. The speed at the property may be lower than that listed above. You can check the estimated speed and confirm availability to a property prior to purchasing on the broadband provider's website. Providers may increase charges. The information is provided and maintained by Decision Technologies Limited. **This is indicative only and based on a 2-person household with multiple devices and simultaneous usage. Broadband performance is affected by multiple factors including number of occupants and devices, simultaneous usage, router range etc. For more information speak to your broadband provider.
Map data ©OpenStreetMap contributors.





