Quaker Lane, Northallerton, DL6

Letting details
- Let available date:
- Now
- Deposit:
- £950A deposit provides security for a landlord against damage, or unpaid rent by a tenant.Read more about deposit in our glossary page.
- Min. Tenancy:
- 6 months How long the landlord offers to let the property for.Read more about tenancy length in our glossary page.
- Let type:
- Long term
- Furnish type:
- Unfurnished
- Council Tax:
- Ask agent
- PROPERTY TYPE
Terraced
- BEDROOMS
3
- BATHROOMS
2
- SIZE
Ask agent
Key features
- Close to Northallerton High Street
- Off Street PArking
- Three double bedrooms
- Ensuite Shower room
Description
Upstairs, there are three double bedrooms, including a main bedroom with an ensuite shower room.
Outside, the low-maintenance garden features artificial grass, ideal for relaxing or entertaining. The property also benefits from off-street parking for one vehicle.
A great opportunity to own a modern, well-located home within easy reach of the town centre and local amenities.
EPC Rating: C
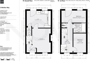
Hall
With Stairs to the first floor and access to ground floor rooms
Living Room
To the front of the property with wood effect flooring and a window to the front elevation.
Kitchen
With cream base and wall units the kitchen has space for a dining table and double doors to the garden.
Bedroom Two
To the first floor the second bedroom is a good size double with french doors and Juliette balcony to the rear.
Bedroom Three
To the front of the property, this double size bedroom over looks the street.
House Bathroom
White three piece bathroom suite with shower over the bath.
Primary Suite
To the top floor the main bedroom has fitted storage, a velux window and ensuite shower room.
Garden
To the rear a private garden is covered with artificial grass.
- COUNCIL TAXA payment made to your local authority in order to pay for local services like schools, libraries, and refuse collection. The amount you pay depends on the value of the property.Read more about council Tax in our glossary page.
- Band: C
- PARKINGDetails of how and where vehicles can be parked, and any associated costs.Read more about parking in our glossary page.
- Yes
- GARDENA property has access to an outdoor space, which could be private or shared.
- Private garden
- ACCESSIBILITYHow a property has been adapted to meet the needs of vulnerable or disabled individuals.Read more about accessibility in our glossary page.
- Ask agent
Energy performance certificate - ask agent
Quaker Lane, Northallerton, DL6
Add an important place to see how long it'd take to get there from our property listings.
__mins driving to your place
Notes
Staying secure when looking for property
Ensure you're up to date with our latest advice on how to avoid fraud or scams when looking for property online.
Visit our security centre to find out moreDisclaimer - Property reference 1472c0b1-55ac-4ab5-b108-9427e524c4ce. The information displayed about this property comprises a property advertisement. Rightmove.co.uk makes no warranty as to the accuracy or completeness of the advertisement or any linked or associated information, and Rightmove has no control over the content. This property advertisement does not constitute property particulars. The information is provided and maintained by Nove Property, Thirsk. Please contact the selling agent or developer directly to obtain any information which may be available under the terms of The Energy Performance of Buildings (Certificates and Inspections) (England and Wales) Regulations 2007 or the Home Report if in relation to a residential property in Scotland.
*This is the average speed from the provider with the fastest broadband package available at this postcode. The average speed displayed is based on the download speeds of at least 50% of customers at peak time (8pm to 10pm). Fibre/cable services at the postcode are subject to availability and may differ between properties within a postcode. Speeds can be affected by a range of technical and environmental factors. The speed at the property may be lower than that listed above. You can check the estimated speed and confirm availability to a property prior to purchasing on the broadband provider's website. Providers may increase charges. The information is provided and maintained by Decision Technologies Limited. **This is indicative only and based on a 2-person household with multiple devices and simultaneous usage. Broadband performance is affected by multiple factors including number of occupants and devices, simultaneous usage, router range etc. For more information speak to your broadband provider.
Map data ©OpenStreetMap contributors.





