
Moses Plat Lane, Speen, Princes Risborough, HP27

- PROPERTY TYPE
Detached
- BEDROOMS
3
- BATHROOMS
2
- SIZE
2,272 sq ft
211 sq m
- TENUREDescribes how you own a property. There are different types of tenure - freehold, leasehold, and commonhold.Read more about tenure in our glossary page.
Freehold
Key features
- Extensive equestrian facilities
- Grounds of over 46 acres
- 43m x 30m all-weather manege with mirrors
- Extensive barns and stables
- Excellent hacking
- On the edge of a desirable village
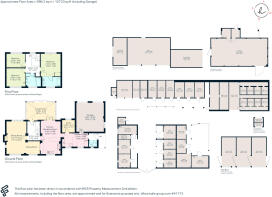
- Three-bedroom house of about 2272 sq ft
- Facilities are well suited to a livery yard or a professional rider for breaking/training or competition.
Description
Outside
The equestrian facilities at Moses Plat Farm are extensive and are well suited to a livery yard or a professional rider for breaking/training or competition. The yard has most recently been run as a livery facility and is ideally situated amongst excellent hacking, including a number of byways, bridleways and country lanes, with a variety of training and competition venues in easy reach including Windmill Farm, Addington Equestrian, Amersham Dressage, Snowball Farm, Wellington Riding and Bury Farm all accessible within an hour. The yard is set on 18 hectares including 46.5 acres of mixed pasture paddocks, woodland, hardstanding yards and a variety of covered barns. Stabling is a mix of looseboxes and American-style internal barns and there are alarmed tack and feed rooms (not alarmed), wash bays, forage barns and covered spaces for tractors, horseboxes and trailers. Exercise facilities include a 43m x 30m surfaced all-weather manège with arena mirrors and a Coachcraft horse walker. There are two secure
entrances to the yard and house and additional parking spaces outside the front gates. The house is enclosed by attractive mature gardens including lawns, a patio terrace and established trees around the border, and there is parking and an attached double garage.
Situation
Situated within the Chiltern Hills, Speen is a coveted and picturesque village in a sought-after location with an active and vibrant community. The property is situated on the northwest edge of the village bordering Monkton Woods on the junction of two byways, joining up with a wider network of bridleways. Village amenities include an established village shop, playing fields, village hall and a chapel. Locally there are a range of excellent schools including a preschool and Church of England primary school in the village and a variety of grammar schools in the wider area. A wider choice of shops and amenities are available in Princes Risborough (4.5 miles
distant), including supermarkets, restaurants and sports facilities, as well as a train service to London Marylebone in approximately 40 minutes. Motorway links are readily accessible with the M40 at Stokenchurch and High Wycombe.
Property Ref Number:
HAM-59489Additional Information
Mains water and electricity. Private drainage via septic tank. Oil-fired central heating. Solar panels (under 25- year lease plan, with 15 years elapsed and 10 years remaining) from November 2010. Capacity of the system is 3.52 kwp.
Brochures
Brochure- COUNCIL TAXA payment made to your local authority in order to pay for local services like schools, libraries, and refuse collection. The amount you pay depends on the value of the property.Read more about council Tax in our glossary page.
- Band: H
- PARKINGDetails of how and where vehicles can be parked, and any associated costs.Read more about parking in our glossary page.
- Off street
- GARDENA property has access to an outdoor space, which could be private or shared.
- Private garden
- ACCESSIBILITYHow a property has been adapted to meet the needs of vulnerable or disabled individuals.Read more about accessibility in our glossary page.
- Ask agent
Moses Plat Lane, Speen, Princes Risborough, HP27
Add an important place to see how long it'd take to get there from our property listings.
__mins driving to your place
Get an instant, personalised result:
- Show sellers you’re serious
- Secure viewings faster with agents
- No impact on your credit score
Your mortgage
Notes
Staying secure when looking for property
Ensure you're up to date with our latest advice on how to avoid fraud or scams when looking for property online.
Visit our security centre to find out moreDisclaimer - Property reference a1nQ500000OHczGIAT. The information displayed about this property comprises a property advertisement. Rightmove.co.uk makes no warranty as to the accuracy or completeness of the advertisement or any linked or associated information, and Rightmove has no control over the content. This property advertisement does not constitute property particulars. The information is provided and maintained by Hamptons, Great Missenden. Please contact the selling agent or developer directly to obtain any information which may be available under the terms of The Energy Performance of Buildings (Certificates and Inspections) (England and Wales) Regulations 2007 or the Home Report if in relation to a residential property in Scotland.
*This is the average speed from the provider with the fastest broadband package available at this postcode. The average speed displayed is based on the download speeds of at least 50% of customers at peak time (8pm to 10pm). Fibre/cable services at the postcode are subject to availability and may differ between properties within a postcode. Speeds can be affected by a range of technical and environmental factors. The speed at the property may be lower than that listed above. You can check the estimated speed and confirm availability to a property prior to purchasing on the broadband provider's website. Providers may increase charges. The information is provided and maintained by Decision Technologies Limited. **This is indicative only and based on a 2-person household with multiple devices and simultaneous usage. Broadband performance is affected by multiple factors including number of occupants and devices, simultaneous usage, router range etc. For more information speak to your broadband provider.
Map data ©OpenStreetMap contributors.








