
High Street, Brentford, TW8 0AA

- PROPERTY TYPE
Apartment
- BEDROOMS
2
- BATHROOMS
2
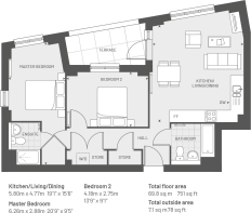
- SIZE
751 sq ft
70 sq m
Key features
- Private north/east facing terrace
- Private residents podium garden
- High-specification finishes with Amtico flooring and sleek, integrated kitchen with Quartz worktops
- Riverside location development
- 33% Saving against other new builds in West London or our incentives
- 13-minute walk to Brentford Station with direct trains to London Waterloo in 30 minutes
- 12-minute bus ride to Boston Manor Station on the Piccadilly Line for easy access to central London
- Peppercorn ground rent and 999-year lease
- Ready to move into now
- Save to buy
Description
This plot is only available on our save to buy scheme contact our sales team for more information
Introducing The Delta - Apartment 90
Discover The Delta at Printmakers Yard, a stylish and functional two-bedroom, apartment offering modern design and practical features in the heart of Brentford Waterside.
Spacious Open-Plan Living: The large, open-plan kitchen, family, and dining area creates a modern, social living environment. This versatile layout maximizes space for cooking, dining, entertaining, or simply enjoying time together, making it ideal for those who value a communal living space.
Generous Outdoor Living: Step out onto a larger terrace penthouse enhances the apartment's living experience. Perfect for entertaining guests, gardening, or creating an outdoor dining area, this space offers a balance between indoor comfort and outdoor tranquillity.
Convenient and Practical Features: The apartment is designed for everyday ease, with several storage spaces strategically placed throughout the home. These areas provide ideal spots for storing seasonal items, sports equipment, or general household necessities, helping maintain an organised and clutter-free environment.
Dedicated Laundry Room: A separate laundry room adds both functionality and convenience, keeping laundry tasks contained and away from the main living areas, ensuring a seamless, tidy lifestyle.
Thoughtful Design for Modern Living: With its combination of open-plan interiors, practical features, and inviting outdoor spaces, The Delta provides a comfortable and stylish home perfect for professionals, small families, or anyone seeking a well-designed living space in a vibrant, waterside community.
*Take advantage of up to £30,000 deposit contribution to secure your dream home*. Apartment 90 offers the perfect blend of functionality, style, and outdoor living.
Discover your new home at Printmakers Yard, where modern design meets riverside charm.
Enquire for a private tour of Plot 90 today!
The Apartments
Printmakers Yard offers a wide variety of homes, from studio apartments to spacious 4-bedroom triplexes, each thoughtfully designed with open-plan layouts and private outdoor spaces. Enjoy the luxury of high-specification finishes, including Amtico flooring, sleek kitchens with integrated appliances, and modern bathrooms. Select apartments provide breathtaking views of Kew Gardens and the River Thames, offering a serene backdrop to your new home.
The Development
Set in the heart of Brentford Waterside, Printmakers Yard is part of an exciting regeneration project that blends modern urban living with riverside charm. This vibrant new community features secure, landscaped gardens for residents, designated parking, and convenient cycle storage. Situated on Brentford High Street, the development offers easy access to local amenities, green spaces, and excellent transport links, making it an ideal place to call home.
Local Area
Experience the best of both worlds at Printmakers Yard. Brentford Waterside is buzzing with independent shops, cafes, and restaurants, alongside well-known brands. Explore the tranquil beauty of nearby Syon Park or take a scenic walk along the canal and River Thames. For a more urban vibe, Chiswick High Road is just a short bus or bike ride away, offering chic boutiques, high-end dining, and vibrant arts venues.
Transport Links
Printmakers Yard ensures you're well-connected:
Brentford Station: 13-minute walk for direct trains to London Waterloo in 30 minutes.
Boston Manor Station: 12-minute bus ride to connect with the Piccadilly Line for Central London access.
Heathrow Terminal 5: Just 22 minutes by car for international travel.
Westfield White City: Just 20 minutes drive from Printmakers Yard.
Ideally located on bus routes E2, E8, and the 65, navigating West London is a breeze.
Whether commuting or exploring the city, your new home at Printmakers Yard offers convenience and accessibility.
Why Buy New?
When you choose a new home at Printmakers Yard, you're investing in a property designed for modern living:
Energy Efficiency: Save on household bills with eco-friendly construction.
Move-In Ready: Enjoy a blank canvas to personalise from day one.
Peace of Mind: Comes with a 10-year NHBC warranty for added security.
Key Information
Location: High Street, Brentford TW8 0AA
Total Apartments: 233
Tenure: 999-Year Leasehold
Warranty: 10-Year NHBC Buildmark Warranty
Completion: Ready to move in now
Pet Friendly development
Predicted EPC rating B
Creating homes and making a difference together
Printmakers Yard is brought to you in partnership by Fairview New Homes and Latimer.
Fairview New Homes have been building quality, stylish homes in and around London since 1961. In that time, they've helped countless first-time buyers achieve their goal of stepping onto the property ladder.
Latimer is part of the country's largest housing association, Clarion Housing Group, who use their scale and reach to drive positive change.
Our partnership isn't just about using our experience to build spacious, affordable, brand-new homes. We're contributing to the regeneration of Brentford, making it an aspirational place for you to live and enjoy a vibrant, new waterside lifestyle.
*External imagery is computer generated and is subject to change. Up to £30,000 deposit contribution incentive available on selected plots only. Terms and conditions apply. Please speak to a Sales Executive for further information. Show Apartment photography is indicative only from previous Fairview New Homes developments. Travel times taken from maps.google.com and TFL.
- COUNCIL TAXA payment made to your local authority in order to pay for local services like schools, libraries, and refuse collection. The amount you pay depends on the value of the property.Read more about council Tax in our glossary page.
- Ask developer
- PARKINGDetails of how and where vehicles can be parked, and any associated costs.Read more about parking in our glossary page.
- Yes
- GARDENA property has access to an outdoor space, which could be private or shared.
- Yes
- ACCESSIBILITYHow a property has been adapted to meet the needs of vulnerable or disabled individuals.Read more about accessibility in our glossary page.
- Ask developer
Energy performance certificate - ask developer
High Street, Brentford, TW8 0AA
Add an important place to see how long it'd take to get there from our property listings.
__mins driving to your place
Get an instant, personalised result:
- Show sellers you’re serious
- Secure viewings faster with agents
- No impact on your credit score
About Fairview New Homes
Fairview New Homes
For almost sixty years, Fairview's high standards and value-for-money have won recognition throughout the new homes sector.
Our developments have received several top awards and Homeviews named us the ‘Developer of choice for First Time buyers’ in 2021
Currently available all over London and the Home Counties, our new homes now offer better value than ever - often being backed with a range of practical and financial benefits. We also offer almost as many types of homes as there are types of homeowner, due to our growth, financial stability, strength and commitment.
Your mortgage
Notes
Staying secure when looking for property
Ensure you're up to date with our latest advice on how to avoid fraud or scams when looking for property online.
Visit our security centre to find out moreDisclaimer - Property reference 087TheDelta241025. The information displayed about this property comprises a property advertisement. Rightmove.co.uk makes no warranty as to the accuracy or completeness of the advertisement or any linked or associated information, and Rightmove has no control over the content. This property advertisement does not constitute property particulars. The information is provided and maintained by Fairview New Homes. Please contact the selling agent or developer directly to obtain any information which may be available under the terms of The Energy Performance of Buildings (Certificates and Inspections) (England and Wales) Regulations 2007 or the Home Report if in relation to a residential property in Scotland.
*This is the average speed from the provider with the fastest broadband package available at this postcode. The average speed displayed is based on the download speeds of at least 50% of customers at peak time (8pm to 10pm). Fibre/cable services at the postcode are subject to availability and may differ between properties within a postcode. Speeds can be affected by a range of technical and environmental factors. The speed at the property may be lower than that listed above. You can check the estimated speed and confirm availability to a property prior to purchasing on the broadband provider's website. Providers may increase charges. The information is provided and maintained by Decision Technologies Limited. **This is indicative only and based on a 2-person household with multiple devices and simultaneous usage. Broadband performance is affected by multiple factors including number of occupants and devices, simultaneous usage, router range etc. For more information speak to your broadband provider.
Map data ©OpenStreetMap contributors.





