The Courtyard, Heath Road, Petersfield, Hampshire, GU31 4DX
- SIZE AVAILABLE
819-1,750 sq ft
76-163 sq m
- SECTOR
High street retail property to lease
Lease details
- Lease available date:
- Ask agent
Key features
- Petersfield is an attractive market town strategically located on the A3
- Situated in a busy area near public transport and carpark
- High-quality new build with contemporary finish
- Open plan accommodation to be finished to shell with services capped
- New FRI lease available (targeting completion of works Spring 2027)
- Rent £19,500 per unit
- Option to purchase at a guide price of £250,000 per unit
- The town offers a wide range of food and beverage including Waitrose, Gails Bakery, Mint Velvet, Crew Clothing, Café Nero and Annie Jones
Description
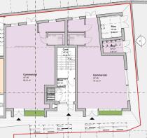
Upon completion, the development will comprise two newly constructed ground floor commercial retail units finished to a shell condition with services capped. Practical completion is anticipated in Spring 2027.
Location
Petersfield is an attractive market town strategically located on the A3 London to Portsmouth trunk road approximately 18 miles to the north of Portsmouth and 25 miles to the south of Guildford. Road communications are excellent and in addition Petersfield benefits from a fast frequent train service to London Waterloo and to Portsmouth and the South Coast.
The property is situated on The Courtyard, opposite the open air swimming pool and Petersfield festival theatre, a short walk into the town centre. The town offers a wide range of retail and food & beverage including Waitrose, Gails Bakery, Mint Velvet, Crew Clothing, Cafe Nero and Annie Jones.
Planning
We understand the premises will benefit from planning consent for a commercial/retail as defined by of the Use Classes Order 1987 (as amended).
VAT
Rents and prices are quoted exclusive of, but may be subject to VAT.
Accommodation
We understand the accommodation will have the following approximate floor areas:
Business Rates / Council Tax Band
To be assessed.
EPC
To be assessed.
Legal Fees
Each party to bear their own legal costs incurred.
Brochures
The Courtyard, Heath Road, Petersfield, Hampshire, GU31 4DX
NEAREST STATIONS
Distances are straight line measurements from the centre of the postcode- Petersfield Station0.4 miles
- Liss Station3.3 miles
Notes
Disclaimer - Property reference 8072LH. The information displayed about this property comprises a property advertisement. Rightmove.co.uk makes no warranty as to the accuracy or completeness of the advertisement or any linked or associated information, and Rightmove has no control over the content. This property advertisement does not constitute property particulars. The information is provided and maintained by Flude Property Consultants, Portsmouth. Please contact the selling agent or developer directly to obtain any information which may be available under the terms of The Energy Performance of Buildings (Certificates and Inspections) (England and Wales) Regulations 2007 or the Home Report if in relation to a residential property in Scotland.
Map data ©OpenStreetMap contributors.






