
Whitehall Road, West Birkenshaw, BD11 2LS

- PROPERTY TYPE
- Semi-Detached 
- BEDROOMS
- 3 
- BATHROOMS
- 2 
- SIZE
- Ask developer 
- TENUREDescribes how you own a property. There are different types of tenure - freehold, leasehold, and commonhold.Read more about tenure in our glossary page.
- Freehold 
Key features
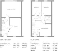
- Spacious 3-bedroom home residence in the charming village of Birkenshaw
- Attractive exterior with PVCu sash windows and stylish entrance door, Contemporary, bright entrance hallway leading to upstairs and living spaces
- Generous spacious kitchen-diner at the front with a range of base and wall units, Fitted with luxury Bosch appliances including oven, gas hob, and extractor hood
- Personalise your kitchen with choices of worktop materials, stylish handles, and vinyl flooring*
- Large, airy lounge at the rear with tri-slide doors opening onto a fully turfed and fenced garden
- Master bedroom with ensuite shower room, finished with choice of wall tiles and white heated towel rail
- Two additional bedrooms sharing a sleek three-piece family bathroom
- Modern conveniences including USB sockets and an electric car charging point
- Comes with a comprehensive 10-year structural warranty for peace of mind
- A perfect family home combining bespoke style with practical living in a picturesque village
Description
From the moment you arrive, the home makes a striking first impression with its characterful PVCu sash windows and stylish front door. Step into a bright, contemporary hallway that leads to a thoughtfully laid-out ground floor, complete with a convenient downstairs WC.
To the front of the property, a generous kitchen-diner is fitted with a range of high-quality base and wall units, as well as premium Bosch appliances including an oven, gas hob, and extractor hood. Buyers have the opportunity to personalise their space with a choice of worktop finishes, handles, and vinyl flooring to reflect their style.*
The rear of the home opens into a spacious lounge, filled with natural light thanks to striking tri-slide patio doors that extend the living area out to the fully turfed and fenced garden - ideal for entertaining or family time outdoors.
Upstairs, the master bedroom offers a peaceful retreat with a private en-suite shower room, complete with chrome heated towel rail and a choice of wall tiles. Two additional bedrooms share a modern three-piece family bathroom, also customisable to suit your taste.
The Bamburgh is packed with modern touches including USB sockets, a built-in electric car charging point, and gas central heating. A 10-year structural warranty gives you peace of mind, making this the ideal move-in-ready home.
Located in Birkenshaw with easy access to local amenities and transport links, this home offers the best of living with everyday convenience.
- COUNCIL TAXA payment made to your local authority in order to pay for local services like schools, libraries, and refuse collection. The amount you pay depends on the value of the property.Read more about council Tax in our glossary page.
- Ask developer
- PARKINGDetails of how and where vehicles can be parked, and any associated costs.Read more about parking in our glossary page.
- Off street,EV charging,Private
- GARDENA property has access to an outdoor space, which could be private or shared.
- Private garden,Enclosed garden,Rear garden,Back garden
- ACCESSIBILITYHow a property has been adapted to meet the needs of vulnerable or disabled individuals.Read more about accessibility in our glossary page.
- Level access
Energy performance certificate - ask developer
Whitehall Road, West Birkenshaw, BD11 2LS
Add an important place to see how long it'd take to get there from our property listings.
__mins driving to your place
Get an instant, personalised result:
- Show sellers you’re serious
- Secure viewings faster with agents
- No impact on your credit score
About Orion Homes
Across four decades in construction, Orion Homes has grown from modest beginnings to become one of Yorkshire’s largest privately owned house-builders. Orion Developments Ltd was founded by current Chairman Tim Lumb in 1978 and a year later began trading as Orion Homes. Our first site was a scheme of 11 detached houses in Kippax priced from £18,995.
“Four decades of quality house-building in Yorkshire”
During the company’s infancy in the late 70s and early 80s our operation was a world away from what it is today. It could be described as somewhat streamlined – back then, the Site Manager’s office would be tidied up every Friday evening to double up as a sales office on weekends! However, some things remain as true today as they were in 1979: our commitment to quality and service which served our first customers at Kippax and remains at the heart of our success in 2018. No matter how much the market changes, those values will always be a vital ingredient for a house-builder that believes success is not defined by sales volume alone. For us, everything stems from a strong belief in the high standard of our product.
Orion Homes’ marketing operation has come a long way since those early days of sharing an office with the Site Manager. Each development now has a purpose-built Sales Information Centre providing a warm welcome to each visitor with a team of dedicated Sales Negotiators on hand to talk customers through every detail of our homes and provide guidance on how to purchase one.
Your mortgage
Notes
Staying secure when looking for property
Ensure you're up to date with our latest advice on how to avoid fraud or scams when looking for property online.
Visit our security centre to find out moreDisclaimer - Property reference plot172410. The information displayed about this property comprises a property advertisement. Rightmove.co.uk makes no warranty as to the accuracy or completeness of the advertisement or any linked or associated information, and Rightmove has no control over the content. This property advertisement does not constitute property particulars. The information is provided and maintained by Orion Homes. Please contact the selling agent or developer directly to obtain any information which may be available under the terms of The Energy Performance of Buildings (Certificates and Inspections) (England and Wales) Regulations 2007 or the Home Report if in relation to a residential property in Scotland.
*This is the average speed from the provider with the fastest broadband package available at this postcode. The average speed displayed is based on the download speeds of at least 50% of customers at peak time (8pm to 10pm). Fibre/cable services at the postcode are subject to availability and may differ between properties within a postcode. Speeds can be affected by a range of technical and environmental factors. The speed at the property may be lower than that listed above. You can check the estimated speed and confirm availability to a property prior to purchasing on the broadband provider's website. Providers may increase charges. The information is provided and maintained by Decision Technologies Limited. **This is indicative only and based on a 2-person household with multiple devices and simultaneous usage. Broadband performance is affected by multiple factors including number of occupants and devices, simultaneous usage, router range etc. For more information speak to your broadband provider.
Map data ©OpenStreetMap contributors.





