
Thirlmere Avenue, Workington, CA14

- PROPERTY TYPE
Semi-Detached
- BEDROOMS
3
- BATHROOMS
2
- SIZE
Ask agent
- TENUREDescribes how you own a property. There are different types of tenure - freehold, leasehold, and commonhold.Read more about tenure in our glossary page.
Freehold
Key features
- Beautiful extended family home in a sough after residential area
- Lovely lounge light and spacious dual aspect lounge
- Stunning open plan lounge dinner with integrated appliances and a bay window to the dining area.
- Stylish sun room extension with Bi-fold doors to the rear garden
- Three well presented bedrooms with the master benefitting from an ensuite WC
- Luxurious bathroom with four piece suite including free standing bath
- boasting driveway and garage with utility area to the rear
- Lovely front garden and low maintenance rear garden with patio and artificil lawn
- A sought after area within walking distance of the town centre and local schools
- An ideal purchase for first time buyers, couples and families alike
Description
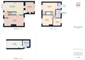
Upon entering, the hall leads to a light and spacious dual-aspect lounge, inviting relaxation and gatherings with loved ones. The heart of the home lies in the beautiful open-plan kitchen diner, where integrated appliances stand ready to assist in culinary creations, complemented by a breakfast bar and bay window that bathes the dining area in natural light.
Adding to the allure of this stunning home is the stylish sunroom extension, a delightful space that seamlessly merges indoor and outdoor living with bi-fold doors opening to the rear garden, creating a perfect spot for morning coffees or evening unwinding, with a media wall incorporating a modern fire.
Ascending the stairs reveals three well-presented bedrooms, each offering a retreat from the day's demands. The master bedroom boasts the added convenience of an ensuite WC,. The luxurious family bathroom beckons with its four-piece suite, featuring a freestanding bath, offering a sanctuary for relaxation after a long day.
Making every-day living a breeze, this property boasts a driveway and garage with a convenient utility area to the rear, ensuring ample space for storage and practical needs. The front garden exudes kerb appeal, while the low-maintenance rear garden beckons for outdoor enjoyment, complete with a patio and artificial lawn, perfect for alfresco dining or peaceful moments in the sun.
Situated in a sought-after location, this home offers not only comfort and style but also the convenience of being within walking distance of the town centre and local schools, catering to families with children and professionals alike. This property is an ideal purchase for first-time buyers seeking to embark on the journey of homeownership, couples yearning for a space to call their own, or families envisioning a place to grow and create lasting memories.
To truly appreciate the beauty and warmth that this property exudes, we invite you to arrange a viewing and step into the story that this home eagerly awaits to tell.
EPC Rating: C
SELLING WITH FIRST CHOICE MOVE
First Choice Move began in 2010 from humble beginnings—from a kitchen table in Egremont. Built on family values, hard work, and a passion for property, we have grown to become the largest estate agency in West Cumbria.
As a family-run business, we believe in combining traditional estate agency values with the very latest marketing techniques to ensure every property gets maximum exposure. From high-quality photography, 3D tours, drone photography, videos and professional floorplans to online advertising and social media campaigns, we use a tailored approach to attract the right buyers. Our commitment to excellence has earned us multiple national, industry-recognised awards, a testament to our dedication to delivering outstanding service and results.
We are more than just an estate agency—we’re a trusted partner for buyers and sellers across West Cumbria, combining innovation with personal service to help you move with confidence.
MORTGAGES
Need help finding the right mortgage for your needs? First Choice Move Mortgage Services are part of the Mortgage Advice Bureau network, one of the UK's largest award-winning mortgage brokers. We can search from a selection of over 90 different lenders with over 12,000 different mortgages, including exclusive deals only available through us, to find the right deal for you. Our advice will be specifically tailored to your needs and circumstances, which could be for a first-time buyer, home-mover, or for remortgaging or investing in property.
Contact us on to arrange a free consultation with one of our experienced and dedicated in house mortgage and protection advisers.
You may have to pay an early repayment charge to your existing lender if you re-mortgage
There may be a fee for mortgage advice. The actual amount you pay will depend upon your circumstances. The fee is up to 1% but a typical fee is 0.3% of the amount borrowed.
NOTE
Please note that all measurements have been taken using a laser tape measure which may be subject to a small margin of error. Some photos may have been taken with a wide-angle camera lens. First Choice Move has not tested any apparatus, equipment, fixtures and fittings or services and so cannot verify that they are in working order or fit for the purpose. A buyer is advised to obtain verification from their solicitor or surveyor. References to the tenure of a property are based on information supplied by the Seller. The Agent has not had sight of the title documents.
- COUNCIL TAXA payment made to your local authority in order to pay for local services like schools, libraries, and refuse collection. The amount you pay depends on the value of the property.Read more about council Tax in our glossary page.
- Band: C
- PARKINGDetails of how and where vehicles can be parked, and any associated costs.Read more about parking in our glossary page.
- Yes
- GARDENA property has access to an outdoor space, which could be private or shared.
- Yes
- ACCESSIBILITYHow a property has been adapted to meet the needs of vulnerable or disabled individuals.Read more about accessibility in our glossary page.
- Ask agent
Energy performance certificate - ask agent
Thirlmere Avenue, Workington, CA14
Add an important place to see how long it'd take to get there from our property listings.
__mins driving to your place
Get an instant, personalised result:
- Show sellers you’re serious
- Secure viewings faster with agents
- No impact on your credit score
Your mortgage
Notes
Staying secure when looking for property
Ensure you're up to date with our latest advice on how to avoid fraud or scams when looking for property online.
Visit our security centre to find out moreDisclaimer - Property reference 84419aa8-03f5-4ee6-b146-7ba07ac95093. The information displayed about this property comprises a property advertisement. Rightmove.co.uk makes no warranty as to the accuracy or completeness of the advertisement or any linked or associated information, and Rightmove has no control over the content. This property advertisement does not constitute property particulars. The information is provided and maintained by First Choice Move, Lillyhall. Please contact the selling agent or developer directly to obtain any information which may be available under the terms of The Energy Performance of Buildings (Certificates and Inspections) (England and Wales) Regulations 2007 or the Home Report if in relation to a residential property in Scotland.
*This is the average speed from the provider with the fastest broadband package available at this postcode. The average speed displayed is based on the download speeds of at least 50% of customers at peak time (8pm to 10pm). Fibre/cable services at the postcode are subject to availability and may differ between properties within a postcode. Speeds can be affected by a range of technical and environmental factors. The speed at the property may be lower than that listed above. You can check the estimated speed and confirm availability to a property prior to purchasing on the broadband provider's website. Providers may increase charges. The information is provided and maintained by Decision Technologies Limited. **This is indicative only and based on a 2-person household with multiple devices and simultaneous usage. Broadband performance is affected by multiple factors including number of occupants and devices, simultaneous usage, router range etc. For more information speak to your broadband provider.
Map data ©OpenStreetMap contributors.





