
2 bedroom end of terrace house for sale
Erringtons Close, Oadby, Leicester

- PROPERTY TYPE
End of Terrace
- BEDROOMS
2
- BATHROOMS
1
- SIZE
Ask agent
- TENUREDescribes how you own a property. There are different types of tenure - freehold, leasehold, and commonhold.Read more about tenure in our glossary page.
Freehold
Key features
- Semi Detached House
- Two Double Bedrooms
- Lounge
- Kitchen
- Downstairs W/C
- Bathroom
- Freehold
- No Chain
- EPC Rating C Council Tax Band B
- Allocated Parking Space and Garage
Description
A nicely presented TWO DOUBLE bedroom END TERRACED property situated in this CUL DE SAC development and offered for sale with NO CHAIN.
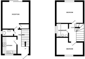
The accommodation briefly comprises an entrance hall, lounge, kitchen and a w/c on the ground floor. On the first floor there are two bedrooms and a bathroom.
Well located with easy access to Oadby Town Centre and Leicester City Centre, not to mention local schooling.
The house also benefits from its own ALLOCATED PARKING SPACE and GARAGE.
Entrance Hall - Double glazed front door, fuse box attached to wall, staircase rising to first floor.
Lounge - 4.14 x 3.56 (13'6" x 11'8") - Coving ,under stairs cupboard, radiator, double glazed sliding patio doors to rear aspect leading out into garden.
Kitchen - 2.70 max x 2.62 (8'10" max x 8'7") - Fitted units with worktops and tiled splashbacks, sink with drainer, four ring gas hob with oven and extractor, boiler, space for fridge freezer, spotlights, radiator, double glazed window to front aspect.
Downstairs W/C - 1.46 x 0.96 (4'9" x 3'1") - Pedestal wash hand basin, low level W/C, radiator, double glazed frosted window to side aspect.
Landing - Access to loft, radiator.
Bedroom One - 4.14 max x 2.59 (13'6" max x 8'5") - Built in cupboard housing water tank, radiator, double glazed window to front aspect.
Bedroom Two - 4.14 into wardrobes x 2.83 (13'6" into wardrobes x - Fitted wardrobes coving, radiator, double glazed window to rear aspect.
Bathroom - 1.89 x 1.71 (6'2" x 5'7") - Bath with electric shower, pedestal wash hand basin, low level W/C, part tiled walls and tiled floor, radiator, double glazed frosted window to side aspect.
Garage -
Outside - Paved area, mainly laid to lawn with flower borders, side gate.
To the front of the property is a light and water tap.
Free Valuation - Thinking of selling? We would be delighted to provide you with a free market appraisal/valuation of your own property. Please contact Barkers to arrange a mutually convenient appointment on Tel:
General Remarks - We are unable to confirm whether certain items in the property are in fully working order (i.e. gas, electric, plumbing etc.) The property is offered for sale on this basis. Prospective purchasers are advised to inspect the property and commission expert reports where appropriate. Barkers Estate Agents have a policy of seeking to obtain any copy guarantees / invoices relating to works that may have been carried out by a previous or existing owner. Please ask one of our staff members to check files for any relevant documentation that have come to our attention.
Photographs are reproduced for general information and it must not be inferred that any items shown are included in the sale with the property.
MONEY LAUNDERING
Under the Protection Against Money Laundering and the Proceeds of Crime Act 2002, we must point out that any successful purchasers who are proceeding with a purchase will be asked for identification i.e. passport or driving licence or recent utility bill. This evidence will be required prior to solicitors being instructed in the purchase of the sale of a property.
MORTGAGES
Barkers Estate Agents offer the services of an independent mortgage and financial adviser. Please ask an advisor for further information.
VIEWING TIMES
Viewing strictly by appointment through Barkers Estate Agents.
Hours of Business:
Monday to Friday 9am -5pm
Saturday 9am - 4pm
Brochures
Erringtons Close, Oadby, LeicesterBrochure- COUNCIL TAXA payment made to your local authority in order to pay for local services like schools, libraries, and refuse collection. The amount you pay depends on the value of the property.Read more about council Tax in our glossary page.
- Band: B
- PARKINGDetails of how and where vehicles can be parked, and any associated costs.Read more about parking in our glossary page.
- Garage,Off street,No disabled parking,Rear,Communal
- GARDENA property has access to an outdoor space, which could be private or shared.
- Yes
- ACCESSIBILITYHow a property has been adapted to meet the needs of vulnerable or disabled individuals.Read more about accessibility in our glossary page.
- Wide doorways,Level access
Erringtons Close, Oadby, Leicester
Add an important place to see how long it'd take to get there from our property listings.
__mins driving to your place
Get an instant, personalised result:
- Show sellers you’re serious
- Secure viewings faster with agents
- No impact on your credit score
Your mortgage
Notes
Staying secure when looking for property
Ensure you're up to date with our latest advice on how to avoid fraud or scams when looking for property online.
Visit our security centre to find out moreDisclaimer - Property reference 34264494. The information displayed about this property comprises a property advertisement. Rightmove.co.uk makes no warranty as to the accuracy or completeness of the advertisement or any linked or associated information, and Rightmove has no control over the content. This property advertisement does not constitute property particulars. The information is provided and maintained by Barkers, Leicester. Please contact the selling agent or developer directly to obtain any information which may be available under the terms of The Energy Performance of Buildings (Certificates and Inspections) (England and Wales) Regulations 2007 or the Home Report if in relation to a residential property in Scotland.
*This is the average speed from the provider with the fastest broadband package available at this postcode. The average speed displayed is based on the download speeds of at least 50% of customers at peak time (8pm to 10pm). Fibre/cable services at the postcode are subject to availability and may differ between properties within a postcode. Speeds can be affected by a range of technical and environmental factors. The speed at the property may be lower than that listed above. You can check the estimated speed and confirm availability to a property prior to purchasing on the broadband provider's website. Providers may increase charges. The information is provided and maintained by Decision Technologies Limited. **This is indicative only and based on a 2-person household with multiple devices and simultaneous usage. Broadband performance is affected by multiple factors including number of occupants and devices, simultaneous usage, router range etc. For more information speak to your broadband provider.
Map data ©OpenStreetMap contributors.








