Castor Way, Stockton-On-Tees

- PROPERTY TYPE
Detached
- BEDROOMS
4
- BATHROOMS
2
- SIZE
Ask agent
- TENUREDescribes how you own a property. There are different types of tenure - freehold, leasehold, and commonhold.Read more about tenure in our glossary page.
Freehold
Description
Immaculately presented throughout, this beautiful 4-bedroom detached property offers modern family living in a desirable new-build estate. Built just 6 years ago, the home boasts a contemporary design, spacious layout, and a range of stylish features ready for you to move straight in.
Key Features:
4 Bedrooms - including 3 doubles and master with en-suite
Integral garage with personnel door & driveway parking
Modern kitchen-diner with ample space for family meals and entertaining
Front and rear gardens, beautifully maintained
Paved rear garden with artificial lawn - perfect for low-maintenance living
Summer house with fitted bar area - ideal for entertaining or relaxing
Neutral décor throughout - bright, clean, and move-in ready.
Large green area to the front of the property - ideal for families and outdoor activities
Located in a popular residential area close to local schools, shops, and transport links, this property is perfect for families seeking space, comfort, and a modern lifestyle.
Early viewing is highly recommended - homes of this standard rarely stay on the market for long!
Council Tax Band: Band D
Tenure: Freehold
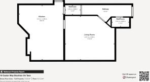
Entrance Hall
Entry through external double glazed door leading to hallway. Access to living room, downstairs w/c with stairs leading to first floor.
Living room
To the front aspect, bright and airy living space, carpet to flooring. Double glazed window and radiator.
Kitchen/diner
To the rear aspect - boasting a range of wall and base units with contrasting work surfaces. Integrated electric oven and gas hob with extractor fan. Integrated fridge freezer. Personnel door leading to garage. Under stairs storage cupboard. Large double glazed window and double glazed French doors, leading to rear garden.
WC
Down stairs cloakroom, w/c with concealed cistern and hand wash basin.
Bedroom 1
Large double bedroom to the front aspect with ensuite facilities including double shower cubicle and w/c. Double glazed window and radiator.
Bedroom 2
Large double room over garage, double glazed window and radiator.
Bedroom 3
Double bedroom to the rear aspect, double glazed window and radiator.
Bedroom 4
Single room to the front aspect, ideal nursery or office area. Double glazed window and radiator.
Bathroom
Family bathroom to the rear aspect. Panelled bath with over bath rainfall shower with shower screen. Extractor fan, double glazed window and radiator.
Brochures
Brochure- COUNCIL TAXA payment made to your local authority in order to pay for local services like schools, libraries, and refuse collection. The amount you pay depends on the value of the property.Read more about council Tax in our glossary page.
- Band: D
- PARKINGDetails of how and where vehicles can be parked, and any associated costs.Read more about parking in our glossary page.
- Garage,On street,Driveway,Off street
- GARDENA property has access to an outdoor space, which could be private or shared.
- Front garden,Private garden,Enclosed garden
- ACCESSIBILITYHow a property has been adapted to meet the needs of vulnerable or disabled individuals.Read more about accessibility in our glossary page.
- Ask agent
Energy performance certificate - ask agent
Castor Way, Stockton-On-Tees
Add an important place to see how long it'd take to get there from our property listings.
__mins driving to your place
Get an instant, personalised result:
- Show sellers you’re serious
- Secure viewings faster with agents
- No impact on your credit score
About Orange Sales and Lettings, Stockton-On-Tees
Biz Hub, Belasis Business Centre, Coxwold Way Cowpen Bewley Billingham TS23 4EA

Your mortgage
Notes
Staying secure when looking for property
Ensure you're up to date with our latest advice on how to avoid fraud or scams when looking for property online.
Visit our security centre to find out moreDisclaimer - Property reference RS0157. The information displayed about this property comprises a property advertisement. Rightmove.co.uk makes no warranty as to the accuracy or completeness of the advertisement or any linked or associated information, and Rightmove has no control over the content. This property advertisement does not constitute property particulars. The information is provided and maintained by Orange Sales and Lettings, Stockton-On-Tees. Please contact the selling agent or developer directly to obtain any information which may be available under the terms of The Energy Performance of Buildings (Certificates and Inspections) (England and Wales) Regulations 2007 or the Home Report if in relation to a residential property in Scotland.
*This is the average speed from the provider with the fastest broadband package available at this postcode. The average speed displayed is based on the download speeds of at least 50% of customers at peak time (8pm to 10pm). Fibre/cable services at the postcode are subject to availability and may differ between properties within a postcode. Speeds can be affected by a range of technical and environmental factors. The speed at the property may be lower than that listed above. You can check the estimated speed and confirm availability to a property prior to purchasing on the broadband provider's website. Providers may increase charges. The information is provided and maintained by Decision Technologies Limited. **This is indicative only and based on a 2-person household with multiple devices and simultaneous usage. Broadband performance is affected by multiple factors including number of occupants and devices, simultaneous usage, router range etc. For more information speak to your broadband provider.
Map data ©OpenStreetMap contributors.





