
3 bedroom semi-detached house for sale
Kayser Court, Biggleswade

- PROPERTY TYPE
Semi-Detached
- BEDROOMS
3
- BATHROOMS
1
- SIZE
Ask agent
- TENUREDescribes how you own a property. There are different types of tenure - freehold, leasehold, and commonhold.Read more about tenure in our glossary page.
Freehold
Key features
- THREE BEDROOMS
- KITCHEN/DINER
- CLOAKROOM
- DOUBLE GLAZING AND GAS RADIATOR HEATING
- REFITTED SHOWER ROOM
- ENCLOSED REAR GARDEN
- GARAGE AND DRIVEWAY
- CLOSE TO TOWN, SHOPS AND STATION
Description
This well presented three bedroom semi detached family home is well located for the train station, shops and town. The property benefits from a cloakroom, kitchen/diner to rear, refitted shower room, garage and driveway. Contact Kennedy & Foster the Sole Agents to arrange your viewing.
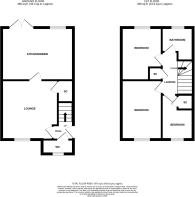
HALLWAY Stairs rising to first floor accommodation, wall mounted radiator, wood laminate floor. Panelled doors to:
UPVC DOUBLE GLAZED FRONT DOOR INTO:
CLOAKROOM Frosted uPVC double glazed leaded light window to front aspect, close coupled WC, wall mounted wash hand basin with tiled splash back, wall mounted radiator.
LOUNGE 12' 2" x 11' 11" (3.71m x 3.63m) uPVC double glazed leaded light window to front aspect, wall mounted radiator, wood laminate floor, built in cupboard, coving to textured ceiling, modern electric fire with surround and hearth. Panelled door to:
KITCHEN 14' 5" x 10' 6" (4.39m x 3.2m) uPVC double glazed window and uPVC double glazed French doors to rear. Range of fitted eye level and base units with work surface over, stainless steel sink and drainer unit, tiled splash back, built in oven with electric hob and extractor over. Space for fridge/freezer and washing machine, wood laminate floor, wall mounted radiator, wall mounted boiler.
FIRST FLOOR LANDING Access to loft space, built in cupboard housing hot water cylinder. Panelled doors to:
BEDROOM ONE 10' 6" (to wardrobes) x 8' 2" (3.2m x 2.49m) uPVC double glazed leaded light window to front aspect, wall mounted radiator, fitted wardrobe.
BEDROOM TWO 10' 8" x 8' 2" (3.25m x 2.49m) uPVC double glazed window to rear aspect, wall mounted radiator.
BEDROOM THREE 6' 8" (9' 5'') x 6' 1" (2.03m x 1.85m) uPVC double glazed leaded light window to front aspect, wall mounted radiator, built in cupboard (Over stairs)
REFITTED SHOWER ROOM uPVC double glazed frosted window to rear aspect, walk in shower unit with rainfall shower and hand held attachment, close coupled WC, wall mounted wash hand basin with drawers under, tiled surround, tiled floor, spotlights to ceiling.
REAR GARDEN Paved patio across rear and extending behind garage. Garden mainly laid to lawn with shrubs, plants and tree borders, enclosed by timber panel fencing, outside tap, courtesy door to garage.
FRONT Slate shingled garden.
GARAGE Roller door, power and light, parking on driveway for one car.
Brochures
Brochure- COUNCIL TAXA payment made to your local authority in order to pay for local services like schools, libraries, and refuse collection. The amount you pay depends on the value of the property.Read more about council Tax in our glossary page.
- Band: C
- PARKINGDetails of how and where vehicles can be parked, and any associated costs.Read more about parking in our glossary page.
- Garage
- GARDENA property has access to an outdoor space, which could be private or shared.
- Yes
- ACCESSIBILITYHow a property has been adapted to meet the needs of vulnerable or disabled individuals.Read more about accessibility in our glossary page.
- Ask agent
Kayser Court, Biggleswade
Add an important place to see how long it'd take to get there from our property listings.
__mins driving to your place
Get an instant, personalised result:
- Show sellers you’re serious
- Secure viewings faster with agents
- No impact on your credit score
Your mortgage
Notes
Staying secure when looking for property
Ensure you're up to date with our latest advice on how to avoid fraud or scams when looking for property online.
Visit our security centre to find out moreDisclaimer - Property reference 103515003427. The information displayed about this property comprises a property advertisement. Rightmove.co.uk makes no warranty as to the accuracy or completeness of the advertisement or any linked or associated information, and Rightmove has no control over the content. This property advertisement does not constitute property particulars. The information is provided and maintained by Kennedy & Foster, Biggleswade. Please contact the selling agent or developer directly to obtain any information which may be available under the terms of The Energy Performance of Buildings (Certificates and Inspections) (England and Wales) Regulations 2007 or the Home Report if in relation to a residential property in Scotland.
*This is the average speed from the provider with the fastest broadband package available at this postcode. The average speed displayed is based on the download speeds of at least 50% of customers at peak time (8pm to 10pm). Fibre/cable services at the postcode are subject to availability and may differ between properties within a postcode. Speeds can be affected by a range of technical and environmental factors. The speed at the property may be lower than that listed above. You can check the estimated speed and confirm availability to a property prior to purchasing on the broadband provider's website. Providers may increase charges. The information is provided and maintained by Decision Technologies Limited. **This is indicative only and based on a 2-person household with multiple devices and simultaneous usage. Broadband performance is affected by multiple factors including number of occupants and devices, simultaneous usage, router range etc. For more information speak to your broadband provider.
Map data ©OpenStreetMap contributors.





