
5 bedroom detached house for sale
Westley Crescent, Little Eaton, Derby

- PROPERTY TYPE
Detached
- BEDROOMS
5
- BATHROOMS
2
- SIZE
1,686 sq ft
157 sq m
- TENUREDescribes how you own a property. There are different types of tenure - freehold, leasehold, and commonhold.Read more about tenure in our glossary page.
Freehold
Key features
- Highly Appealing Family Detached Home
- Ecclesbourne School Catchment Area
- Pleasant Cul-de-Sac Location - Close to Little Eaton Amenities & School Bus Stop
- Spacious Lounge
- Fitted Kitchen & Dining/Family Room
- Home Office/Studio
- Four/Five Bedrooms & Two Bathrooms
- Pleasant Gardens
- Block Paved Driveway & Garage
- Utility Room & Cloakroom
Description
The Location - Little Eaton is a convenient and sought after village location situated approximately 5 miles north of Derby City centre and offers a good range of local amenities to include Co-Op Store, newsagent, butcher, chemist, public houses, historic church and regular bus services. Little Eaton is well known for its Village Primary School and is within the noted Ecclesbourne Secondary School catchment area.
Local recreational facilities are on St Peter's Park to include football, cricket, tennis courts, green bowls, children's playground and leisure pavilion. For those who enjoy the outdoor pursuits the nearby Drum Hill and Bluebell Woods provide some delightful scenery and walks.
Transport links close by include easy access on to the A6, A38, A50 leading to the M1 motorway.
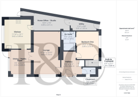
Accommodation -
Ground Floor -
Entrance Hall - 3.06 x 2.74 (10'0" x 8'11") - With double glazed door, radiator and staircase leading to first floor.
Cloakroom - 1.85 x 0.94 (6'0" x 3'1") - With low level WC, wash basin, concealed central heating boiler, radiator and double glazed window.
Lounge - 5.74 x 3.63 (18'9" x 11'10") - With wall mounted electric fire, radiator and double glazed window.
Dining/Family Room - 3.35 x 2.83 (10'11" x 9'3") - With radiator, two double glazed windows, open square archway leading into kitchen and double glazed door with access to garden.
Kitchen - 3.99 x 3.62 (13'1" x 11'10") - With inset single sink unit with Quooker tap, wall and base units with matching worktops, built-in induction hob with concealed extractor hood, built-in electric fan assisted oven, integrated fridge/freezer, plumbing for dishwasher, tiled effect flooring, radiator, spotlights to ceiling, matching fitted island again with matching worktops and with fitted base cupboards underneath and double glazed window overlooking rear garden.
Utility - 3.51 x 1.43 (11'6" x 4'8") - With tiled effect flooring, plumbing for automatic washing machine and double glazed front access door.
Home Office/Studio - 4.89 x 2.31 (16'0" x 7'6") - With radiator, tiled effect floor and double glazed door giving access to garden.
Bedroom One - 3.70 x 3.00 (12'1" x 9'10") - With radiator, double glazed window to front and built-in storage cupboard.
En-Suite Bathroom - 2.55 x 1.69 (8'4" x 5'6") - With corner spa bath with shower over with shower screen door, fitted wash basin, low level WC, tiled splashbacks, heated chrome towel rail/radiator, extractor fan and internal panelled door.
First Floor Landing/Study Area - 5.09 x 2.92 (16'8" x 9'6") - With two double glazed windows and built-in storage cupboard.
Bedroom Two - 3.61 x 3.13 (11'10" x 10'3") - With built-in wardrobes with cupboards above, built-in chest of drawers, radiator, double glazed window to rear and internal panelled door.
Bedroom Three - 2.81 x 2.49 (9'2" x 8'2") - With built-in wardrobes with cupboards above, radiator, double glazed window to rear, double glazed window to front, far-reaching views and internal panelled door.
Family Bathroom/Shower Room - 2.74 x 1.96 (8'11" x 6'5") - With double shower cubicle with shower, fitted wash basin, low level WC, tile splashbacks, tiled effect flooring, heated towel rail/radiator, extractor fan, double glazed window to rear and internal panelled door.
First Floor Landing - 3.64 x 1.73 x 1.13 x 0.77 (11'11" x 5'8" x 3'8" x - With three built-in storage cupboards providing good storage.
Bedroom Four - 3.67 x 4.02 (12'0" x 13'2") - With radiator, double glazed window to rear and internal panelled door.
Bedroom Five - 3.35 x 2.86 (10'11" x 9'4") - With radiator, double glazed window to rear and internal panelled door.
Front Garden - The property is laid to lawn with shrubs, slate chippings and patio area.
Side Garden - The garden is laid to lawn with pathway leading to the entrance door and side pathway.
Rear Garden - The garden is laid to lawn with paved pathway and patio.
Driveway - A block paved driveway provides car standing spaces.
Brick Detached Garage -
Council Tax - E - Erewash
Brochures
Westley Crescent, Little Eaton, DerbyBrochure- COUNCIL TAXA payment made to your local authority in order to pay for local services like schools, libraries, and refuse collection. The amount you pay depends on the value of the property.Read more about council Tax in our glossary page.
- Band: E
- PARKINGDetails of how and where vehicles can be parked, and any associated costs.Read more about parking in our glossary page.
- Yes
- GARDENA property has access to an outdoor space, which could be private or shared.
- Yes
- ACCESSIBILITYHow a property has been adapted to meet the needs of vulnerable or disabled individuals.Read more about accessibility in our glossary page.
- Ask agent
Westley Crescent, Little Eaton, Derby
Add an important place to see how long it'd take to get there from our property listings.
__mins driving to your place
Get an instant, personalised result:
- Show sellers you’re serious
- Secure viewings faster with agents
- No impact on your credit score



Your mortgage
Notes
Staying secure when looking for property
Ensure you're up to date with our latest advice on how to avoid fraud or scams when looking for property online.
Visit our security centre to find out moreDisclaimer - Property reference 34265322. The information displayed about this property comprises a property advertisement. Rightmove.co.uk makes no warranty as to the accuracy or completeness of the advertisement or any linked or associated information, and Rightmove has no control over the content. This property advertisement does not constitute property particulars. The information is provided and maintained by Fletcher & Company, Duffield. Please contact the selling agent or developer directly to obtain any information which may be available under the terms of The Energy Performance of Buildings (Certificates and Inspections) (England and Wales) Regulations 2007 or the Home Report if in relation to a residential property in Scotland.
*This is the average speed from the provider with the fastest broadband package available at this postcode. The average speed displayed is based on the download speeds of at least 50% of customers at peak time (8pm to 10pm). Fibre/cable services at the postcode are subject to availability and may differ between properties within a postcode. Speeds can be affected by a range of technical and environmental factors. The speed at the property may be lower than that listed above. You can check the estimated speed and confirm availability to a property prior to purchasing on the broadband provider's website. Providers may increase charges. The information is provided and maintained by Decision Technologies Limited. **This is indicative only and based on a 2-person household with multiple devices and simultaneous usage. Broadband performance is affected by multiple factors including number of occupants and devices, simultaneous usage, router range etc. For more information speak to your broadband provider.
Map data ©OpenStreetMap contributors.






