
Back Lane, Hampstead, London, NW3

Letting details
- Let available date:
- 15/12/2025
- Deposit:
- £4,750A deposit provides security for a landlord against damage, or unpaid rent by a tenant.Read more about deposit in our glossary page.
- Min. Tenancy:
- Ask agent How long the landlord offers to let the property for.Read more about tenancy length in our glossary page.
- Let type:
- Long term
- Furnish type:
- Unfurnished
- Council Tax:
- Ask agent
- PROPERTY TYPE
Terraced
- BEDROOMS
3
- BATHROOMS
2
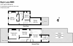
- SIZE
1,077 sq ft
100 sq m
Key features
- 3 bedrooms
- 3 reception rooms
- 2 bathrooms
- Garden
- Cottage
Description
The property comprises principal bedroom with en suite, 2 additional bedrooms , family bathroom, private terrace, separate fully fitted kitchen, double reception room with a conservatory allowing direct access to a private rear patio garden.
Situated moments from Hampstead tube station (Northern Line), Hampstead Heath and the many local shops and amenities of Hampstead village.
Available unfurnished. EPC: E
Hampstead is a highly sought after area known for its intellectual, artistic, musical and literary associations. The area has retained most of its village atmosphere and charm and offers its occupants excellent cultural attractions such as Freud Museum, Keats House and the picturesque Kenwood House featured in the film Notting Hill and also home to many major open-air concerts. Hampstead Heath is a main attraction for people looking to move to Hampstead, the parkland boasts three open air public swimming pools and wonderful family activities such as a funfair and an open air ice skating rink in the winter. The village also has a great selection of restaurants and pubs.
Brochures
More Details- COUNCIL TAXA payment made to your local authority in order to pay for local services like schools, libraries, and refuse collection. The amount you pay depends on the value of the property.Read more about council Tax in our glossary page.
- Band: G
- PARKINGDetails of how and where vehicles can be parked, and any associated costs.Read more about parking in our glossary page.
- Ask agent
- GARDENA property has access to an outdoor space, which could be private or shared.
- Yes
- ACCESSIBILITYHow a property has been adapted to meet the needs of vulnerable or disabled individuals.Read more about accessibility in our glossary page.
- Ask agent
Back Lane, Hampstead, London, NW3
Add an important place to see how long it'd take to get there from our property listings.
__mins driving to your place
Notes
Staying secure when looking for property
Ensure you're up to date with our latest advice on how to avoid fraud or scams when looking for property online.
Visit our security centre to find out moreDisclaimer - Property reference HAQ012516298. The information displayed about this property comprises a property advertisement. Rightmove.co.uk makes no warranty as to the accuracy or completeness of the advertisement or any linked or associated information, and Rightmove has no control over the content. This property advertisement does not constitute property particulars. The information is provided and maintained by Knight Frank - Lettings, Hampstead. Please contact the selling agent or developer directly to obtain any information which may be available under the terms of The Energy Performance of Buildings (Certificates and Inspections) (England and Wales) Regulations 2007 or the Home Report if in relation to a residential property in Scotland.
*This is the average speed from the provider with the fastest broadband package available at this postcode. The average speed displayed is based on the download speeds of at least 50% of customers at peak time (8pm to 10pm). Fibre/cable services at the postcode are subject to availability and may differ between properties within a postcode. Speeds can be affected by a range of technical and environmental factors. The speed at the property may be lower than that listed above. You can check the estimated speed and confirm availability to a property prior to purchasing on the broadband provider's website. Providers may increase charges. The information is provided and maintained by Decision Technologies Limited. **This is indicative only and based on a 2-person household with multiple devices and simultaneous usage. Broadband performance is affected by multiple factors including number of occupants and devices, simultaneous usage, router range etc. For more information speak to your broadband provider.
Map data ©OpenStreetMap contributors.








