
Torside Street, GLOSSOP, SK13 1AD

- PROPERTY TYPE
Semi-Detached
- BEDROOMS
4
- BATHROOMS
2
- SIZE
Ask agent
- TENUREDescribes how you own a property. There are different types of tenure - freehold, leasehold, and commonhold.Read more about tenure in our glossary page.
Freehold
Key features
- Beautiful three-storey semi-detached home on the popular Willow Gardens development by Barratt Homes
- Fexible layout offering four bedrooms and two bathrooms
- Versatile ground floor room ideal as an office or fourth bedroom
- Driveway parking for two vehicles
- Dual-aspect master bedroom with stylish en suite shower room
- First-floor lounge overlooking the garden
- Low-maintenance rear garden laid to lawn
- Convenient location close to Hadfield’s shops, train station and excellent schools
- Easy access to scenic walks and the Peak District National Park
Description
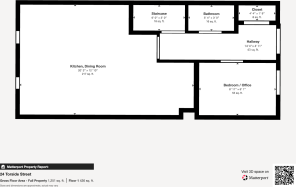
Country Holmes are delighted to present this superbly appointed three-storey semi-detached home, beautifully situated on the sought-after Willow Gardens development, built by Barratt Homes. Designed with style and versatility in mind, this impressive property offers spacious and well-planned accommodation across three floors, making it an ideal choice for families seeking four bedrooms and two bathrooms in a modern, flexible layout.
The welcoming entrance hall features useful storage and a convenient downstairs WC. On the ground floor, there is a versatile room currently used as an office but equally suited as a fourth bedroom. The family and dining area to the rear provides a bright and sociable space, enhanced by patio doors that open directly onto the rear garden. This area flows seamlessly into the well-equipped kitchen, fitted with a range of wall and base units, complementary work surfaces, built-in electric oven with gas hob, and space for appliances including a washing machine and fridge-freezer. A useful under-stairs storage cupboard completes the ground floor, with stairs leading up to the first floor featuring attractive wood panelling.
On the first floor, the comfortable lounge overlooks the rear garden, providing a relaxing retreat. The beautifully presented master bedroom enjoys a dual-aspect design with two windows to the front, filling the room with natural light, and benefits from its own stylish en suite with a walk-in shower, low-level WC, and wash hand basin.
The second floor comprises two further well-presented bedrooms, each with Velux windows and built-in storage, along with a modern family bathroom featuring a panelled bath, low-level WC, and wash hand basin.
Externally, the rear garden has been laid to lawn for ease of maintenance, while a driveway to the front provides off-road parking for two vehicles.
Perfectly positioned at the bottom of New Road, Willow Gardens offers easy access to nearby amenities. Hadfield village is just moments away, offering a range of shops for everyday needs and a railway station providing direct services to Manchester Piccadilly. The nearby town of Glossop features a vibrant High Street with an array of retail and leisure options. Outdoor enthusiasts will appreciate the scenic walks around the reservoirs and the breath-taking views of the surrounding valley leading into the Peak District National Park. For families, the area is well served by excellent primary and secondary schools, making this an ideal home for both comfort and convenience.
Important Information
We take every care in preparing our sales details. They are checked and verified by the Vendor. We do not guarantee appliances, alarms, electrical fittings, plumbing, showers, etc, you must satisfy yourself that they operate correctly. Room sizes are approximate, they are taken in imperial and converted to metric, do not use them to buy carpets or furniture. We cannot verify the tenure, as we do not have access to the legal title, we cannot guarantee boundaries or rights of way, and you must take the advice of your legal representative. If there is any point that is of particular importance to you, please contact the office and we will be pleased to check the information. Do so, particularly if contemplating travelling some distance to view.
Brochures
Brochure 1- COUNCIL TAXA payment made to your local authority in order to pay for local services like schools, libraries, and refuse collection. The amount you pay depends on the value of the property.Read more about council Tax in our glossary page.
- Band: C
- PARKINGDetails of how and where vehicles can be parked, and any associated costs.Read more about parking in our glossary page.
- Driveway
- GARDENA property has access to an outdoor space, which could be private or shared.
- Private garden
- ACCESSIBILITYHow a property has been adapted to meet the needs of vulnerable or disabled individuals.Read more about accessibility in our glossary page.
- Ask agent
Torside Street, GLOSSOP, SK13 1AD
Add an important place to see how long it'd take to get there from our property listings.
__mins driving to your place
Get an instant, personalised result:
- Show sellers you’re serious
- Secure viewings faster with agents
- No impact on your credit score
Your mortgage
Notes
Staying secure when looking for property
Ensure you're up to date with our latest advice on how to avoid fraud or scams when looking for property online.
Visit our security centre to find out moreDisclaimer - Property reference S1483993. The information displayed about this property comprises a property advertisement. Rightmove.co.uk makes no warranty as to the accuracy or completeness of the advertisement or any linked or associated information, and Rightmove has no control over the content. This property advertisement does not constitute property particulars. The information is provided and maintained by Country Holmes, Glossop. Please contact the selling agent or developer directly to obtain any information which may be available under the terms of The Energy Performance of Buildings (Certificates and Inspections) (England and Wales) Regulations 2007 or the Home Report if in relation to a residential property in Scotland.
*This is the average speed from the provider with the fastest broadband package available at this postcode. The average speed displayed is based on the download speeds of at least 50% of customers at peak time (8pm to 10pm). Fibre/cable services at the postcode are subject to availability and may differ between properties within a postcode. Speeds can be affected by a range of technical and environmental factors. The speed at the property may be lower than that listed above. You can check the estimated speed and confirm availability to a property prior to purchasing on the broadband provider's website. Providers may increase charges. The information is provided and maintained by Decision Technologies Limited. **This is indicative only and based on a 2-person household with multiple devices and simultaneous usage. Broadband performance is affected by multiple factors including number of occupants and devices, simultaneous usage, router range etc. For more information speak to your broadband provider.
Map data ©OpenStreetMap contributors.






