
Balston Road, Maidstone, ME14

- PROPERTY TYPE
Semi-Detached
- BEDROOMS
4
- BATHROOMS
3
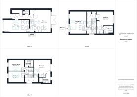
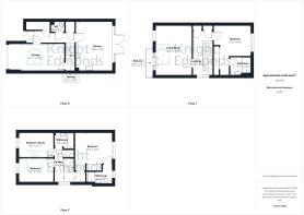
- SIZE
1,474 sq ft
137 sq m
- TENUREDescribes how you own a property. There are different types of tenure - freehold, leasehold, and commonhold.Read more about tenure in our glossary page.
Freehold
Key features
- Guide Price £500,000 - £525,000
- Arranged Across Three Floors
- Immaculately Presented Throughout
- Spacious Lounge with Balcony
- Two En-Suite Bedrooms
- Downstairs Cloakroom
- Electric Vehicle Charger
- Close to Excellent Schools, Shops and Transport Links
Description
Guide Price £500,000 - £525,000
Ideally positioned within walking distance of Maidstone East train station and the town centre, this stunning four-bedroom semi-detached home combines modern design, elegant décor and versatile living space arranged over three floors.
The ground floor opens into a welcoming hallway leading to a contemporary kitchen/diner, beautifully fitted with sleek cabinetry, integrated appliances and space for family dining. Glazed doors flood the room with natural light and open directly onto the landscaped rear garden, creating the perfect setting for entertaining. A downstairs cloakroom and integral garage provide practicality and storage.
On the first floor, a bright and spacious living room opens onto a balcony overlooking the front aspect, while a generous double bedroom with en-suite shower room completes this level.
The top floor offers three further bedrooms, including a superb principal bedroom with en-suite bathroom, along with a modern family shower room.
Outside, the rear garden has been thoughtfully designed with a lawn, patio, and a raised seating area — ideal for summer evenings and outdoor dining.
The property enjoys an excellent location within easy reach of Maidstone’s vibrant town centre, offering a wide range of shops, cafés, and restaurants, along with beautiful riverside walks. Families will appreciate the proximity to highly regarded schools, including Invicta Grammar, Valley Park and North Borough Primary, while commuters benefit from Maidstone East station providing direct links into London and easy access to the M20.
EPC Rating: B
Parking - EV charging
Integral Garage and Off Road Parking and EV Charger
- COUNCIL TAXA payment made to your local authority in order to pay for local services like schools, libraries, and refuse collection. The amount you pay depends on the value of the property.Read more about council Tax in our glossary page.
- Band: E
- PARKINGDetails of how and where vehicles can be parked, and any associated costs.Read more about parking in our glossary page.
- EV charging
- GARDENA property has access to an outdoor space, which could be private or shared.
- Private garden
- ACCESSIBILITYHow a property has been adapted to meet the needs of vulnerable or disabled individuals.Read more about accessibility in our glossary page.
- Ask agent
Energy performance certificate - ask agent
Balston Road, Maidstone, ME14
Add an important place to see how long it'd take to get there from our property listings.
__mins driving to your place
Explore area BETA
Maidstone
Get to know this area with AI-generated guides about local green spaces, transport links, restaurants and more.
Get an instant, personalised result:
- Show sellers you’re serious
- Secure viewings faster with agents
- No impact on your credit score
Your mortgage
Notes
Staying secure when looking for property
Ensure you're up to date with our latest advice on how to avoid fraud or scams when looking for property online.
Visit our security centre to find out moreDisclaimer - Property reference 29f75cb4-8ff4-40ba-8a4d-c07fce48288d. The information displayed about this property comprises a property advertisement. Rightmove.co.uk makes no warranty as to the accuracy or completeness of the advertisement or any linked or associated information, and Rightmove has no control over the content. This property advertisement does not constitute property particulars. The information is provided and maintained by Knight Edmonds, Maidstone. Please contact the selling agent or developer directly to obtain any information which may be available under the terms of The Energy Performance of Buildings (Certificates and Inspections) (England and Wales) Regulations 2007 or the Home Report if in relation to a residential property in Scotland.
*This is the average speed from the provider with the fastest broadband package available at this postcode. The average speed displayed is based on the download speeds of at least 50% of customers at peak time (8pm to 10pm). Fibre/cable services at the postcode are subject to availability and may differ between properties within a postcode. Speeds can be affected by a range of technical and environmental factors. The speed at the property may be lower than that listed above. You can check the estimated speed and confirm availability to a property prior to purchasing on the broadband provider's website. Providers may increase charges. The information is provided and maintained by Decision Technologies Limited. **This is indicative only and based on a 2-person household with multiple devices and simultaneous usage. Broadband performance is affected by multiple factors including number of occupants and devices, simultaneous usage, router range etc. For more information speak to your broadband provider.
Map data ©OpenStreetMap contributors.






