3 bedroom terraced house for sale
Drinkstone, Bury St. Edmunds

- PROPERTY TYPE
Terraced
- BEDROOMS
3
- BATHROOMS
2
- SIZE
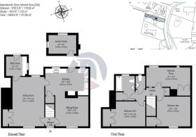
1,370 sq ft
127 sq m
- TENUREDescribes how you own a property. There are different types of tenure - freehold, leasehold, and commonhold.Read more about tenure in our glossary page.
Freehold
Key features
- **Download our detailed brochure by selecting 'Read full description' & view the short film for an Area profile**
Description
Tanwood, the larger of three adjoining cottages, occupies an enviable central position in one of West Suffolk’s most favoured villages. English quintessence in its absolute form with its picture-perfect colour washed elevations and windows finished in a French Grey hue. The three bedroom timber-framed home purportedly dates back to the reign of King Charles I and retains splendid period features and of particular note the Tudor brickwork and exposed studwork.
The practical ground level living space benefits from attractive pamment and brick floors with underfloor heating. Completely re-wired cleverly considered light fittings set the scene throughout and radiate a happy medium of ambient and accent lighting. A sense of cosiness hugs you as you enter the property brought about by the three exposed red brick hearths. The inviting large dual aspect sitting room enjoys the warmth of a newly installed wood burning stove. The sleek kitchen is the hub of the home with its chic black painted handcrafted cabinetry, a blend of granite contrasts with reclaimed locally felled solid Elm wood worktops. A focal point of this space is the black and stainless steel range cooker fitted in the recess of the former fireplace with extraction up the chimney. There is also a useful large separate utility room. The dining room has been fitted with repurposed designer steel shelving system. A mix of latch and stable-style doors lend beauty and function in equal measure.
The upstairs leads to three lovely bedrooms, uniquely each have built-in closets and all area served by a sumptuous bathroom suite fitted with a rain shower. There is a separate cloakroom. Both light sensor enabled. One of the bedrooms has lofty appeal accentuated by its vaulted aspect and a pair of dormer windows look out towards open-countryside views.
LOCATION & THE GREAT OUTDOORS
Conveniently located betwixt Bury St. Edmunds and Stowmarket (8 miles), the latter with its mainline rail connectivity, and south of the A14 to provide excellent access to the University City of Cambridge, heritage coastline and Central London via the A11/M11. Tanwood is quietly situated in the semi-rural village of Drinkstone while nearby Rattlesden offers a celebrated gastropub ‘The Brewers’ and many village amenities. The property is pleasantly set back from the road, in the vicinity of a babbling brook and enveloped by mature front and rear gardens. There is off-road parking for two vehicles and at the foot of the garden far-reaching panoramic countryside views. An additional asset is the calm inducing sanctuary of a garden studio.
PROVENANCE
Tanwood is the centre dwelling in a row of four timber framed cottages built during the reign of King Charles I in the mid 1600s. The chimney is constructed of fine Tudor bricks laid on a mortar bed of clay and the walls are wattle and daub. Originally two homes for a sucession of labouring families, it is now the largest cottage in the terrace. Fo most of the 19th century, the cottages were owned by three generations of the Bull family. In 1838, William Benett and Joseph Mansfield, both farm labourers, paid £3 per annum as tenants. In living memory the cottages shared a white gate and simple cottage gardens of vegetables and an apple tree planted each side of an ash path to their front doors which stood side by side. Two members of the local community were born in the cottage, Doug Bland - b.1920 and David Donaghy b.1942.
Drinkstone has a population of 589 (2021 census), situated in a 2243 acre pastoral parish and is mentioned in the Domesday Book of 1086. All Saints’ Church dates from the 14th century with a tower added circa 1760. The village is home to two redundant windmills and 35 listed buildings, the majority being timber-framed houses, farmhouses and barns.
Brochures
Tanwood, Drinkstone [Brochure] WHATLEY LANE.pdf- COUNCIL TAXA payment made to your local authority in order to pay for local services like schools, libraries, and refuse collection. The amount you pay depends on the value of the property.Read more about council Tax in our glossary page.
- Band: C
- PARKINGDetails of how and where vehicles can be parked, and any associated costs.Read more about parking in our glossary page.
- Yes
- GARDENA property has access to an outdoor space, which could be private or shared.
- Yes
- ACCESSIBILITYHow a property has been adapted to meet the needs of vulnerable or disabled individuals.Read more about accessibility in our glossary page.
- Ask agent
Drinkstone, Bury St. Edmunds
Add an important place to see how long it'd take to get there from our property listings.
__mins driving to your place
Get an instant, personalised result:
- Show sellers you’re serious
- Secure viewings faster with agents
- No impact on your credit score
Your mortgage
Notes
Staying secure when looking for property
Ensure you're up to date with our latest advice on how to avoid fraud or scams when looking for property online.
Visit our security centre to find out moreDisclaimer - Property reference 34267896. The information displayed about this property comprises a property advertisement. Rightmove.co.uk makes no warranty as to the accuracy or completeness of the advertisement or any linked or associated information, and Rightmove has no control over the content. This property advertisement does not constitute property particulars. The information is provided and maintained by Whatley Lane, Bury St Edmunds. Please contact the selling agent or developer directly to obtain any information which may be available under the terms of The Energy Performance of Buildings (Certificates and Inspections) (England and Wales) Regulations 2007 or the Home Report if in relation to a residential property in Scotland.
*This is the average speed from the provider with the fastest broadband package available at this postcode. The average speed displayed is based on the download speeds of at least 50% of customers at peak time (8pm to 10pm). Fibre/cable services at the postcode are subject to availability and may differ between properties within a postcode. Speeds can be affected by a range of technical and environmental factors. The speed at the property may be lower than that listed above. You can check the estimated speed and confirm availability to a property prior to purchasing on the broadband provider's website. Providers may increase charges. The information is provided and maintained by Decision Technologies Limited. **This is indicative only and based on a 2-person household with multiple devices and simultaneous usage. Broadband performance is affected by multiple factors including number of occupants and devices, simultaneous usage, router range etc. For more information speak to your broadband provider.
Map data ©OpenStreetMap contributors.
![Tanwood, Drinkstone [Front Elevation] 01 v2.jpg](https://media.rightmove.co.uk/dir/property-photo/873d3ceac/168657488/873d3ceac3ae357d34851a29e0042c8d_max_656x437.jpeg)
![Tanwood, Drinkstone [Sitting Room] 02 v2.jpg](https://media.rightmove.co.uk/dir/property-photo/9048b50a1/168657488/9048b50a1f6280a54aeedaec2c03254c_max_656x437.jpeg)
![Tanwood, Drinkstone [Kitchen] 02.jpg](https://media.rightmove.co.uk/dir/property-photo/1e09c78b5/168657488/1e09c78b57e9807b5c1e25f2b3e604cf_max_656x437.jpeg)
![Tanwood Cottage, Drinkstone [Floorplan] WHATLEY LA](https://media.rightmove.co.uk/dir/property-floorplan/3ff482663/168657488/3ff4826638c038d490abcb9cc0430084_max_296x197.jpeg)
