
UNIONIST BUILDING, Nicholas Street, Chester
- PROPERTY TYPE
Residential Development
- SIZE
13,765 sq ft
1,279 sq m
Key features
- Fully consented city centre development site in Chester
- Planning approved for 19 apartments and a ground floor commercial unit
- Scheme includes 6 affordable housing plots
- Prominent position on Nicholas Street at junction with Blackfriars
- Approx. 13,765 sq ft (GIA) across five floors with commanding city views
- Includes 10 secure car parking spaces
- Prominent location on Nicholas Street, close to River Dee and Racecourse
- Consent subject to completion of the Section 106 Agreement
Description
Chester
Chester is the principal city of Cheshire West and Chester and one of the strongest commercial, cultural, and university centres in the UK. A thriving business hub and leading tourist destination, the city combines rich Roman heritage with modern vibrancy.
Located 21 miles south of Liverpool and 35 miles south-west of Manchester, Chester benefits from excellent connectivity. The mainline railway station offers direct links to London, Manchester, and Liverpool, while the M56, M53, and A55 provide fast road access across the North West and into North Wales. Compact and walkable, Chester offers an outstanding lifestyle and investment environment.
Location
The property occupies a prominent position on Nicholas Street, Chester’s inner ring road, at the junction with Blackfriars. The area has seen significant urban improvements and is close to popular restaurants, the HQ Building with its hotel and offices, the River Dee, and Chester Racecourse.
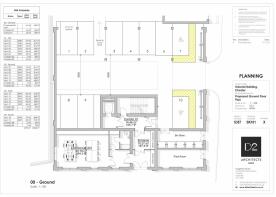
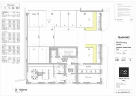
Property & Consented Scheme
Currently a two-storey concrete-framed building, the site is offered with vacant possession. The approved scheme by D2 Architects allows redevelopment to approx. 13,765 sq ft (GIA) across five floors, with the upper levels enjoying commanding views of the city. Planning reference - 23/03807/FUL
Key Features
* 19 apartments (8 x two-bed, 11 x one-bed)
* 6 affordable housing plots included
* Ground floor commercial unit
* 10 car parking spaces
* Approx. 13,765 sq ft (GIA) over five floors
* Prominent city centre location
* Planning consent subject to Section 106 Agreement being paid
* Excellent road and rail connectivity
1 -
2 -
3 -
4 -
5 -
6 -
7 -
8 -
Brochures
UNIONIST BUILDING, Nicholas Street, ChesterBrochureUNIONIST BUILDING, Nicholas Street, Chester
NEAREST STATIONS
Distances are straight line measurements from the centre of the postcode- Chester Station0.9 miles
- Bache Station1.5 miles
- Capenhurst Station5.4 miles
Notes
Disclaimer - Property reference 34253797. The information displayed about this property comprises a property advertisement. Rightmove.co.uk makes no warranty as to the accuracy or completeness of the advertisement or any linked or associated information, and Rightmove has no control over the content. This property advertisement does not constitute property particulars. The information is provided and maintained by Charles Louis Homes Limited, Ramsbottom. Please contact the selling agent or developer directly to obtain any information which may be available under the terms of The Energy Performance of Buildings (Certificates and Inspections) (England and Wales) Regulations 2007 or the Home Report if in relation to a residential property in Scotland.
Map data ©OpenStreetMap contributors.







