Jamieson Road, Liverpool, L15

Letting details
- Let available date:
- 08/07/2026
- Deposit:
- Ask agentA deposit provides security for a landlord against damage, or unpaid rent by a tenant.Read more about deposit in our glossary page.
- Min. Tenancy:
- Ask agent How long the landlord offers to let the property for.Read more about tenancy length in our glossary page.
- Furnish type:
- Furnished
- Council Tax:
- Ask agent
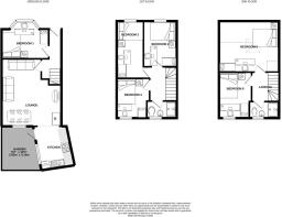
- BEDROOMS
6
- BATHROOMS
2
- SIZE
Ask agent
Key features
- Dining Table
- Dryer
- Flat Screen TV
- Wi-Fi
- Washer
- Desks
Description
2 Jamieson Road set in the highly sought-after Wavertree area of Liverpool is an attractive 6 bedroom property ideal for 2nd or 3rd year students. 2 Jamieson Road boasts 6 well furnished double bedrooms double beds, desk and chair and plenty of storage for your belongings. This large 6 bedroom property also has great communal space including, an expansive kitchen with high quality appliances and a dinner table to socialise with your housemates over dinner, a big shared living room complete with a flat screen tv and really comfortable seating, making this the perfect home to live in with friends. Living in 2 Jamieson Road Means you can look forward to relaxing and unwinding in a comfortable bedroom at the end of a long day, or make the most of the great communal spaces and socialise and have fun! Located on Jamieson Road is convenient as it is only one minute away from the nearest bus stop. The property is only 28 minutes by foot to The University of Liverpool and just a 7 minute walk to the closest supermarket.
* If you have selected "With Energy" please note that the energy is supplied by a third party, Huddle Utilities Limited, and is subject to further terms and conditions. The prices may vary and there may be additional charges based on your actual usage of energy.
- COUNCIL TAXA payment made to your local authority in order to pay for local services like schools, libraries, and refuse collection. The amount you pay depends on the value of the property.Read more about council Tax in our glossary page.
- Ask agent
- PARKINGDetails of how and where vehicles can be parked, and any associated costs.Read more about parking in our glossary page.
- Ask agent
- GARDENA property has access to an outdoor space, which could be private or shared.
- Ask agent
- ACCESSIBILITYHow a property has been adapted to meet the needs of vulnerable or disabled individuals.Read more about accessibility in our glossary page.
- Ask agent
Jamieson Road, Liverpool, L15
Add an important place to see how long it'd take to get there from our property listings.
__mins driving to your place
Notes
Staying secure when looking for property
Ensure you're up to date with our latest advice on how to avoid fraud or scams when looking for property online.
Visit our security centre to find out moreDisclaimer - Property reference 2086_EAF_54354. The information displayed about this property comprises a property advertisement. Rightmove.co.uk makes no warranty as to the accuracy or completeness of the advertisement or any linked or associated information, and Rightmove has no control over the content. This property advertisement does not constitute property particulars. The information is provided and maintained by Student Cribs, London. Please contact the selling agent or developer directly to obtain any information which may be available under the terms of The Energy Performance of Buildings (Certificates and Inspections) (England and Wales) Regulations 2007 or the Home Report if in relation to a residential property in Scotland.
*This is the average speed from the provider with the fastest broadband package available at this postcode. The average speed displayed is based on the download speeds of at least 50% of customers at peak time (8pm to 10pm). Fibre/cable services at the postcode are subject to availability and may differ between properties within a postcode. Speeds can be affected by a range of technical and environmental factors. The speed at the property may be lower than that listed above. You can check the estimated speed and confirm availability to a property prior to purchasing on the broadband provider's website. Providers may increase charges. The information is provided and maintained by Decision Technologies Limited. **This is indicative only and based on a 2-person household with multiple devices and simultaneous usage. Broadband performance is affected by multiple factors including number of occupants and devices, simultaneous usage, router range etc. For more information speak to your broadband provider.
Map data ©OpenStreetMap contributors.




