
Hanover Street, Brighton

Letting details
- Let available date:
- 21/08/2026
- Deposit:
- £3,874A deposit provides security for a landlord against damage, or unpaid rent by a tenant.Read more about deposit in our glossary page.
- Min. Tenancy:
- Ask agent How long the landlord offers to let the property for.Read more about tenancy length in our glossary page.
- Furnish type:
- Unfurnished
- Council Tax:
- Ask agent
- PROPERTY TYPE
Terraced
- BEDROOMS
5
- BATHROOMS
2
- SIZE
Ask agent
Key features
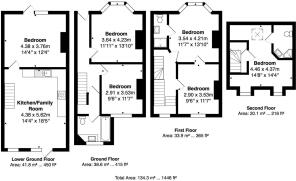
- FIVE DOUBLE BEDROOMS
- LARGE KITCHEN
- SEPERATE LIVING ROOM
- GREAT LOCATION
- UNFURNISHED
Description
Nestled in the vibrant heart of Brighton on Hanover Street, this spacious terraced house is an ideal residence for students seeking comfort and convenience. Boasting five generously sized double bedrooms, this property offers ample space for both relaxation and study. The top floor room features an ensuite bathroom, providing a private retreat for its occupant.
The newly fitted kitchen is a highlight of the home, designed to cater to the needs of modern living. It is perfect for preparing meals and socialising with friends. Additionally, the separate cosy living room offers a welcoming space to unwind after a long day, making it an excellent spot for gatherings or quiet evenings in.
This unfurnished house presents a blank canvas for tenants to personalise and make their own. Its prime location means that residents will enjoy easy access to local amenities, shops, and the vibrant culture that Brighton has to offer. Whether you are a group of students or professionals looking for a shared living space, this property is sure to meet your needs. Don't miss the opportunity to make this charming house your new home.
Kendrick Property Services are delighted to offer for let this modern & spacious five bedroom student house situated in the sought after location of Hanover. This property benefits from five good size double bedrooms, large fitted kitchen with appliances, separate living room, two contemporary bathrooms & downstairs WC, small patio garden, neutral decor throughout. UNFURNISHED. £135PPPW. (Bills Included option available, G,E,W) Ava - 14/08/2023
Brochures
Hanover Street, Brighton- COUNCIL TAXA payment made to your local authority in order to pay for local services like schools, libraries, and refuse collection. The amount you pay depends on the value of the property.Read more about council Tax in our glossary page.
- Band: C
- PARKINGDetails of how and where vehicles can be parked, and any associated costs.Read more about parking in our glossary page.
- Ask agent
- GARDENA property has access to an outdoor space, which could be private or shared.
- Yes
- ACCESSIBILITYHow a property has been adapted to meet the needs of vulnerable or disabled individuals.Read more about accessibility in our glossary page.
- Ask agent
Hanover Street, Brighton
Add an important place to see how long it'd take to get there from our property listings.
__mins driving to your place
Explore area BETA
Brighton
Get to know this area with AI-generated guides about local green spaces, transport links, restaurants and more.
Notes
Staying secure when looking for property
Ensure you're up to date with our latest advice on how to avoid fraud or scams when looking for property online.
Visit our security centre to find out moreDisclaimer - Property reference 34269270. The information displayed about this property comprises a property advertisement. Rightmove.co.uk makes no warranty as to the accuracy or completeness of the advertisement or any linked or associated information, and Rightmove has no control over the content. This property advertisement does not constitute property particulars. The information is provided and maintained by Kendrick Property Services, Brighton. Please contact the selling agent or developer directly to obtain any information which may be available under the terms of The Energy Performance of Buildings (Certificates and Inspections) (England and Wales) Regulations 2007 or the Home Report if in relation to a residential property in Scotland.
*This is the average speed from the provider with the fastest broadband package available at this postcode. The average speed displayed is based on the download speeds of at least 50% of customers at peak time (8pm to 10pm). Fibre/cable services at the postcode are subject to availability and may differ between properties within a postcode. Speeds can be affected by a range of technical and environmental factors. The speed at the property may be lower than that listed above. You can check the estimated speed and confirm availability to a property prior to purchasing on the broadband provider's website. Providers may increase charges. The information is provided and maintained by Decision Technologies Limited. **This is indicative only and based on a 2-person household with multiple devices and simultaneous usage. Broadband performance is affected by multiple factors including number of occupants and devices, simultaneous usage, router range etc. For more information speak to your broadband provider.
Map data ©OpenStreetMap contributors.








