Skip to content

1 bedroom apartment for sale

Sofia Region, Sofiya, Bulgaria

£173,074
Sofia In Ltd., Sofia
PROPERTY TYPE

Apartment

BEDROOMS

1

SIZE

852 sq ft

79 sq m

Description

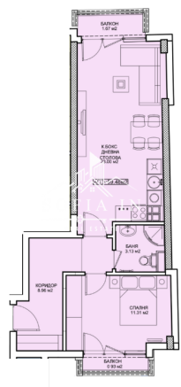
Ref. 25655 Sofia In / presents to your attention: Modern apartments from a developer in the heart of Sofia, on Klokotnitsa St. — new construction with a high-quality urban location and convenient transport links. The building is under construction and is sold with plaster and screed, which gives you the opportunity to design the interior to your own taste and use preferred materials. The building is close to the Lavov Most metro station, Central Railway Station and the Ramada Hotel. An investment offer with clear timelines and transparent conditions from a direct developer — an excellent choice for a personal home or an income property for rent. Contact us today for details, available units and the floor plan. IF YOU ARE INTERESTED YOU CAN CONTACT THE RESPONSIBLE CONSULTANT ABOUT PAYMENT METHODS AND FINANCING OF THE PURCHASE. We provide you with free assistance for a bank loan from our partner banks on preferential terms You have the option to reserve the property and take it off the market by paying a deposit. After that, viewings with other buyers are stopped and the preparation of documents for concluding a preliminary and final contract begins. Contact the responsible consultant for this listing for detailed information about the purchase procedure and the method of payment. For all our clients we provide free legal and notary support during the conclusion of the deal! ADDITIONAL SERVICES: We are a company that puts you, our clients, first; therefore, in addition to purchasing the property we offer you additional services that will make using your newly purchased property complete and trouble-free. The additional services we offer include: Interior design and furnishing planning; Execution of finishing and/or renovation works with a team of professionals; Complete furnishing with quality furniture at affordable prices; A full range of property management services for your property! You can view this and many other offers on our website: Ref. 25653 We look forward to seeing you!

Sofia Region, Sofiya, Bulgaria

NEAREST AIRPORTS

Distances are straight line measurements
  • Sofiya(International)
    4.9 miles
  • Plovdiv(International)
    89.5 miles

About Sofia In Ltd., Sofia

Sofia In is a fast-growing real estate company, established by professionals with many years of experience. The agency specializes in consulting and mediation, investment, property management, construction activities, interior design, and furnishing. Sofia In was founded by Vyara Todeva and Milen Tonev, opening its first office in Sofia on October 1, 2020.

Vyara Todeva is a lawyer who has held various positions in public administration, including Deputy Executive Director of the Registry Agency and Regional Governor of Sofia District, Bulgaria. Milen Tonev worked for 20 years in Italy, where he owned a business in logistics and office furnishing.

Sofia In operates in all segments of the real estate market. Clients are served with professionalism and standards inspired by best practices in property sales and rentals. The agency has established partnerships with numerous investors and developers in Bulgaria, with a particular focus on the sale of new-build properties. The aim is to provide high-quality service throughout all aspects of real estate transactions. All new-build properties are sold with no commission charged to the buyer, and full legal support is provided for all transactions free of charge to the client.

Currently, Sofia In has offices in Sofia, Sunny Beach, Blagoevgrad, and Dupnitsa, as well as representatives in Varna, Burgas, and Plovdiv.

One of the company’s key assets is its website, www.sofiain.com, which is well-positioned on Google for new-build properties and real estate in Sofia. Optimization is currently underway to expand its reach in other cities as well as Greece.

OUR TEAM

Sofia In has a team of highly qualified real estate consultants, lawyers, marketing specialists, and administrative assistants who provide professional and attentive service to clients. The company is managed from its main office in Sofia, where standardized procedures and a client service system have been implemented.

The team uses an Administrative Information System (AIS) that optimizes service delivery to clients.

Sofia In has developed its own training and professional development system. All new employees undergo an introductory training course to meet the agency's high standards. Well-trained professionals are the company's greatest asset, and investing in their growth is a core part of Sofia In’s corporate policy.

The founders and team members of Sofia In have extensive experience in the real estate field, with a track record of successful transactions. As the team grows, Sofia In continues to rely on its professional partners to deliver high-quality services.

OUR PARTNERS

Sofia In works closely with various companies and organizations across Bulgaria. These partnerships allow us to provide first-class services and continuously improve our operations. We collaborate successfully with investors, fellow agencies, IT companies, banks, and insurance providers. Clients have access to financing under preferential terms from our partner banks.

Services Provided by Sofia In

Sofia In is a fast-growing company in the real estate sector, specializing in consulting and mediation, investment, property management, construction, interior design, and furnishing.

For Buyers & Investors:

We offer comprehensive services — from identifying suitable properties to final ownership:

• Selection of properties from our database and national/international platforms;

• Property viewings with client accompaniment;

• Legal support and legal advice, including:

o Drafting documents for company registration;

o Registering foreign-owned entities;

• Title research and ownership security;

• Financial and tax consultation;

• Assistance with financing;

• Negotiation with sellers to secure the best price and terms;

• Preparation of full transaction documentation;

• Assistance with renovation or final construction works;

• Property cleaning services;

• Assistance with furnishing and equipping the property;

• After-sales support and property management.

For Sellers:

We provide a full range of marketing and sales services for property owners:

• Property valuation and price/conditions consultation;

• Professional presentation using the latest technologies;

• Advertising in real estate marketing channels, including in Russia and other countries;

• Active marketing to targeted buyer groups and professional networks;

• On-site property viewings with prospective buyers;

• Full legal support for the seller, including drafting of contracts and legal documents;

• Financial and tax consulting to optimize tax obligations;

• Preparation of sales documents and closing of transactions.

For Renters:

We offer complete rental services from selection to lease signing:

• Selection of rental properties from our database and real estate platforms;

• Property viewings with client accompaniment;

• Legal support and due diligence;

• Financial and tax consultation;

• Negotiation with landlords to secure favorable terms;

• Drafting of lease contracts and handover protocols;

• Assistance with renovations or repairs;

• Property cleaning services;

• Assistance with furnishing and equipping the rental unit.

For Landlords:

We offer full rental marketing and management services:

• Consultation on pricing and rental terms;

• Professional property presentation using modern technologies;

• Advertising through professional marketing channels;

• Active marketing to targeted groups and internal networks;

• Property viewings with prospective tenants;

• Full legal support, including lease agreements and protocols;

• Financial and tax advice.

Core Principles of Our Work

• Know-how and experience in every area of our services;

• A professional team with deep market knowledge and connections;

• Effective access to the most attractive offers on the market;

• Speed and reliability in meeting deadlines;

• Fast, accurate, and timely communication with every client.

Notes

These notes are private, only you can see them.

This is a property advertisement provided and maintained by Sofia In Ltd., Sofia (reference BG-25655) and does not constitute property particulars. Whilst we require advertisers to act with best practice and provide accurate information, we can only publish advertisements in good faith and have not verified any claims or statements or inspected any of the properties, locations or opportunities promoted. Rightmove does not own or control and is not responsible for the properties, opportunities, website content, products or services provided or promoted by third parties and makes no warranties or representations as to the accuracy, completeness, legality, performance or suitability of any of the foregoing. We therefore accept no liability arising from any reliance made by any reader or person to whom this information is made available to. You must perform your own research and seek independent professional advice before making any decision to purchase or invest in overseas property.

Email agent

Email agent