
3 bedroom end of terrace house for sale
1, Teare Close, Peel

- PROPERTY TYPE
End of Terrace
- BEDROOMS
3
- BATHROOMS
2
- SIZE
Ask agent
- TENUREDescribes how you own a property. There are different types of tenure - freehold, leasehold, and commonhold.Read more about tenure in our glossary page.
Ask agent
Key features
- Modern stylish end of terrace home situated in a sought after location of Peel
- Located within easy reach of Peel centre, the marina, shops, swimming pool, pubs, restaurants, promenade, beach and Peel Castle
- Offered for sale in superb condition with luxury fixtures and fittings throughout
- Occupying a desirable corner plot postion with green area to the side of the property
- Property enjoys the rare benefit of a large driveway to the side of the property with parking for around 4 cars
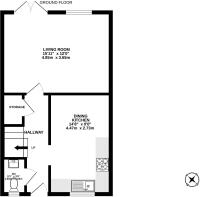
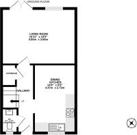
- Welcoming entrance hallway with storage cupboard and a cloakroom (WC)
- Stunning dining kitchen
- Living room with french doors to the rear garden
- 3 Bedrooms and a luxurious family bathroom
- Externally the rear garden is mainly laid to lawn
Description
This modern and beautifully presented end of terrace home is situated in a highly desirable area of Peel, within easy reach of the town centre, marina, shops, swimming pool, pubs, restaurants, promenade, beach, and the historic Peel Castle. Offered for sale in superb condition throughout, the property features luxury fixtures and fittings and provides an ideal home for a couple or growing family.
Occupying a desirable corner plot position with an attractive green area to the side, the home enjoys the rare benefit of a large driveway providing off-road parking for approximately four cars.
The light and welcoming accommodation comprises an entrance hallway with storage cupboard and cloakroom (WC), a stunning modern dining kitchen, and a spacious living room with French doors leading to the rear garden. Upstairs there are three well-proportioned bedrooms and a luxurious family bathroom.
Externally, the rear garden is mainly laid to lawn, offering a private and low-maintenance outdoor space perfect for relaxation or entertaining.
This is a fantastic opportunity to acquire a modern, stylish home in one of Peel’s most sought-after residential locations.
Inclusions All fitted floor coverings, blinds, and light fittings
Appliances Electric oven, 4-ring hob, fridge/freezer, washing machine and a dishwasher
Tenure Freehold
Rates Treasury tel -
Heating Gas
Windows uPVC double glazing
- COUNCIL TAXA payment made to your local authority in order to pay for local services like schools, libraries, and refuse collection. The amount you pay depends on the value of the property.Read more about council Tax in our glossary page.
- Ask agent
- PARKINGDetails of how and where vehicles can be parked, and any associated costs.Read more about parking in our glossary page.
- Yes
- GARDENA property has access to an outdoor space, which could be private or shared.
- Yes
- ACCESSIBILITYHow a property has been adapted to meet the needs of vulnerable or disabled individuals.Read more about accessibility in our glossary page.
- Ask agent
Energy performance certificate - ask agent
1, Teare Close, Peel
Add an important place to see how long it'd take to get there from our property listings.
__mins driving to your place
Get an instant, personalised result:
- Show sellers you’re serious
- Secure viewings faster with agents
- No impact on your credit score
Your mortgage
Notes
Staying secure when looking for property
Ensure you're up to date with our latest advice on how to avoid fraud or scams when looking for property online.
Visit our security centre to find out moreDisclaimer - Property reference 7012. The information displayed about this property comprises a property advertisement. Rightmove.co.uk makes no warranty as to the accuracy or completeness of the advertisement or any linked or associated information, and Rightmove has no control over the content. This property advertisement does not constitute property particulars. The information is provided and maintained by Garforth Gray, Isle of Man. Please contact the selling agent or developer directly to obtain any information which may be available under the terms of The Energy Performance of Buildings (Certificates and Inspections) (England and Wales) Regulations 2007 or the Home Report if in relation to a residential property in Scotland.
*This is the average speed from the provider with the fastest broadband package available at this postcode. The average speed displayed is based on the download speeds of at least 50% of customers at peak time (8pm to 10pm). Fibre/cable services at the postcode are subject to availability and may differ between properties within a postcode. Speeds can be affected by a range of technical and environmental factors. The speed at the property may be lower than that listed above. You can check the estimated speed and confirm availability to a property prior to purchasing on the broadband provider's website. Providers may increase charges. The information is provided and maintained by Decision Technologies Limited. **This is indicative only and based on a 2-person household with multiple devices and simultaneous usage. Broadband performance is affected by multiple factors including number of occupants and devices, simultaneous usage, router range etc. For more information speak to your broadband provider.
Map data ©OpenStreetMap contributors.






