2/2, 43 Durward Avenue, Waverley Park, G41 3UW

- PROPERTY TYPE
Flat
- BEDROOMS
2
- BATHROOMS
1
- SIZE
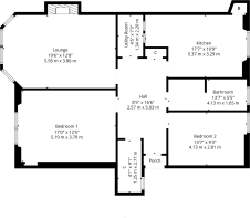
1,119 sq ft
104 sq m
- TENUREDescribes how you own a property. There are different types of tenure - freehold, leasehold, and commonhold.Read more about tenure in our glossary page.
Freehold
Key features
- Bay window lounge with views
- An array of period features
- Two double bedrooms
- Modern bathroom and dining kitchen
- Secure entrance system, gas central heating, double glazing
- Communal gardens
- Home report available to download from 'Web Details' below
Description
A bright and spacious top floor flat, set within an attractive red sandstone building in the desirable Waverley Park area of Glasgow's South Side. The property boasts a modern specification, yet has a number of period features such as cornicework, woodwork and stripped original floorboards.
Accessed via a secure entrance system into residents' common hall/stair well, the flat itself extends to entrance vestibule, traditional style reception hallway with storage cupboard adjacent and impressive bay windowed lounge with focal point fireplace, fantastic dining kitchen with integrated appliances, two large double bedrooms, and a main bathroom with white modern sanitaryware, separate shower enclosure and attractive tiling. The specification of the property includes a modern system of gas central heating with combi boiler, double glazed windows and the property is presented in modern decorative tones throughout. Externally, the subjects enjoy communal gardens with lane access and bin store.
EER Band - C
Local Area
The property is positioned within walking distance of shops and amenities upon Pollokshaws Road and Minard Road and further afield at Strathbungo where cosmopolitan cafes, restaurants and delicatessens are available. More extensive amenities are available at the Marks and Spencer's store at Queens Park, the Sainsburys Local on Darnley Road, the Morrisons store at Crossmyloof, Giffnock or Newlands and the shopping mall at Silverburn is a short drive to the West.
Recreational pursuits are varied in nearby Queen's Park where nature walks/trails, all-weather football pitches and tennis courts, a Glasshouse can be found.
Frequent public transport provides rapid commuter access to the city centre. Local railway station is approximately a 150 yard walk (Crossmyloof).
Brochures
Web Details- COUNCIL TAXA payment made to your local authority in order to pay for local services like schools, libraries, and refuse collection. The amount you pay depends on the value of the property.Read more about council Tax in our glossary page.
- Band: D
- PARKINGDetails of how and where vehicles can be parked, and any associated costs.Read more about parking in our glossary page.
- On street
- GARDENA property has access to an outdoor space, which could be private or shared.
- Communal garden
- ACCESSIBILITYHow a property has been adapted to meet the needs of vulnerable or disabled individuals.Read more about accessibility in our glossary page.
- Ask agent
Energy performance certificate - ask agent
2/2, 43 Durward Avenue, Waverley Park, G41 3UW
Add an important place to see how long it'd take to get there from our property listings.
__mins driving to your place
Get an instant, personalised result:
- Show sellers you’re serious
- Secure viewings faster with agents
- No impact on your credit score
Your mortgage
Notes
Staying secure when looking for property
Ensure you're up to date with our latest advice on how to avoid fraud or scams when looking for property online.
Visit our security centre to find out moreDisclaimer - Property reference SS5189. The information displayed about this property comprises a property advertisement. Rightmove.co.uk makes no warranty as to the accuracy or completeness of the advertisement or any linked or associated information, and Rightmove has no control over the content. This property advertisement does not constitute property particulars. The information is provided and maintained by Corum, Shawlands. Please contact the selling agent or developer directly to obtain any information which may be available under the terms of The Energy Performance of Buildings (Certificates and Inspections) (England and Wales) Regulations 2007 or the Home Report if in relation to a residential property in Scotland.
*This is the average speed from the provider with the fastest broadband package available at this postcode. The average speed displayed is based on the download speeds of at least 50% of customers at peak time (8pm to 10pm). Fibre/cable services at the postcode are subject to availability and may differ between properties within a postcode. Speeds can be affected by a range of technical and environmental factors. The speed at the property may be lower than that listed above. You can check the estimated speed and confirm availability to a property prior to purchasing on the broadband provider's website. Providers may increase charges. The information is provided and maintained by Decision Technologies Limited. **This is indicative only and based on a 2-person household with multiple devices and simultaneous usage. Broadband performance is affected by multiple factors including number of occupants and devices, simultaneous usage, router range etc. For more information speak to your broadband provider.
Map data ©OpenStreetMap contributors.







