Poplar Crescent, Gateshead, NE8

- PROPERTY TYPE
Terraced
- BEDROOMS
3
- BATHROOMS
1
- SIZE
Ask agent
- TENUREDescribes how you own a property. There are different types of tenure - freehold, leasehold, and commonhold.Read more about tenure in our glossary page.
Freehold
Key features
- Three Bedrooms
- Two Loft Rooms
- Period Terraced House
- Two Reception Rooms
- Requires Updating
- Garage
- Council Tax Band B
- EPC Rating F
Description
FOR SALE BY ONLINE AUCTION ENDING 26TH NOVEMBER 2025 AT 12:00PM. THE PROPERTY IS SOLD UNDER UNCONDITIONAL AUCTION TERMS AND CONDITIONS.
Offered for sale with NO ONWARD CHAIN is this substantial, period mid terraced home, which although in need of refurbishment, represents the perfect chance to put your own stamp on the property and tailor it to your tastes. Boasting some TRADITIONAL FEATURES and offering living space which includes two reception rooms, kitchen, three bedrooms and a spacious bathroom. Externally, there is an enclosed yard and GARAGE. The location offers convenient access to the wide range of amenities and facilities offered in and around Gateshead Town Centre whilst transport routes and services provide commuter links to the surrounding areas.
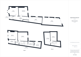
Entrance Hall
7.14m x 1.92m
Lounge
4.55m x 4.3m
Dining Room
4.35m x 4.3m
Kitchen
6.57m x 2.97m
First Floor Landing
3.7m x 2.53m
Bedroom One
4.44m x 4.32m
Bedroom Two
4.39m x 3.98m
Bedroom Three
3m x 2.23m
Bathroom
2.98m x 2.95m
Landing
2.18m x 1.82m
Loft Room 1
6.26m x 3.02m
Loft Room 2
4.22m x 2.96m
Garage
9.79m x 3.64m
Tenure
Sarah Mains Residential have been advised by the vendor that this property is freehold, although we have not seen any legal written confirmation to be able to confirm this. Please contact the branch if you have any queries in relation to the tenure before proceeding to purchase the property.
Property Information
Local Authority: Gateshead Flood Risk: This property is listed as currently having very low risk of flooding although we have not seen any legal written confirmation to be able to confirm this. Please contact the branch if you have any queries in relation to the flood risk before proceeding to purchase the property. TV and Broadband: BT, Virgin and Sky - Basic, Superfast, Ultrafast Mobile Network Coverage: EE, Vodafone, Three, O2 Please note, we have not seen any documentary evidence to be able to confirm the above information and recommend potential purchasers contact the relevant suppliers before proceeding to purchase the property.
Recording Devices
Please be aware that some properties may be equipped with CCTV, video doorbells, or other recording devices (including internal audio/video surveillance) for security purposes. While viewings are conducted in private homes, we ask that all attendees respect that the property owner may choose to monitor or record access to their home. If you have any concerns regarding this, please speak to a member of our team prior to your appointment. We have advised all vendors that any recording during viewings should be disclosed and used strictly for personal purposes only, in accordance with data protection and privacy laws.
Terms & Timescales
This property is being sold subject to unconditional purchase premium auction terms and conditions. Immediate exchange of contracts. Completion must take place within 28 days.
Legal Pack
A legal pack is available for this property. We strongly advise all potential bidders thoroughly read through the legal pack prior to bidding, paying particular attention to the special conditions. If you are unsure of anything contained within the pack, please consult a legal representative.
Deposit
In order to secure the purchase a buyer will pay a deposit of 5% (subject to a minimum of £3,000) which contributes towards the overall purchase price of the property. The deposit is non-refundable.
Buyer Fees
This property is sold subject to a non-refundable purchase premium of 2.4% inc VAT, subject to a minimum of £3000 inc VAT. This does not form part of the purchase price.
More Information
For further information please contact our auction department on or email
ONLINE AUCTION NOTICE
I hereby acknowledge and confirm the following: Once placed, my bid cannot be withdrawn and will stand until 2 hours after the auction closes. My bid may be accepted by the seller at any time before the close of the auction. I have read and understood the terms of the auction and my bid is placed accordingly. I have read and understood the legal pack applicable to this property and I understand that I am bound by the special conditions contained within. If my bid is successful at any point from now until up to 2 hours after the auction closes, I shall be bound by the lot terms and conditions as advertised online. The auction will continue to run if there is a bid within 10 minutes of the closing time. After 10 minutes without a bid, providing the reserve price has been met, the highest bidder will be successful. If there is another bid within 10 minutes of the last bid, the auction countdown timer will be restarted for another 10 minutes to allow further bidding. This (truncated)
- COUNCIL TAXA payment made to your local authority in order to pay for local services like schools, libraries, and refuse collection. The amount you pay depends on the value of the property.Read more about council Tax in our glossary page.
- Band: B
- PARKINGDetails of how and where vehicles can be parked, and any associated costs.Read more about parking in our glossary page.
- Yes
- GARDENA property has access to an outdoor space, which could be private or shared.
- Yes
- ACCESSIBILITYHow a property has been adapted to meet the needs of vulnerable or disabled individuals.Read more about accessibility in our glossary page.
- Ask agent
Energy performance certificate - ask agent
Poplar Crescent, Gateshead, NE8
Add an important place to see how long it'd take to get there from our property listings.
__mins driving to your place
Get an instant, personalised result:
- Show sellers you’re serious
- Secure viewings faster with agents
- No impact on your credit score
Your mortgage
Notes
Staying secure when looking for property
Ensure you're up to date with our latest advice on how to avoid fraud or scams when looking for property online.
Visit our security centre to find out moreDisclaimer - Property reference LOW251336. The information displayed about this property comprises a property advertisement. Rightmove.co.uk makes no warranty as to the accuracy or completeness of the advertisement or any linked or associated information, and Rightmove has no control over the content. This property advertisement does not constitute property particulars. The information is provided and maintained by Sarah Mains, Auction. Please contact the selling agent or developer directly to obtain any information which may be available under the terms of The Energy Performance of Buildings (Certificates and Inspections) (England and Wales) Regulations 2007 or the Home Report if in relation to a residential property in Scotland.
Auction Fees: The purchase of this property may include associated fees not listed here, as it is to be sold via auction. To find out more about the fees associated with this property please call Sarah Mains, Auction on 0191 487 0011.
*Guide Price: An indication of a seller's minimum expectation at auction and given as a Guide Price or a range of Guide Prices. This is not necessarily the figure a property will sell for and is subject to change prior to the auction.
Reserve Price: Each auction property will be subject to a Reserve Price below which the property cannot be sold at auction. Normally the Reserve Price will be set within the range of Guide Prices or no more than 10% above a single Guide Price.
*This is the average speed from the provider with the fastest broadband package available at this postcode. The average speed displayed is based on the download speeds of at least 50% of customers at peak time (8pm to 10pm). Fibre/cable services at the postcode are subject to availability and may differ between properties within a postcode. Speeds can be affected by a range of technical and environmental factors. The speed at the property may be lower than that listed above. You can check the estimated speed and confirm availability to a property prior to purchasing on the broadband provider's website. Providers may increase charges. The information is provided and maintained by Decision Technologies Limited. **This is indicative only and based on a 2-person household with multiple devices and simultaneous usage. Broadband performance is affected by multiple factors including number of occupants and devices, simultaneous usage, router range etc. For more information speak to your broadband provider.
Map data ©OpenStreetMap contributors.







