Hutton Avenue, Hartlepool, Durham, TS26 9PW

- PROPERTY TYPE
- Semi-Detached 
- BEDROOMS
- 5 
- BATHROOMS
- 2 
- SIZE
- Ask agent 
- TENUREDescribes how you own a property. There are different types of tenure - freehold, leasehold, and commonhold.Read more about tenure in our glossary page.
- Freehold 
Key features
- 5 Double Bedrooms
- 3 Reception Rooms
- 2.5 Bathrooms
- Beautiful Family Bathroom
- Extensive South Garden
- Double Length Garage
- Period Charm Meets Modern Comfort
Description
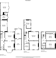
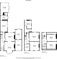
Pattinson Estate Agents are delighted to present this exquisite five-bedroom period residence, perfectly combining timeless character with contemporary luxury. Spanning approximately 2,368 sq ft across three floors, this remarkable home offers a rare blend of space, style, and sophistication.
At the heart of the property lies a stunning bespoke kitchen, featuring sleek white cabinetry, herringbone flooring, and generous natural light—creating a space that is both elegant and functional. A separate utility room and ground-floor W/C enhance practicality for family living.
The home benefits from three beautifully appointed reception rooms, each radiating warmth and personality. The inviting lounge provides a cosy retreat, the formal dining room is ideal for entertaining guests, and the charming conservatory—with its log-burning stove—offers serene views over the south-facing gardens.
To the first floor, three spacious double bedrooms include an impressive 210 sq ft principal suite, complemented by a luxurious family bathroom with a four-piece suite comprising a freestanding bath, twin sinks, and a spa-style walk-in shower, accentuated by elegant period detailing.
The second floor features two additional double bedrooms, a stylish shower room, and a versatile landing area ideal for storage or a reading nook.
Externally, the property boasts extensive landscaped gardens, abundant with mature planting and multiple seating areas—perfect for outdoor dining and relaxation. A double-length attached garage and large driveway offer ample off-street parking.
With its seamless fusion of period grace and modern living, this exceptional home represents a rare opportunity to own a distinguished property in one of Hartlepool’s most sought-after locations.
Viewing is highly recommended.
Council Tax Band: D
Tenure: Freehold
Brochures
Brochure- COUNCIL TAXA payment made to your local authority in order to pay for local services like schools, libraries, and refuse collection. The amount you pay depends on the value of the property.Read more about council Tax in our glossary page.
- Band: D
- PARKINGDetails of how and where vehicles can be parked, and any associated costs.Read more about parking in our glossary page.
- Yes
- GARDENA property has access to an outdoor space, which could be private or shared.
- Yes
- ACCESSIBILITYHow a property has been adapted to meet the needs of vulnerable or disabled individuals.Read more about accessibility in our glossary page.
- Ask agent
Hutton Avenue, Hartlepool, Durham, TS26 9PW
Add an important place to see how long it'd take to get there from our property listings.
__mins driving to your place
Get an instant, personalised result:
- Show sellers you’re serious
- Secure viewings faster with agents
- No impact on your credit score
Your mortgage
Notes
Staying secure when looking for property
Ensure you're up to date with our latest advice on how to avoid fraud or scams when looking for property online.
Visit our security centre to find out moreDisclaimer - Property reference 496690. The information displayed about this property comprises a property advertisement. Rightmove.co.uk makes no warranty as to the accuracy or completeness of the advertisement or any linked or associated information, and Rightmove has no control over the content. This property advertisement does not constitute property particulars. The information is provided and maintained by Pattinson Estate Agents, Peterlee. Please contact the selling agent or developer directly to obtain any information which may be available under the terms of The Energy Performance of Buildings (Certificates and Inspections) (England and Wales) Regulations 2007 or the Home Report if in relation to a residential property in Scotland.
*This is the average speed from the provider with the fastest broadband package available at this postcode. The average speed displayed is based on the download speeds of at least 50% of customers at peak time (8pm to 10pm). Fibre/cable services at the postcode are subject to availability and may differ between properties within a postcode. Speeds can be affected by a range of technical and environmental factors. The speed at the property may be lower than that listed above. You can check the estimated speed and confirm availability to a property prior to purchasing on the broadband provider's website. Providers may increase charges. The information is provided and maintained by Decision Technologies Limited. **This is indicative only and based on a 2-person household with multiple devices and simultaneous usage. Broadband performance is affected by multiple factors including number of occupants and devices, simultaneous usage, router range etc. For more information speak to your broadband provider.
Map data ©OpenStreetMap contributors.





