
4 bedroom semi-detached house for sale
Olive Road, NW2

- PROPERTY TYPE
Semi-Detached
- BEDROOMS
4
- BATHROOMS
1
- SIZE
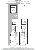
1,761 sq ft
164 sq m
- TENUREDescribes how you own a property. There are different types of tenure - freehold, leasehold, and commonhold.Read more about tenure in our glossary page.
Ask agent
Key features
- Four bedroom semi detached period home on Olive Road
- Just under 2,000 sq ft including the outbuilding
- South facing garden extending to around 23 metres
- Two large reception rooms and a separate dining room
- Scope to extend and reconfigure, subject to planning
- High ceilings and original features throughout
- Well maintained outbuilding included in the title
- Family friendly layout with good natural light
- Close to Gladstone Park, local cafés and amenities
- Convenient for Cricklewood Thameslink and Willesden Green station
Description
GUIDE PRICE: £1,100,000 TO £1,200,000
A four bedroom period house on Olive Road offering just under 2,000 square feet of accommodation including the outbuilding. Lovingly owned by the same family for over 45 years, the property sits on a wide plot with a 23 metre south facing garden and offers strong scope to add further space subject to planning.
The ground floor offers two generous reception rooms, a separate dining room and a separate kitchen, with direct access to the garden from the rear reception room and the kitchen. High ceilings and some original features including fireplaces are retained throughout, providing an authentic period layout and sense of scale. A well built outbuilding sits at the far end of the garden and is included in the overall floor area.
On the first floor there are four well proportioned bedrooms and two bathrooms. The house presents clear potential for a side return and a loft conversion subject to the necessary permissions, allowing a buyer to adapt the space for contemporary family living.
Outside, the south facing garden receives good light through the day and provides a private outdoor area for children and gardening. The property is offered freehold. Parking arrangements can be confirmed with the selling agent.
Olive Road is a community focused street close to Gladstone Park and local amenities. Cricklewood Library is nearby and there are a number of primary schools in the area including Anson and Mora. Transport links are convenient with Cricklewood Thameslink and Willesden Green station on the Jubilee line within easy reach, and West Hampstead connections also close by.
A rare opportunity to acquire a substantial period family home in NW2 with immediate potential to extend and improve.
Brochures
Brochure 1- COUNCIL TAXA payment made to your local authority in order to pay for local services like schools, libraries, and refuse collection. The amount you pay depends on the value of the property.Read more about council Tax in our glossary page.
- Ask agent
- PARKINGDetails of how and where vehicles can be parked, and any associated costs.Read more about parking in our glossary page.
- Yes
- GARDENA property has access to an outdoor space, which could be private or shared.
- Private garden
- ACCESSIBILITYHow a property has been adapted to meet the needs of vulnerable or disabled individuals.Read more about accessibility in our glossary page.
- Ask agent
Olive Road, NW2
Add an important place to see how long it'd take to get there from our property listings.
__mins driving to your place
Get an instant, personalised result:
- Show sellers you’re serious
- Secure viewings faster with agents
- No impact on your credit score
Your mortgage
Notes
Staying secure when looking for property
Ensure you're up to date with our latest advice on how to avoid fraud or scams when looking for property online.
Visit our security centre to find out moreDisclaimer - Property reference S1485179. The information displayed about this property comprises a property advertisement. Rightmove.co.uk makes no warranty as to the accuracy or completeness of the advertisement or any linked or associated information, and Rightmove has no control over the content. This property advertisement does not constitute property particulars. The information is provided and maintained by Lampards, Queens Park. Please contact the selling agent or developer directly to obtain any information which may be available under the terms of The Energy Performance of Buildings (Certificates and Inspections) (England and Wales) Regulations 2007 or the Home Report if in relation to a residential property in Scotland.
*This is the average speed from the provider with the fastest broadband package available at this postcode. The average speed displayed is based on the download speeds of at least 50% of customers at peak time (8pm to 10pm). Fibre/cable services at the postcode are subject to availability and may differ between properties within a postcode. Speeds can be affected by a range of technical and environmental factors. The speed at the property may be lower than that listed above. You can check the estimated speed and confirm availability to a property prior to purchasing on the broadband provider's website. Providers may increase charges. The information is provided and maintained by Decision Technologies Limited. **This is indicative only and based on a 2-person household with multiple devices and simultaneous usage. Broadband performance is affected by multiple factors including number of occupants and devices, simultaneous usage, router range etc. For more information speak to your broadband provider.
Map data ©OpenStreetMap contributors.






