3 bedroom flat for sale
Stanley Road, East Sheen, SW14

- PROPERTY TYPE
Flat
- BEDROOMS
3
- BATHROOMS
2
- SIZE
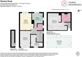
1,015 sq ft
94 sq m
Key features
- Three Bedrooms
- Two Bathrooms
- Separate Reception Room
- Modern Dual Aspect Kitchen
- Leasehold | EPC C | Council Tax Band D
- Easy Access To Local Train Stations
- Sheen Mount Primary School
- Parkside Location
- Private West Facing Garden
- In Excess of 1,000 Sqft
Description
The accommodation benefits from its own independent entrance, opening into a welcoming hallway. Inside, the property features a contemporary, fully equipped kitchen, a stylish reception room, two well-proportioned bedrooms, and a modern family bathroom. Stairs lead to a generously sized principal bedroom complete with a sleek en-suite shower room. Externally, the apartment is set back behind attractive and well-maintained communal gardens. To the rear, the property boasts a private west-facing garden that is perfect for outdoor dining and relaxation.
Stanley Road is a charming Parkside address located between Temple Sheen Road and Upper Richmond Road. Sheen Mount Primary School, The Victoria Gastropub, Sheen Common, and a wide array of shops, restaurants, and excellent transport links are all within easy reach.
Tenure: Leasehold
Service charge: £adhoc (Shared as and when)
Ground rent: £0
Brochures
Stanley Road, East Sheen, SW14- COUNCIL TAXA payment made to your local authority in order to pay for local services like schools, libraries, and refuse collection. The amount you pay depends on the value of the property.Read more about council Tax in our glossary page.
- Ask agent
- PARKINGDetails of how and where vehicles can be parked, and any associated costs.Read more about parking in our glossary page.
- Ask agent
- GARDENA property has access to an outdoor space, which could be private or shared.
- Ask agent
- ACCESSIBILITYHow a property has been adapted to meet the needs of vulnerable or disabled individuals.Read more about accessibility in our glossary page.
- Ask agent
Stanley Road, East Sheen, SW14
Add an important place to see how long it'd take to get there from our property listings.
__mins driving to your place
Get an instant, personalised result:
- Show sellers you’re serious
- Secure viewings faster with agents
- No impact on your credit score



Your mortgage
Notes
Staying secure when looking for property
Ensure you're up to date with our latest advice on how to avoid fraud or scams when looking for property online.
Visit our security centre to find out moreDisclaimer - Property reference 34046700. The information displayed about this property comprises a property advertisement. Rightmove.co.uk makes no warranty as to the accuracy or completeness of the advertisement or any linked or associated information, and Rightmove has no control over the content. This property advertisement does not constitute property particulars. The information is provided and maintained by James Anderson, East Sheen - sales. Please contact the selling agent or developer directly to obtain any information which may be available under the terms of The Energy Performance of Buildings (Certificates and Inspections) (England and Wales) Regulations 2007 or the Home Report if in relation to a residential property in Scotland.
*This is the average speed from the provider with the fastest broadband package available at this postcode. The average speed displayed is based on the download speeds of at least 50% of customers at peak time (8pm to 10pm). Fibre/cable services at the postcode are subject to availability and may differ between properties within a postcode. Speeds can be affected by a range of technical and environmental factors. The speed at the property may be lower than that listed above. You can check the estimated speed and confirm availability to a property prior to purchasing on the broadband provider's website. Providers may increase charges. The information is provided and maintained by Decision Technologies Limited. **This is indicative only and based on a 2-person household with multiple devices and simultaneous usage. Broadband performance is affected by multiple factors including number of occupants and devices, simultaneous usage, router range etc. For more information speak to your broadband provider.
Map data ©OpenStreetMap contributors.




