
East Lodge, Swarraton, Alresford

- PROPERTY TYPE
Detached
- BEDROOMS
4
- BATHROOMS
2
- SIZE
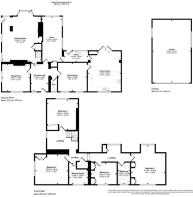
2,532 sq ft
235 sq m
- TENUREDescribes how you own a property. There are different types of tenure - freehold, leasehold, and commonhold.Read more about tenure in our glossary page.
Freehold
Key features
- Individual Character Home
- Private Location adjoining The Grange Estate
- Rural Location to the North of Alresford
- Plenty of Versatile Accommodation
- Large Garden and Separate Paddock
- Detached Double Garage and Parking Area
- Approx 1.4 acres in total
Description
An exceptional period property tucked away in a tranquil and secluded location adjoining The Grange Estate to the north of Alresford. This individual period home is set on its own amongst beautiful parkland and countryside. It adjoins The Grange, an historic Grade 1 listed building, which hosts a well-known annual opera season. Dating from 1830, East Lodge has many character features include ornate chimneys, open fires, high ceilings and generously proportioned rooms.
A gate in the wall opens to a path leading to the front door. The reception hall leads through to a light and airy drawing room with lovely views of the garden. The adjoining study/family room also enjoys views of the garden. The sitting room and separate dining room are located off the reception hall. A door from the dining room leads through to the spacious kitchen/breakfast room, featuring a range of fitted kitchen units and worktops. French doors open to the garden, and a further door leads to the utility room.
Upstairs, there are four double bedrooms, a bathroom and shower room, with a long interconnecting landing. A hatch allows access to the large loft.
The wonderful, private garden wraps around the house and includes a mixture of lawns, mature trees and planting. Across the lane, there is a double garage and parking area, as well as a fenced paddock. The plot is around 1.4 acres in total.
Swarraton is located just a short drive north of the market town of Alresford and is within an easy walk of The Grange, famous for its annual operatic performances. For lovers of the countryside, this is an idyllic part of Hampshire with beautiful scenery all around. There are excellent walks from the door, and nearby is The Woolpack Inn, which is much favoured by both locals and visitors alike. There are riding stables nearby.
Alresford is a beautiful Georgian town known for its variety of independent shops, restaurants and inns located in stunning surroundings on the edge of the South Downs National Park. Attractions include the Watercress steam railway, schools for infant, junior and secondary education, several churches and an active and inclusive community. The cathedral city of Winchester is about 8 miles away and there is easy access to the south coast, the midlands and London via the road network. There is also mainline rail access to London from both Winchester and Alton. Southampton airport is only about half an hour away by car.
SERVICES
We understand that mains water and electricity are connected. There is oil-fired central heating and private drainage.
LOCAL AUTHORITY INFORMATION
Winchester City Council
Council Tax Band: G
- COUNCIL TAXA payment made to your local authority in order to pay for local services like schools, libraries, and refuse collection. The amount you pay depends on the value of the property.Read more about council Tax in our glossary page.
- Band: G
- PARKINGDetails of how and where vehicles can be parked, and any associated costs.Read more about parking in our glossary page.
- Garage
- GARDENA property has access to an outdoor space, which could be private or shared.
- Private garden
- ACCESSIBILITYHow a property has been adapted to meet the needs of vulnerable or disabled individuals.Read more about accessibility in our glossary page.
- Ask agent
East Lodge, Swarraton, Alresford
Add an important place to see how long it'd take to get there from our property listings.
__mins driving to your place
Get an instant, personalised result:
- Show sellers you’re serious
- Secure viewings faster with agents
- No impact on your credit score
Your mortgage
Notes
Staying secure when looking for property
Ensure you're up to date with our latest advice on how to avoid fraud or scams when looking for property online.
Visit our security centre to find out moreDisclaimer - Property reference S1454091. The information displayed about this property comprises a property advertisement. Rightmove.co.uk makes no warranty as to the accuracy or completeness of the advertisement or any linked or associated information, and Rightmove has no control over the content. This property advertisement does not constitute property particulars. The information is provided and maintained by Hellards Estate Agents, Alresford. Please contact the selling agent or developer directly to obtain any information which may be available under the terms of The Energy Performance of Buildings (Certificates and Inspections) (England and Wales) Regulations 2007 or the Home Report if in relation to a residential property in Scotland.
*This is the average speed from the provider with the fastest broadband package available at this postcode. The average speed displayed is based on the download speeds of at least 50% of customers at peak time (8pm to 10pm). Fibre/cable services at the postcode are subject to availability and may differ between properties within a postcode. Speeds can be affected by a range of technical and environmental factors. The speed at the property may be lower than that listed above. You can check the estimated speed and confirm availability to a property prior to purchasing on the broadband provider's website. Providers may increase charges. The information is provided and maintained by Decision Technologies Limited. **This is indicative only and based on a 2-person household with multiple devices and simultaneous usage. Broadband performance is affected by multiple factors including number of occupants and devices, simultaneous usage, router range etc. For more information speak to your broadband provider.
Map data ©OpenStreetMap contributors.








