
Clos Penglyn, Pencoed, Bridgend

- PROPERTY TYPE
Detached
- BEDROOMS
4
- BATHROOMS
3
- SIZE
1,326 sq ft
123 sq m
- TENUREDescribes how you own a property. There are different types of tenure - freehold, leasehold, and commonhold.Read more about tenure in our glossary page.
Freehold
Key features
- 4 Bedroom Detached Property
- Off Road Parking
- En Suite Bathroom
- Spacious Living Room
- Integral Garage
- Popular Cul De Sac Location
- Close to Public Transport Links
- EPC: D
Description
The accommodation briefly comprises a spacious entrance hallway with a double cloaks cupboard. The front-facing living room features a bay window overlooking the front garden, while the separate dining room enjoys views over the rear garden. The kitchen is well-equipped and includes a gas hob and electric oven. A utility room to the rear provides access to the garden, an internal door to the garage, and access to a ground floor bathroom. Upstairs, the master bedroom benefits from an en-suite bathroom and views over the rear garden. There is a further double bedroom to the front, along with two single bedrooms and a family bathroom.
Externally, the property offers a lawned front garden and driveway parking. Gated access to both sides leads to a generous rear garden.
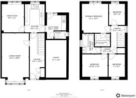
Accommodation -
Ground Floor -
Entrance Hallway - 1.93m x 5.87m (6'4 x 19'3) - The property is entered via a solid wood front door with obscure glazed vision panels to side, through into hallway. Skimmed walls with dado rail. Coved and textured ceiling. Pendant ceiling light. Fitted carpet. Fitted radiator. Double doors to storage cupboard. Stairs lead up to first floor landing.
Living Room - 3.51m x 6.25m (11'6 x 20'6) - UPVC double glazed bay window to front. Skimmed walls. Textured ceiling. Pendant ceiling light. Carpeted flooring. Fitted radiator.
Kitchen - 2.57m x 3.66m (8'5 x 12') - Fitted kitchen with features to include: a range of wall and base units set under and over wood effect worktop. 1.5 sink bowl and drainer with chrome mixer tap. Electric oven with four ring gas hob over. Extractor hood. Space for undercounter dishwasher. Space for undercounter fridge. Extractor fan. Skimmed walls. Coved and textured ceilings. Ceiling strip light. Tiled flooring. Fitted radiator. UPVC double glazed window to rear. Door to utility and dining room.
Dining Room - 2.87m x 3.66m (9'5 x 12') - UPVC double glazed window to rear. Papered walls. Coved and textured ceiling. Pendant ceiling light. Carpet flooring. Fitted radiator.
Utility Room - 2.67m x 3.25m (8'9 x 10'8) - Fitted base unit set under wood effect worktop. Stainless steel 1.5 sink bowl and drainer with mixer tap. Space for washing machine. Space for tumble dryer. Tiled flooring. Part tiled walls. Further skimmed walls. Textured ceiling. Pendant ceiling light. Fitted radiator. Pedestrian door leads out to rear garden. Further window to rear. Door to WC and internal garage.
Wc - 1.52m x 0.97m (5' x 3'2) - Two piece suite comprising low level WC. Wall hung wash hand basin with hot and cold taps and tiled splashback. Tiled flooring. Skimmed walls. Textured ceiling. Obscure glazed window to side. Pendant ceiling light. Fitted radiator.
First Floor -
Landing - Straight run of carpet staircase from ground floor to first floor landing. Skimmed walls with dado rail. Textured ceiling. Two pendant ceiling lights. Storage cupboard. UPVC double glazed window to side elevation. Communicating doors to all first floor rooms.
Master Bedroom - 3.66m x 3.76m (12' x 12'4) - UPVC double glazed window to rear. Skimmed walls. Textured ceiling. Pendant ceiling light. Carpet flooring. Fitted radiator.
En Suite - 2.01m x 1.68m (6'7 x 5'6) - Three piece suite in white comprising panelled bath with hot and cold mixer tap. Low level WC. Pedestal wash hand basin with hot and cold taps. Tiled splashback. Further skimmed walls. Textured ceiling. Pendant ceiling light. Fitted carpet.
Bedroom Two - 3.30m x 2.92m (10'10 x 9'7) - UPVC double glazed window to front. Skimmed and papered walls. Textured ceiling. Pendant ceiling light. Carpet flooring. Fitted radiator.
Bedroom Three - 2.13m x 2.92m (7' x 9'7) - UPVC double glazed window to front. Skimmed and papered walls. Textured ceiling. Pendant ceiling light. Carpet flooring. Fitted radiator.
Bedroom Four - 2.06m x 2.74m (6'9 x 9) - UPVC double glazed window to rear. Skimmed and papered walls. Textured ceiling. Pendant ceiling light. Carpet flooring. Fitted radiator.
Bathroom - 2.36m x 2.57m (7'9 x 8'5) - Three piece suite comprising panelled bath with electric shower and shower head fitment, and hot and cold mixer tap. Low level WC. Wash hand basin with hot and cold taps. Tiled splashback. Further skimmed walls. Textured ceiling. Pendant ceiling light. LVT wood effect flooring. Fitted radiator.
Outside - The front of the property offers off road parking with access to the internal garage. Small parcel of lawn to the front. The rear of the property has an area laid to patio great for outside entertaining and ease of maintenance.
Integrated Garage - Up and over garage door. Power and light.
Services - Mains services throughout. Freehold.
Brochures
Clos Penglyn, Pencoed, BridgendBrochure- COUNCIL TAXA payment made to your local authority in order to pay for local services like schools, libraries, and refuse collection. The amount you pay depends on the value of the property.Read more about council Tax in our glossary page.
- Band: E
- PARKINGDetails of how and where vehicles can be parked, and any associated costs.Read more about parking in our glossary page.
- Garage
- GARDENA property has access to an outdoor space, which could be private or shared.
- Yes
- ACCESSIBILITYHow a property has been adapted to meet the needs of vulnerable or disabled individuals.Read more about accessibility in our glossary page.
- Ask agent
Clos Penglyn, Pencoed, Bridgend
Add an important place to see how long it'd take to get there from our property listings.
__mins driving to your place
Get an instant, personalised result:
- Show sellers you’re serious
- Secure viewings faster with agents
- No impact on your credit score
Your mortgage
Notes
Staying secure when looking for property
Ensure you're up to date with our latest advice on how to avoid fraud or scams when looking for property online.
Visit our security centre to find out moreDisclaimer - Property reference 34272988. The information displayed about this property comprises a property advertisement. Rightmove.co.uk makes no warranty as to the accuracy or completeness of the advertisement or any linked or associated information, and Rightmove has no control over the content. This property advertisement does not constitute property particulars. The information is provided and maintained by Harris & Birt, Cowbridge. Please contact the selling agent or developer directly to obtain any information which may be available under the terms of The Energy Performance of Buildings (Certificates and Inspections) (England and Wales) Regulations 2007 or the Home Report if in relation to a residential property in Scotland.
*This is the average speed from the provider with the fastest broadband package available at this postcode. The average speed displayed is based on the download speeds of at least 50% of customers at peak time (8pm to 10pm). Fibre/cable services at the postcode are subject to availability and may differ between properties within a postcode. Speeds can be affected by a range of technical and environmental factors. The speed at the property may be lower than that listed above. You can check the estimated speed and confirm availability to a property prior to purchasing on the broadband provider's website. Providers may increase charges. The information is provided and maintained by Decision Technologies Limited. **This is indicative only and based on a 2-person household with multiple devices and simultaneous usage. Broadband performance is affected by multiple factors including number of occupants and devices, simultaneous usage, router range etc. For more information speak to your broadband provider.
Map data ©OpenStreetMap contributors.





