One Putney, 2 Monserrat Road, London, SW15 2LA

Letting details
- Let available date:
- Now
- Deposit:
- Ask agentA deposit provides security for a landlord against damage, or unpaid rent by a tenant.Read more about deposit in our glossary page.
- Min. Tenancy:
- Ask agent How long the landlord offers to let the property for.Read more about tenancy length in our glossary page.
- Let type:
- Long term
- Furnish type:
- Furnished
- Council Tax:
- Ask agent
- PROPERTY TYPE
Flat
- BEDROOMS
2
- BATHROOMS
2
- SIZE
Ask agent
Key features
- Private parking space available for additional £100pcm
- Communal Terrace on the 1st floor
- Private secure storage lockers
- Secure Video Entry
- Fully furnished
- Available ASAP!
- *No 5 weeks deposit required*
Description
One Putney benefits from a private entrance off Montserrat Road with secure video entry, a communal terrace located on the first floor, secure bicycle storage on the ground floor, noise and energy reducing triple glazing and private secure storage lockers in the basement. Putney is firmly established as a commuter hub, with excellent transport links across London by rail, road and river. Putney Overground is three minutes’ walk and East Putney Underground (Zone 2) a seven minutes’ walk, both offer good connectivity to the West End and the City.
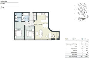
Living Room/Kitchen area
The property has an open plan living and kitchen area, with all applicances fully integrated including an oven, dishwasher, fridge freezer and a seperate wine fridge. There is a large cupboard for storage which also includes the washing machine.
Bathroom
The family bathroom is equipped with full-sized bath with overhead shower.
2 Double Bedrooms
Along the hallway there are 2 double bedrooms. The master bedroom is extremely spacious, with built in wardrobes and an ensuite with walk-in shower.
A private parking space is available to rent with the apartment, just off of the main highstreet.
General
Services: Central heating and drainage
EPC Rating: B
Council Tax Band: E
Local Authority: Wandsworth Council
Available: ASAP
Furniture: Fully furnished
Parking: Private space available for additional £100pcm
Utilities/Bills are separate from the rental amount, and include Council Tax, Water and Electricity. There is no gas to this property.
No 5-week deposit required!*
Find out how to rent this property deposit-free with Reposit -
*Tenants will remain liable to pay any damages, cleaning, and arrears at the end of the tenancy
- COUNCIL TAXA payment made to your local authority in order to pay for local services like schools, libraries, and refuse collection. The amount you pay depends on the value of the property.Read more about council Tax in our glossary page.
- Ask agent
- PARKINGDetails of how and where vehicles can be parked, and any associated costs.Read more about parking in our glossary page.
- Yes
- GARDENA property has access to an outdoor space, which could be private or shared.
- Ask agent
- ACCESSIBILITYHow a property has been adapted to meet the needs of vulnerable or disabled individuals.Read more about accessibility in our glossary page.
- Ask agent
Energy performance certificate - ask agent
One Putney, 2 Monserrat Road, London, SW15 2LA
Add an important place to see how long it'd take to get there from our property listings.
__mins driving to your place
Notes
Staying secure when looking for property
Ensure you're up to date with our latest advice on how to avoid fraud or scams when looking for property online.
Visit our security centre to find out moreDisclaimer - Property reference 379. The information displayed about this property comprises a property advertisement. Rightmove.co.uk makes no warranty as to the accuracy or completeness of the advertisement or any linked or associated information, and Rightmove has no control over the content. This property advertisement does not constitute property particulars. The information is provided and maintained by The Home Cloud, Basingstoke. Please contact the selling agent or developer directly to obtain any information which may be available under the terms of The Energy Performance of Buildings (Certificates and Inspections) (England and Wales) Regulations 2007 or the Home Report if in relation to a residential property in Scotland.
*This is the average speed from the provider with the fastest broadband package available at this postcode. The average speed displayed is based on the download speeds of at least 50% of customers at peak time (8pm to 10pm). Fibre/cable services at the postcode are subject to availability and may differ between properties within a postcode. Speeds can be affected by a range of technical and environmental factors. The speed at the property may be lower than that listed above. You can check the estimated speed and confirm availability to a property prior to purchasing on the broadband provider's website. Providers may increase charges. The information is provided and maintained by Decision Technologies Limited. **This is indicative only and based on a 2-person household with multiple devices and simultaneous usage. Broadband performance is affected by multiple factors including number of occupants and devices, simultaneous usage, router range etc. For more information speak to your broadband provider.
Map data ©OpenStreetMap contributors.




