3 bedroom town house for sale
Meridian Rise, Ipswich, Suffolk, IP4

- PROPERTY TYPE
Town House
- BEDROOMS
3
- BATHROOMS
2
- SIZE
Ask agent
- TENUREDescribes how you own a property. There are different types of tenure - freehold, leasehold, and commonhold.Read more about tenure in our glossary page.
Ask agent
Key features
- THREE DOUBLE BEDROOMS
- OPEN PLAN LIVING / DINING / KITCHEN AREA
- MODERN TOWNHOUSE
- ENCLOSED REAR GARDEN
- FAMILY BATHROOM, EN-SUITE & CLOAKROOM
- TWO CAR PARKING SPACES & INTEGRAL GARAGE
- NO ONWARD CHAIN
Description
Modern end terraced three storey town house forming part of a small cul-de-sac development of town houses and apartments located less than one mile east of Ipswich town centre with 2 allocated parking spaces, integral garage and a good size rear garden.
Location
The property is well situated with good access to local shops, primary and secondary schools. The property falls within Northgate High School catchment area (subject to availability). Ipswich Town centre, Christchurch Park and Ipswich marina are all within a reasonable walking distance.
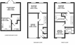
Ground Floor Accommodation
Entrance Hall - with laminate style flooring, storage cupboard and stairs down to lower ground floor and stairs up to first floor.
Cloakroom - with continuation of laminate style flooring, low level WC, pedestal wash basin, tiled splashbacks, spotlights and extractor fan.
Integral Garage - with up and over door to front, inner door to entrance hall, power and lighting.
Bedroom 2 - 4.84m x 2.62m (15'11" x 8'7") with fitted carpet, radiator and two upvc double glazed windows to rear.
Lower Ground Floor Accommodation
Lounge / Diner - 4.96m x 4.83m (16'3 x 15'10") with laminate style flooring, radiator and upvc double glazed double opening doors and side lights to rear garden
Kitchen - 2.72m x 2.28m (8'11" x 7'6") with a continuation of the laminate style flooring, a range of modern fitted units including base cupboards with work tops, wall units and drawers, 1.5 stainless steel sink unit and draining board with chrome mixer tap, integrated gas hob and extractor hood, integrated eye level double oven and fridge / freezer, space and plumbing for dishwasher, tiled splashbacks and spotlights.
Utility - 2.00m x 1.79m (6'7" x 5'10") with continuation of laminate style flooring, radiator, two floor mounted base units with worktop and fitted sink with mixer tap, space and plumbing for washing machine and tumble dryer.
First Floor Accommodation
Bedroom 1 - 3.72m x 2.46m (12'2"x 8'1") with fitted carpet, radiator and upvc double glazed windows to front.
En-Suite - with fully tiled and enclosed shower cubicle with Perspex and chrome folding door and white plastic tray, chrome bar mixer shower with chrome riser rail, shower hose and shower head, pedestal wash basin, and low level WC with ceramic tile flooring, spotlights, extractor fan, radiator and upvc double glazed window to front.
Bedroom 3 - 4.84m x 2.62m (15'11" x 8'7") with fitted carpet, radiator and two upvc double glazed windows to rear.
Bathroom - with panelled bath and chrome hand shower attachment, pedestal wash basin, and low level WC, tiled splashbacks, laminate style flooring, spotlights, extractor fan and radiator.
Outside - The property stands recessed from the road and has side pedestrian access via a 6ft timber gate to the rear garden. The rear garden is mainly down to grass with patio area and enclosed by timber fencing. Two allocated (tandem) parking spaces.
SERVICES - mains water, electricity, gas and mains drainage connected to the property. Central heating and hot water is provided by a gas wall boiler located in the kitchen.
EPC - Energy Efficiency Rating C78 (certificate available upon request).
TENURE - Freehold with vacant possession on completion and with no onward chain.
Service Charge - £254.82 for period 01/09/2025 to 28/02/2026.
VIEWING - strictly by appointment with sole agents Countywide Properties Ltd
These particulars do not constitute any part of an offer or contract. All measurements are given as a guide, and no liability can be accepted for any errors arising from them. No responsibility is taken for any error, omission or misstatement in these particulars or for any expenses incurred by the applicants for whatever reasons. No representation or warranty is made in relation to this property whether in these particulars, during negotiations or otherwise.
These details are for guidance only and complete accuracy is not guaranteed. No guarantee can be given for planning permission or title and no apparatus, services, fixtures and fittings have been tested. Items shown in photographs are not necessarily included. Interested parties are advised to check availability and any point of individual importance prior to travelling to view a property. The Data Protection Act 2008 and GDPR 2018 please note that all personal information provided by clients wishing to receive information and/or services from the estate agent will be proposed by the estate agent. If you do not wish your personal information to be used please notify the estate agent.
- COUNCIL TAXA payment made to your local authority in order to pay for local services like schools, libraries, and refuse collection. The amount you pay depends on the value of the property.Read more about council Tax in our glossary page.
- Ask agent
- PARKINGDetails of how and where vehicles can be parked, and any associated costs.Read more about parking in our glossary page.
- Garage,Driveway
- GARDENA property has access to an outdoor space, which could be private or shared.
- Enclosed garden
- ACCESSIBILITYHow a property has been adapted to meet the needs of vulnerable or disabled individuals.Read more about accessibility in our glossary page.
- Ask agent
Energy performance certificate - ask agent
Meridian Rise, Ipswich, Suffolk, IP4
Add an important place to see how long it'd take to get there from our property listings.
__mins driving to your place
Get an instant, personalised result:
- Show sellers you’re serious
- Secure viewings faster with agents
- No impact on your credit score
Your mortgage
Notes
Staying secure when looking for property
Ensure you're up to date with our latest advice on how to avoid fraud or scams when looking for property online.
Visit our security centre to find out moreDisclaimer - Property reference MR. The information displayed about this property comprises a property advertisement. Rightmove.co.uk makes no warranty as to the accuracy or completeness of the advertisement or any linked or associated information, and Rightmove has no control over the content. This property advertisement does not constitute property particulars. The information is provided and maintained by Countywide Properties Limited, Ipswich. Please contact the selling agent or developer directly to obtain any information which may be available under the terms of The Energy Performance of Buildings (Certificates and Inspections) (England and Wales) Regulations 2007 or the Home Report if in relation to a residential property in Scotland.
*This is the average speed from the provider with the fastest broadband package available at this postcode. The average speed displayed is based on the download speeds of at least 50% of customers at peak time (8pm to 10pm). Fibre/cable services at the postcode are subject to availability and may differ between properties within a postcode. Speeds can be affected by a range of technical and environmental factors. The speed at the property may be lower than that listed above. You can check the estimated speed and confirm availability to a property prior to purchasing on the broadband provider's website. Providers may increase charges. The information is provided and maintained by Decision Technologies Limited. **This is indicative only and based on a 2-person household with multiple devices and simultaneous usage. Broadband performance is affected by multiple factors including number of occupants and devices, simultaneous usage, router range etc. For more information speak to your broadband provider.
Map data ©OpenStreetMap contributors.





