
274 Mosspark Drive, Bellahouston, G52 1NR

- PROPERTY TYPE
Semi-Detached
- BEDROOMS
2
- BATHROOMS
1
- SIZE
Ask agent
- TENUREDescribes how you own a property. There are different types of tenure - freehold, leasehold, and commonhold.Read more about tenure in our glossary page.
Freehold
Description
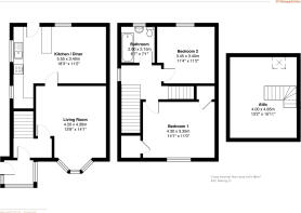
As you enter, you are welcomed into a generously sized lounge filled with natural light from a large bay window, creating a warm and inviting atmosphere. The kitchen, located to the rear, is both stylish and practical, offering plenty of storage and workspace. The back section of the kitchen has been opened up to create a bright dining area, perfect for entertaining guests or enjoying family meals. The open-plan layout enhances the flow of the space, and integrated appliances add a modern touch.
Upstairs, there are two spacious double bedrooms, a family bathroom, and access to a floored loft that provides excellent additional storage. The main bedroom offers generous proportions and built-in storage, while the second bedroom comfortably accommodates a double bed. The bathroom is finished in a contemporary style, featuring a bath with an overhead shower, a basin, a toilet, and attractive white wall tiles.
Externally, the property benefits from a large driveway to the front, ideal for families with multiple vehicles. The rear garden is well maintained, easily accessible from the kitchen, and offers a pleasant outdoor area to relax or entertain.
Electricity Supply: SP Energy Networks
Water Supply: Scottish Water
Sewerage: Scottish Water
Broadband / Mobile Coverage: Full 4G coverage, limited 3G and 5G.
Brochures
Brochure 1- COUNCIL TAXA payment made to your local authority in order to pay for local services like schools, libraries, and refuse collection. The amount you pay depends on the value of the property.Read more about council Tax in our glossary page.
- Ask agent
- PARKINGDetails of how and where vehicles can be parked, and any associated costs.Read more about parking in our glossary page.
- Yes
- GARDENA property has access to an outdoor space, which could be private or shared.
- Yes
- ACCESSIBILITYHow a property has been adapted to meet the needs of vulnerable or disabled individuals.Read more about accessibility in our glossary page.
- Ask agent
Energy performance certificate - ask agent
274 Mosspark Drive, Bellahouston, G52 1NR
Add an important place to see how long it'd take to get there from our property listings.
__mins driving to your place
Get an instant, personalised result:
- Show sellers you’re serious
- Secure viewings faster with agents
- No impact on your credit score



Your mortgage
Notes
Staying secure when looking for property
Ensure you're up to date with our latest advice on how to avoid fraud or scams when looking for property online.
Visit our security centre to find out moreDisclaimer - Property reference MFL5244883. The information displayed about this property comprises a property advertisement. Rightmove.co.uk makes no warranty as to the accuracy or completeness of the advertisement or any linked or associated information, and Rightmove has no control over the content. This property advertisement does not constitute property particulars. The information is provided and maintained by McEwan Fraser Legal, Edinburgh. Please contact the selling agent or developer directly to obtain any information which may be available under the terms of The Energy Performance of Buildings (Certificates and Inspections) (England and Wales) Regulations 2007 or the Home Report if in relation to a residential property in Scotland.
*This is the average speed from the provider with the fastest broadband package available at this postcode. The average speed displayed is based on the download speeds of at least 50% of customers at peak time (8pm to 10pm). Fibre/cable services at the postcode are subject to availability and may differ between properties within a postcode. Speeds can be affected by a range of technical and environmental factors. The speed at the property may be lower than that listed above. You can check the estimated speed and confirm availability to a property prior to purchasing on the broadband provider's website. Providers may increase charges. The information is provided and maintained by Decision Technologies Limited. **This is indicative only and based on a 2-person household with multiple devices and simultaneous usage. Broadband performance is affected by multiple factors including number of occupants and devices, simultaneous usage, router range etc. For more information speak to your broadband provider.
Map data ©OpenStreetMap contributors.





